Winkworth says ..
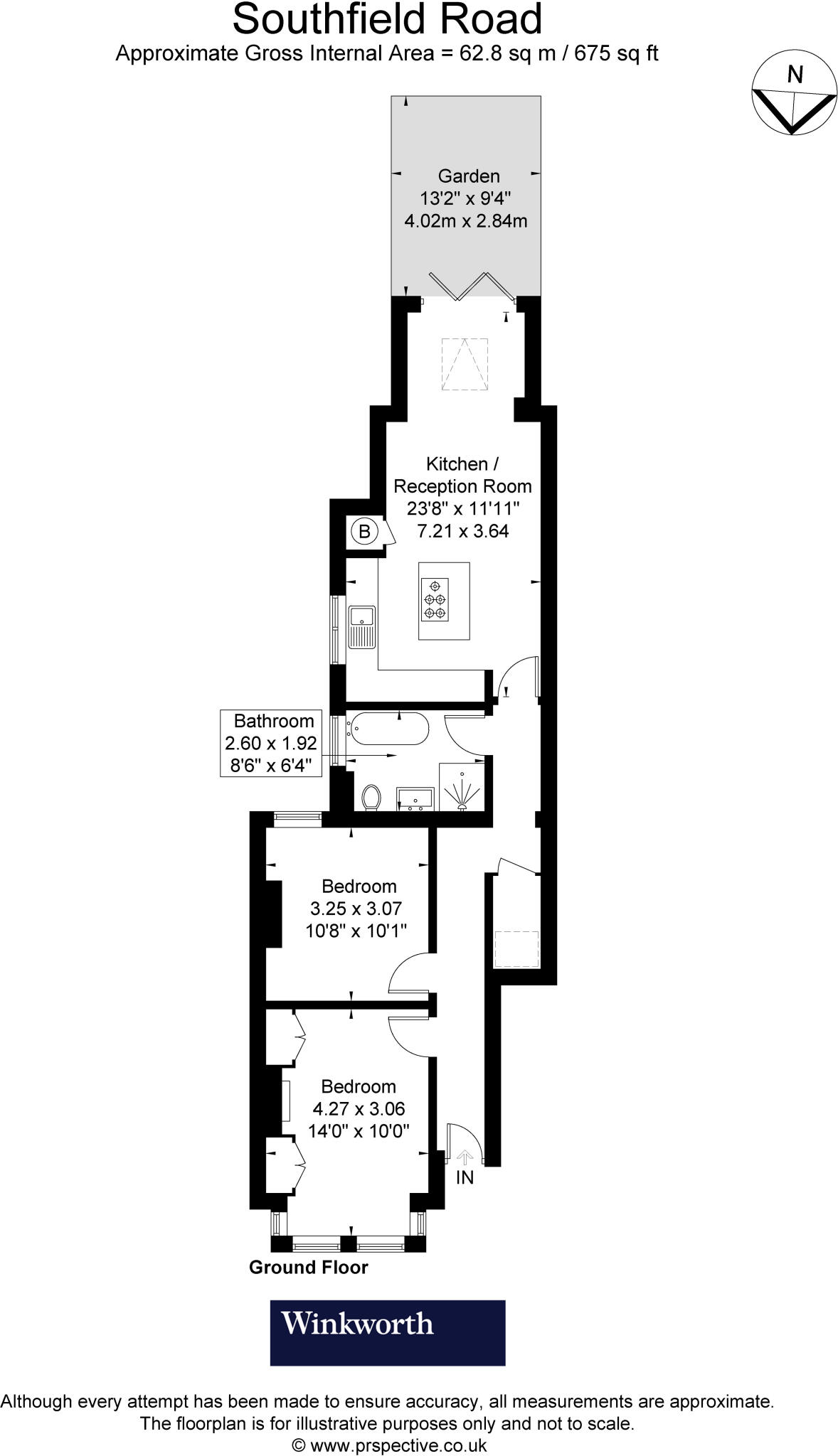
A bright and airy ground floor maisonette finished to an exacting standard and benifitting from a private Southerly aspect rear garden. Close to an outstanding school and well placed for access into central London and Chiswick. Long lease and freehold share.
Property Oracle says ..
This two-bedroom, one-bathroom maisonette located on Southfield Road in Ealing, W4, presents a compelling proposition for buyers seeking a well-maintained property in a convenient location. The property has clearly undergone a significant renovation, showcasing a modern and stylish interior. The kitchen and bathroom are particularly noteworthy, exhibiting contemporary design and high-quality fixtures. The inclusion of a rear garden, although seemingly compact, adds to the property’s appeal. The proximity to Southfield Primary School, rated ‘Good’ by Ofsted, and various transportation links enhances its family-friendly appeal and accessibility. The list price appears reasonable when compared to other properties in the area, although a more detailed comparative market analysis, including price per square foot data for similar properties, would be beneficial to fully determine its market value. The lack of precise plot size information is a slight drawback. Overall, this property offers a blend of modern convenience and family-friendly features in a desirable West London location.
Therefore, we give this property 6 / 10. *Disclaimer: This is our option and does constitute a recommendation or financial advice. Do your own research. *
- Price
- 7
- Condition
- 9
- Location
- 7
- Land
- 4
- Bedrooms
- 2
- Bathrooms
- 1
- Sqft (est)
- 675.00
The heatmap indicates the level of crime in the area. The color of the heatmap indicates the crime severity and recency.
Metrics Year-on-Year
- Average area value
- 1,041,354.00 £Increased by 4.07 %
- Est sale value
- 610,200.00 £Decreased by 9.51 %
- Average area rental value
- 2,091.00 £/moIncreased by 6.25 %
- Est letting value
- 675.00 £/moUnchanged by 0.00 %
- Est rental Yield
- 2.41 %Increased by 2.12 %
- Crime Rate
- 2.00 %Unchanged by 0.00 %
Agent Activity
Winkworth created the listing.
Nearby Schools
| Name | Type | Ofsted | Distance |
|---|---|---|---|
| Southfield Primary School | Community School | Good | 0.24 KM |
| Acton Park Children'S Centre | Children's Centre Linked Site | 0.48 KM | |
| Orchard House School | Other Independent School | 0.62 KM | |
| Ark Byron Primary Academy | Free Schools | Good | 0.67 KM |
| Maples Nursery School And Children'S Centre | Local Authority Nursery School | Good | 0.76 KM |
Images
Nearby Streets
| Name | Average Price | Average Sqft | Distance |
|---|---|---|---|
| St. Albans Avenue | £ 1,166,837 | 0 | 0.00 KM |
| Eridge Road | £ 1,375,000 | 0 | 0.00 KM |
| Carlton Road | £ 677,850 | 0 | 0.00 KM |
| Vale Grove | £ 425,000 | 0 | 0.00 KM |
| Queen Anne's Grove | £ 599,500 | 0 | 0.00 KM |
Nearby Transport
| Name | NLC | TLC | Distance |
|---|---|---|---|
| Acton Central | 1404 | ACC | 0.83 KM |
| South Acton | 1452 | SAT | 1.31 KM |
| Acton Main Line | 3000 | AML | 1.85 KM |
| Gunnersbury | 5588 | GUN | 2.21 KM |
| Chiswick | 5583 | CHK | 2.60 KM |
Nearby Listings
| Address | Price | Type | Score | Distance |
|---|---|---|---|---|
| Southfield Road, London, W4 | £ 625,000 | BUY | 6 / 10 | 0.00 KM |
| Southfield Road, Chiswick, London, W4 | £ 725,000 | BUY | Unknown | 0.02 KM |
| Southfield Road, Bedford Park borders, Chiswick, W4 | £ 950,000 | BUY | 7 / 10 | 0.03 KM |
| Southfield Road, London, W4 | £ 750,000 | BUY | Unknown | 0.03 KM |
| Southfield Road, London, W4 | £ 525,000 | BUY | 6 / 10 | 0.03 KM |
Nearby Properties
| Address | Price | Distance |
|---|---|---|
| 154 Southfield Road | £ 28,000 | 0.03 KM |
| 152a Southfield Road | £ 630,000 | 0.03 KM |
| 158 Southfield Road | £ 237,000 | 0.03 KM |
| 160a Southfield Road | £ 650,000 | 0.03 KM |
| 156a Southfield Road | £ 450,000 | 0.03 KM |