Torquay Close, Biggleswade
By Kennedy & Foster
£ 425,000
Reviews
3 out of 5 stars
Kennedy & Foster says ..
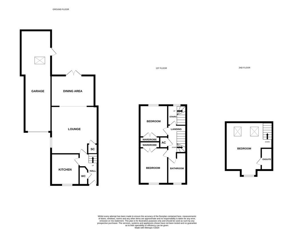
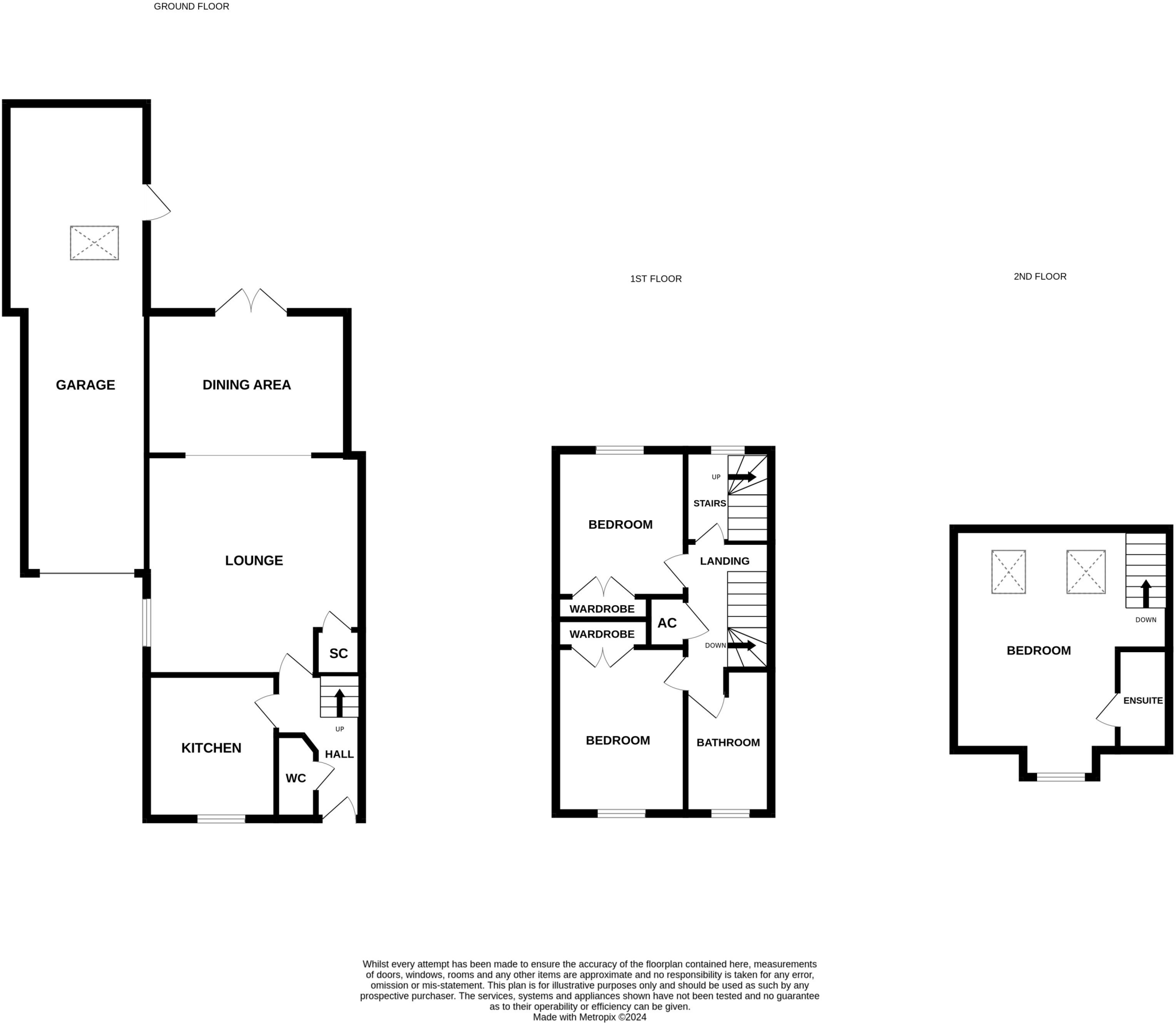
GUIDE PRICE £425,000 TO £435,000. You will not be disappointed with your viewing to this EXTENDED semi detached property with accommodation on three levels as follows: Entrance Hall, cloakroom, lounge, dining room, kitchen, 3 double bedrooms, 4 piece bathroom and ensuite to the master b...
Property Oracle says ..
This three-bedroom, two-bathroom semi-detached house in Biggleswade North presents a modern and well-maintained living space. The property’s interior features a recently updated kitchen and bathrooms, and the overall presentation is contemporary. The photographs showcase a bright and airy feel. The location is convenient, offering proximity to schools and a train station. However, more information about local amenities would allow for a more thorough assessment. The small artificial-turf garden is a notable limitation. The list price of £425,000 appears to be within the range of similar properties in the area, though more detailed property data from comparable sales would refine this assessment. While the absence of complete plot size data for nearby properties slightly limits the accuracy of the price assessment, this property appears relatively well-priced in the current UK housing market for the Biggleswade area.
Therefore, we give this property 6 / 10. *Disclaimer: This is our option and does constitute a recommendation or financial advice. Do your own research. *
- Price
- 7
- Condition
- 8
- Location
- 7
- Land
- 3
- Bedrooms
- 3
- Bathrooms
- 2
- Sqft (est)
- 1,000.00
The heatmap indicates the level of crime in the area. The color of the heatmap indicates the crime severity and recency.
Metrics Year-on-Year
- Average area value
- 409,583.00 £Increased by 13.56 %
- Est sale value
- 447,000.00 £Increased by 19.84 %
- Average area rental value
- 1,510.00 £/moIncreased by 7.02 %
- Est letting value
- 1,000.00 £/moUnchanged by 0.00 %
- Est rental Yield
- 4.42 %Decreased by 5.76 %
- Crime Rate
- 8.00 %Unchanged by 0.00 %
Agent Activity
Kennedy & Foster created the listing.
Nearby Schools
| Name | Type | Ofsted | Distance |
|---|---|---|---|
| Edward Peake Cofe Vc Middle School | Voluntary Controlled School | Good | 0.40 KM |
| Ivel Valley School | Community Special School | Good | 0.91 KM |
| Stratton Upper School | Academy Converter | Requires improvement | 1.25 KM |
| Oneschool Global Uk - Biggleswade Campus | Other Independent School | 1.33 KM | |
| Lawnside Academy | Academy Converter | 1.46 KM |
Images
Nearby Streets
| Name | Average Price | Average Sqft | Distance |
|---|---|---|---|
| Tavistock Green | £ 0 | 0 | 0.00 KM |
| Biggleswade Green Wheel | £ 250,000 | 0 | 0.00 KM |
| Tavener Drive | £ 260,000 | 0 | 0.00 KM |
| Sullivan Court | £ 228,333 | 0 | 0.00 KM |
| Rutherford Way | £ 525,000 | 0 | 0.00 KM |
Nearby Transport
| Name | NLC | TLC | Distance |
|---|---|---|---|
| Biggleswade | 6170 | BIW | 2.13 KM |
| Sandy | 6172 | SDY | 4.87 KM |
| Arlesey | 6171 | ARL | 8.23 KM |
Nearby Listings
| Address | Price | Type | Score | Distance |
|---|---|---|---|---|
| Torquay Close, Biggleswade | £ 425,000 | BUY | 6 / 10 | 0.00 KM |
| Torquay Close,Biggleswade,SG18 0FS | £ 375,000 | BUY | 7 / 10 | 0.00 KM |
| Torquay Close, Biggleswade | £ 389,950 | BUY | 7 / 10 | 0.03 KM |
| Exmoor Avenue, Biggleswade, SG18 | £ 195,000 | BUY | 6 / 10 | 0.12 KM |
| Devon Drive, Biggleswade, SG18 0FJ | £ 375,000 | BUY | 7 / 10 | 0.14 KM |
Nearby Properties
| Address | Price | Distance |
|---|---|---|
| 15 Torquay Close | £ 370,000 | 0.00 KM |
| 6 Exmoor Avenue | £ 297,000 | 0.13 KM |
| 14 Exmoor Avenue | £ 450,000 | 0.13 KM |
| 10 Exmoor Avenue | £ 387,000 | 0.13 KM |
| 20 Exmoor Avenue | £ 405,000 | 0.13 KM |