Titchfield Road, Carshalton, SM5
By Goodfellows
£ 425,000
Reviews
2 out of 5 stars
Goodfellows says ..
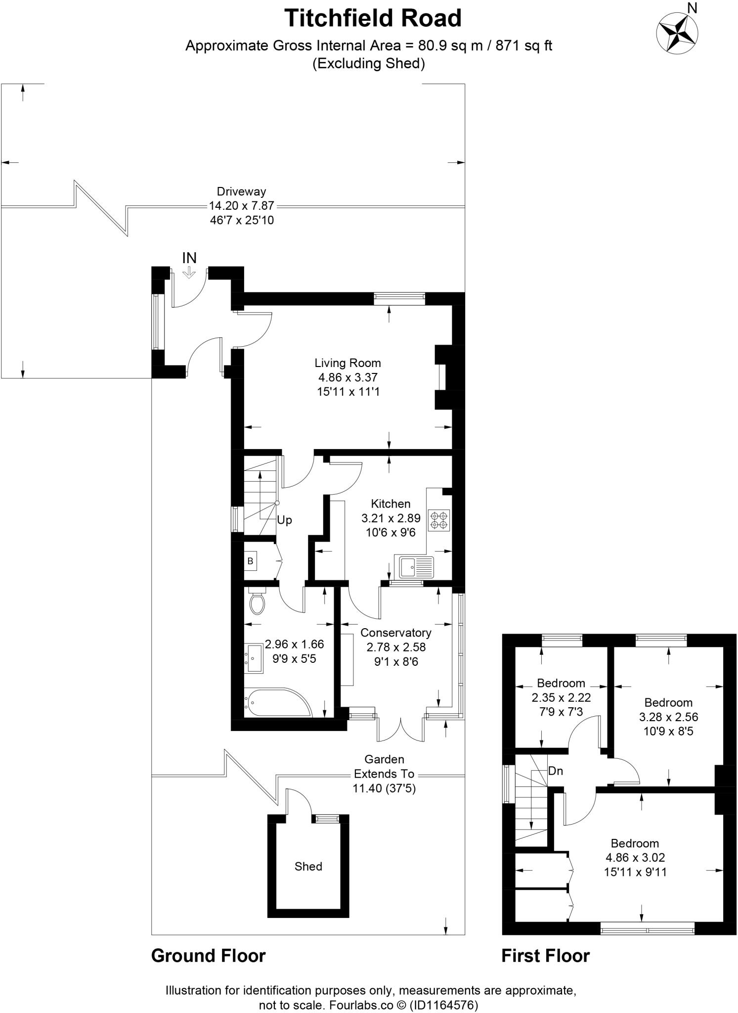
Guide Price £425,000 - £450,000 This three bedroom end of terrace house is located in a popular area of Carshalton within easy reach of transport links, shops and amenities. The ground floor accommodation includes an entrance porch with rear door providing access to the garden, g...
Property Oracle says ..
This three-bedroom, one-bathroom property located on Titchfield Road, Carshalton, SM5, is listed at £425,000. The property is a semi-detached house, as can be seen in the provided images, and appears to be structurally sound. The interior, however, is dated and would benefit from significant modernisation. The decor is tired, and updates to the kitchen and bathroom would be advisable. The flooring appears to be consistent throughout the property. The property includes a small garden with a patio area and a shed. The location is convenient, with nearby train stations providing access to London and several well-regarded schools within walking distance. While the property needs some work, its location and potential make it an appealing prospect for a buyer willing to undertake renovations. The lack of plot size information limits a full assessment of the land’s value. Further information on the specific square footage of comparable properties would help to provide a more accurate assessment of the property’s value for money. Overall, it presents a reasonable investment opportunity for those seeking a project in a desirable location.
Therefore, we give this property 5 / 10. *Disclaimer: This is our option and does constitute a recommendation or financial advice. Do your own research. *
- Price
- 7
- Condition
- 5
- Location
- 7
- Land
- 4
- Bedrooms
- 3
- Bathrooms
- 1
- Sqft (est)
- 871.00
The heatmap indicates the level of crime in the area. The color of the heatmap indicates the crime severity and recency.
Metrics Year-on-Year
- Average area value
- 406,111.00 £Decreased by 9.13 %
- Est sale value
- 404,144.00 £Decreased by 16.85 %
- Average area rental value
- 1,725.00 £/moDecreased by 7.11 %
- Est letting value
- 871.00 £/moDecreased by 50.00 %
- Est rental Yield
- 5.10 %Increased by 2.20 %
- Crime Rate
- 6.00 %Unchanged by 0.00 %
Agent Activity
Goodfellows created the listing.
Nearby Schools
| Name | Type | Ofsted | Distance |
|---|---|---|---|
| Tweeddale Primary School | Academy Converter | Good | 0.22 KM |
| Tweeddale Children'S Centre | Children's Centre | 0.32 KM | |
| Carshalton Boys Sports College | Academy Converter | Good | 0.67 KM |
| Green Wrythe Primary School | Academy Sponsor Led | Good | 0.73 KM |
| Greenshaw High School | Academy Converter | Good | 0.80 KM |
Images
Nearby Streets
| Name | Average Price | Average Sqft | Distance |
|---|---|---|---|
| Paisley Road | £ 0 | 0 | 0.00 KM |
| Middleton Road | £ 0 | 0 | 0.00 KM |
| Bolton Drive | £ 231,667 | 0 | 0.00 KM |
| Limes Avenue | £ 550,000 | 0 | 0.00 KM |
| Temple Way | £ 0 | 0 | 0.00 KM |
Nearby Transport
| Name | NLC | TLC | Distance |
|---|---|---|---|
| Carshalton | 5405 | CSH | 2.07 KM |
| Sutton Common | 5436 | SUC | 2.09 KM |
| St Helier | 5290 | SIH | 2.35 KM |
| Mitcham Junction | 5427 | MIJ | 2.63 KM |
| Morden South | 5291 | MDS | 2.75 KM |
Nearby Listings
| Address | Price | Type | Score | Distance |
|---|---|---|---|---|
| Titchfield Road, Carshalton, SM5 | £ 425,000 | BUY | 5 / 10 | 0.00 KM |
| Titchfield Road, Carshalton | £ 415,000 | BUY | 6 / 10 | 0.03 KM |
| Benhill Road, Sutton, SM1 | £ 450,000 | BUY | 5 / 10 | 0.07 KM |
| Titchfield Road, Carshalton | £ 400,000 | BUY | 6 / 10 | 0.09 KM |
| Tewkesbury Road, Carshalton, SM5 | £ 435,000 | BUY | 5 / 10 | 0.10 KM |
Nearby Properties
| Address | Price | Distance |
|---|---|---|
| 52 Tewkesbury Road | £ 190,000 | 0.04 KM |
| 46 Tewkesbury Road | £ 195,000 | 0.04 KM |
| 90 Titchfield Road | £ 282,000 | 0.06 KM |
| 51 Titchfield Road | £ 348,000 | 0.06 KM |
| 55 Titchfield Road | £ 340,000 | 0.06 KM |