Kilburn Vale, Kilburn, London, NW6
By Foxtons
£ 575,000
Reviews
3 out of 5 stars
Foxtons says ..
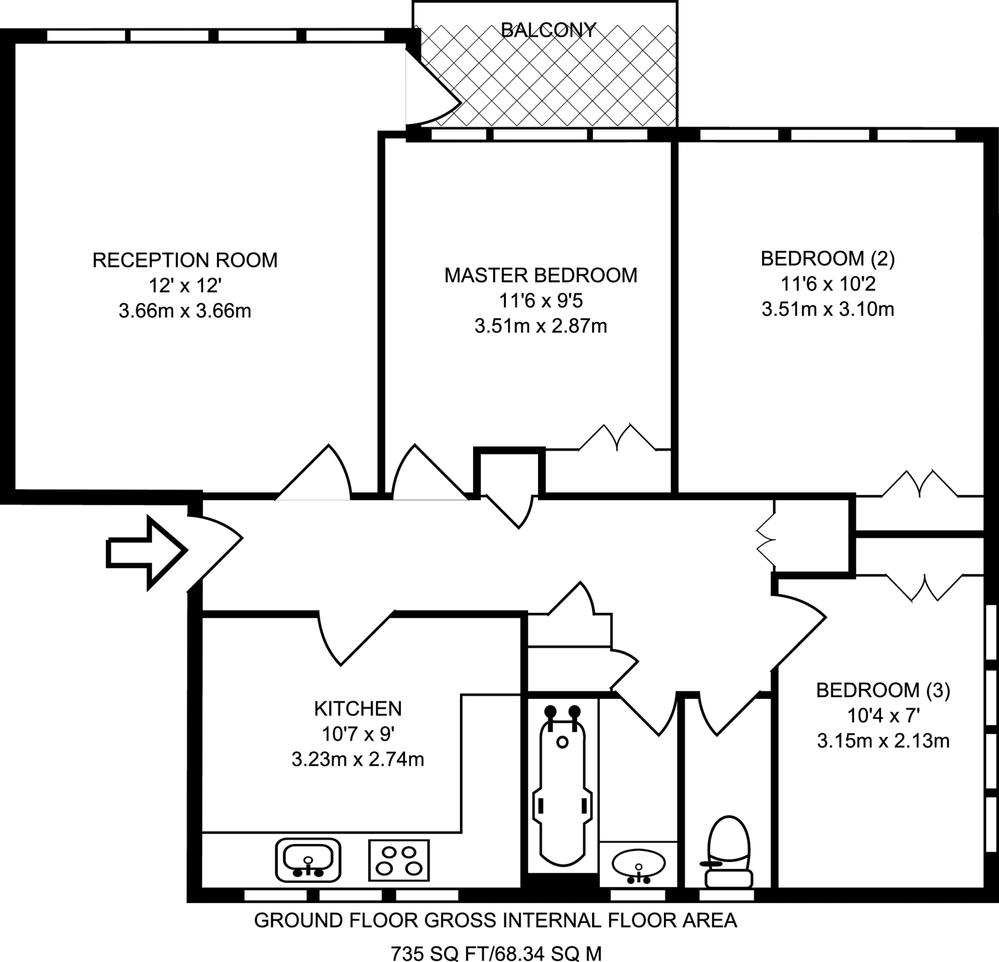
Located close to a wide range of local amenities, this recently refurbished apartment is bright and spacious. Located on the ground floor, this flat boasts neutral interiors and a modern kitchen and bathroom.
Property Oracle says ..
This property is a 3-bedroom flat located in Kilburn, London, with a list price of £575,000. The flat is 735 sqft and has one bathroom. The property appears to have recently undergone renovations, presenting a modern and clean aesthetic. The location benefits from proximity to Kilburn High Road (0.11 KM), offering access to the London Overground. Several primary schools are within a reasonable distance, including St Mary’s Kilburn Church of England Primary School (Good Ofsted rating) and St Eugene De Mazenod Roman Catholic Primary School (Outstanding Ofsted rating). While the property itself is modern and well-presented, the lack of plot size is a notable factor. The average property price in the area is significantly higher (£724,034), and the average price per sqft is £856. Considering the size and condition of the flat, and the convenient location near transportation and schools, the list price of £575,000 appears relatively reasonable, especially in comparison to nearby listings, though further analysis of similar properties with comparable features would be beneficial for a more comprehensive evaluation.
Therefore, we give this property 6 / 10. *Disclaimer: This is our option and does constitute a recommendation or financial advice. Do your own research. *
- Price
- 7
- Condition
- 9
- Location
- 8
- Land
- 1
- Bedrooms
- 3
- Bathrooms
- 1
- Sqft (est)
- 735.00
The heatmap indicates the level of crime in the area. The color of the heatmap indicates the crime severity and recency.
Metrics Year-on-Year
- Average area value
- 598,568.00 £Decreased by 21.57 %
- Est sale value
- 521,115.00 £Decreased by 22.77 %
- Average area rental value
- 2,229.00 £/moIncreased by 6.80 %
- Est letting value
- 1,470.00 £/moUnchanged by 0.00 %
- Est rental Yield
- 4.47 %Increased by 36.28 %
- Crime Rate
- 22.00 %Unchanged by 0.00 %
Agent Activity
Foxtons created the listing.
Nearby Schools
| Name | Type | Ofsted | Distance |
|---|---|---|---|
| St Mary'S Kilburn Church Of England Primary School | Voluntary Aided School | Good | 0.27 KM |
| St Eugene De Mazenod Roman Catholic Primary School | Voluntary Aided School | Outstanding | 0.35 KM |
| St Augustines Federated Schools: Cofe Primary School | Voluntary Aided School | Requires improvement | 0.42 KM |
| Maida Vale Children'S Centre | Children's Centre Linked Site | 0.42 KM | |
| St Augustine'S Federated Schools: Ce High School | Voluntary Aided School | Outstanding | 0.44 KM |
Images
Nearby Streets
| Name | Average Price | Average Sqft | Distance |
|---|---|---|---|
| Springfield Walk | £ 0 | 0 | 0.00 KM |
| Kilburn High Road | £ 495,000 | 0 | 0.00 KM |
| Oxford Road | £ 0 | 0 | 0.00 KM |
| Coral Mews | £ 0 | 0 | 0.00 KM |
| St Mary's Mews | £ 0 | 0 | 0.00 KM |
Nearby Transport
| Name | NLC | TLC | Distance |
|---|---|---|---|
| Kilburn High Road | 1415 | KBN | 0.11 KM |
| West Hampstead | 1421 | WHD | 1.03 KM |
| West Hampstead Thameslink | 1525 | WHP | 1.14 KM |
| Brondesbury | 1437 | BSY | 1.36 KM |
| Queens Park (London) | 1419 | QPW | 1.50 KM |
Nearby Listings
| Address | Price | Type | Score | Distance |
|---|---|---|---|---|
| Kilburn Vale, Kilburn, London, NW6 | £ 575,000 | BUY | 6 / 10 | 0.00 KM |
| Marshwood House, Kilburn Vale, NW6 | £ 650,000 | BUY | Unknown | 0.03 KM |
| Marshwood House, Kilburn Vale, NW6, NW6 | £ 640,000 | BUY | Unknown | 0.03 KM |
| Ribblesdale House, Kilburn Vale, London, NW6 | £ 399,000 | BUY | 5 / 10 | 0.05 KM |
| Belsize Road, Kilburn, London, NW6 | £ 297,000 | BUY | 6 / 10 | 0.06 KM |
Nearby Properties
| Address | Price | Distance |
|---|---|---|
| 232a - 232b Belsize Road | £ 60,000 | 0.05 KM |
| 230a Belsize Road | £ 180,000 | 0.05 KM |
| 9b West End Lane | £ 500,000 | 0.14 KM |
| 13a West End Lane | £ 600,000 | 0.14 KM |
| 21a West End Lane | £ 480,000 | 0.14 KM |