Bourton on the Hill, Moreton-in-Marsh, GL56
By Carter Jonas
£ 900,000
Reviews
4 out of 5 stars
Carter Jonas says ..
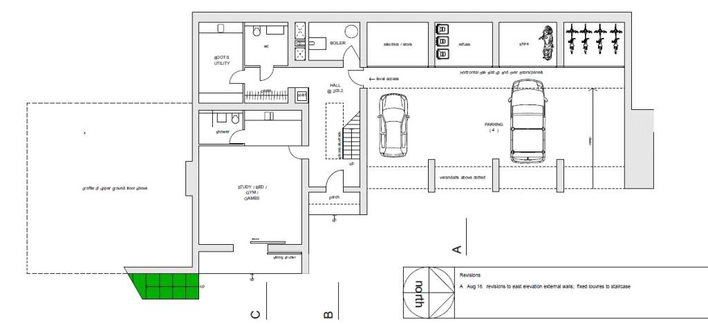
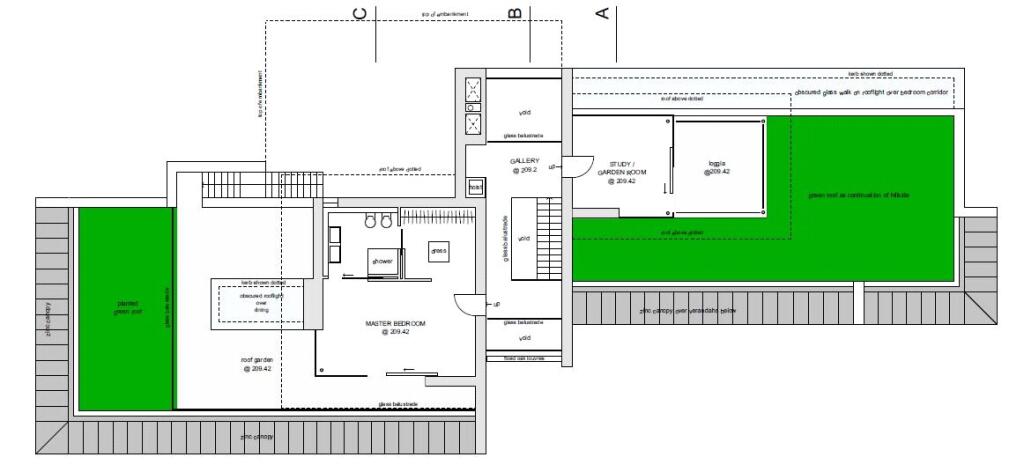
A highly individual building plot with consent to build a state of the art residence of approximately 5000 sqft., set in approx. 0.85 acre grounds with a 2.25 acre paddock. The total plot extends to 3.83 acres and enjoys far-reaching views across the Cotswold Hills.
Property Oracle says ..
Based on the provided information and images, the property at Bourton on the Hill is a new build, offering spacious accommodation and stunning views. The location in Bourton on the Hill is desirable, known for its picturesque Cotswold setting and proximity to amenities and good schools. While specific details on the property’s condition and plot size are missing, the images suggest a high standard of construction and a substantial land area. The list price of £900,000 is significantly higher than the average price in the area (£243,233), but comparable properties in Chantry Gardens have sold for much higher prices, suggesting that the list price may be justified given the property’s size, features, and location. However, without precise square footage information, a definitive assessment of value per square foot is impossible. More information would be needed to provide a complete and accurate analysis.
Therefore, we give this property 8 / 10. *Disclaimer: This is our option and does constitute a recommendation or financial advice. Do your own research. *
- Price
- 7
- Condition
- 9
- Location
- 10
- Land
- 8
- Bedrooms
- 5
- Bathrooms
- 6
The heatmap indicates the level of crime in the area. The color of the heatmap indicates the crime severity and recency.
Metrics Year-on-Year
- Average area value
- 241,538.00 £Decreased by 4.18 %
- Average area rental value
- 846.00 £/moIncreased by 4.19 %
- Est rental Yield
- 4.20 %Increased by 8.53 %
- Crime Rate
- 367.00 %Unchanged by 0.00 %
Agent Activity
Carter Jonas marked this listing as sold.
Carter Jonas created the listing.
Nearby Schools
| Name | Type | Ofsted | Distance |
|---|---|---|---|
| Longborough Church Of England Primary School | Voluntary Controlled School | Good | 3.03 KM |
| Blockley Church Of England Primary School | Academy Converter | Good | 3.12 KM |
| St David'S Church Of England Primary School | Academy Converter | Good | 5.35 KM |
| Swell Church Of England Primary School | Voluntary Controlled School | Good | 7.10 KM |
| St James And Ebrington Church Of England Primary School | Voluntary Aided School | Requires improvement | 7.27 KM |
Images
Nearby Streets
| Name | Average Price | Average Sqft | Distance |
|---|---|---|---|
| Chantry Gardens | £ 700,000 | 0 | 0.00 KM |
| Keepers Cottage | £ 0 | 0 | 0.00 KM |
Nearby Transport
| Name | NLC | TLC | Distance |
|---|---|---|---|
| Moreton-In-Marsh | 4814 | MIM | 5.29 KM |
Nearby Listings
| Address | Price | Type | Score | Distance |
|---|---|---|---|---|
| Bourton on the Hill, Moreton-in-Marsh, GL56 | £ 900,000 | BUY | 8 / 10 | 0.00 KM |
| Bourton on the Hill, Moreton-in-Marsh, GL56 | £ 900,000 | BUY | 9 / 10 | 0.00 KM |
| Bourton On The Hill, Moreton-in-Marsh, Gloucestershire. GL56 9AG | £ 500,000 | BUY | 7 / 10 | 0.00 KM |
| Bourton-On-The-Hill, Moreton-in-Marsh, Gloucestershire, GL56 | £ 475,000 | BUY | Unknown | 0.15 KM |
| Bourton on the Hill, Moreton-in-Marsh, Gloucestershire, GL56 | £ 825,000 | BUY | 8 / 10 | 0.27 KM |
Nearby Properties
| Address | Price | Distance |
|---|---|---|
| 4 Chantry Gardens | £ 649,950 | 0.11 KM |
| 3 Chantry Gardens | £ 565,000 | 0.14 KM |
| 2 Chantry Gardens | £ 575,000 | 0.14 KM |
| 1 Chantry Gardens | £ 415,000 | 0.14 KM |
| 3 Quarry Cottages | £ 220,000 | 0.83 KM |