Merryweathers says ..
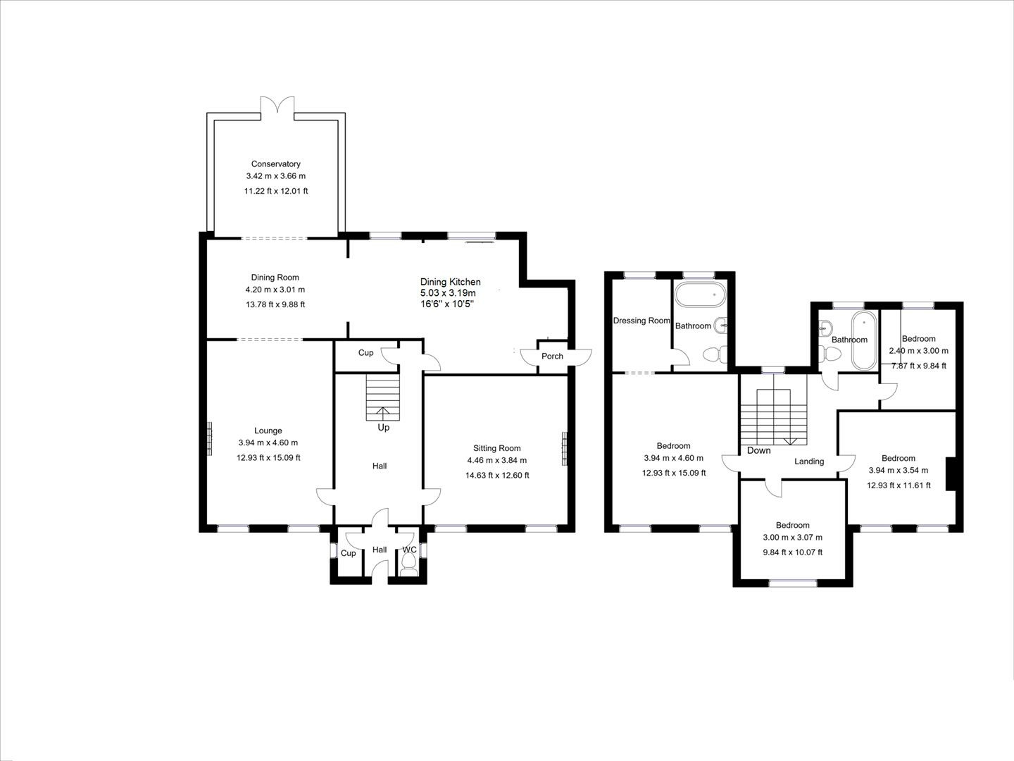
Enjoying this prominent position upon Adwick Road is this executive family home which offers flexible living accommodation throughout. With dressing room and en suite to the master, the property hosts a second living room and conservatory with views over the well manicured gardens. With driveway ...
Property Oracle says ..
Therefore, we give this property 7 / 10. *Disclaimer: This is our option and does constitute a recommendation or financial advice. Do your own research. *
- Price
- 6
- Condition
- 8
- Location
- 7
- Land
- 8
- Bedrooms
- 4
- Bathrooms
- 2
- Sqft (est)
- 1,245.71
The heatmap indicates the level of crime in the area. The color of the heatmap indicates the crime severity and recency.
Metrics Year-on-Year
- Average area value
- 162,000.00 £Increased by 9.80 %
- Est sale value
- 200,559.31 £Decreased by 8.00 %
- Average area rental value
- 597.00 £/moDecreased by 12.46 %
- Est letting value
- 0.00 £/mo
- Est rental Yield
- 4.42 %Decreased by 20.36 %
- Crime Rate
- 11.00 %Unchanged by 0.00 %
from 147,536.00 £
from 217,999.25 £
from 682.00 £/mo
from 0.00 £/mo
from 5.55 %
from 11.00 %
Agent Activity
Merryweathers created the listing.
Nearby Schools
| Name | Type | Ofsted | Distance |
|---|---|---|---|
| Mexborough St John The Baptist Cofe Primary School | Academy Converter | Good | 0.13 KM |
| Montagu Academy | Academy Sponsor Led | 0.68 KM | |
| New Pastures Primary School | Academy Converter | 1.37 KM | |
| The Laurel Academy | Academy Sponsor Led | 1.39 KM | |
| Windhill Primary School | Community School | Good | 1.51 KM |
Images
Nearby Streets
| Name | Average Price | Average Sqft | Distance |
|---|---|---|---|
| Bronte Grove | £ 250,000 | 0 | 0.00 KM |
| Cobden Avenue | £ 0 | 0 | 0.00 KM |
| Wincanton Close | £ 499,995 | 0 | 0.00 KM |
| Haydock Close | £ 150,000 | 0 | 0.00 KM |
| Bank Street | £ 85,000 | 0 | 0.00 KM |
Nearby Transport
| Name | NLC | TLC | Distance |
|---|---|---|---|
| Mexborough | 6707 | MEX | 1.10 KM |
| Swinton (South Yorks) | 6686 | SWN | 2.83 KM |
| Bolton-Upon-Dearne | 8536 | BTD | 3.70 KM |
| Goldthorpe | 8284 | GOE | 4.96 KM |
| Conisbrough | 6488 | CNS | 5.63 KM |
Nearby Listings
| Address | Price | Type | Score | Distance |
|---|---|---|---|---|
| Adwick Road, Mexborough | £ 425,000 | BUY | 7 / 10 | 0.00 KM |
| Sedgefield Way, Mexborough | £ 290,000 | BUY | 7 / 10 | 0.13 KM |
| Sedgefield Way, Mexborough | £ 260,000 | BUY | Unknown | 0.14 KM |
| Adwick Road, Mexborough | £ 120,000 | BUY | Unknown | 0.17 KM |
| Victoria Road, Mexborough | £ 130,000 | BUY | 5 / 10 | 0.21 KM |
Nearby Properties
| Address | Price | Distance |
|---|---|---|
| 92 Adwick Road | £ 105,000 | 0.08 KM |
| 80 Adwick Road | £ 160,000 | 0.08 KM |
| 98 Adwick Road | £ 315,000 | 0.08 KM |
| 19 Sedgefield Way | £ 111,000 | 0.15 KM |
| 17 Sedgefield Way | £ 230,000 | 0.15 KM |