5 Embley Close, Calmore, Totton, Southampton, SO40 2QX
By The New Forest Estate Agents
£ 289,950
Reviews
3 out of 5 stars
The New Forest Estate Agents says ..
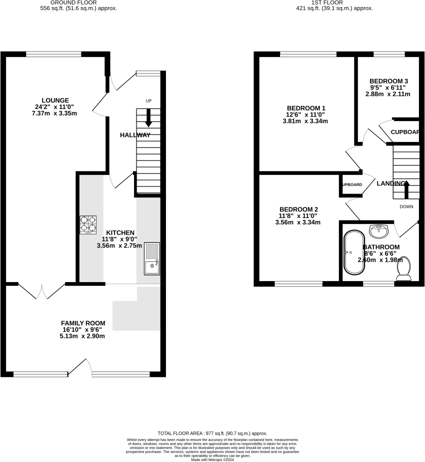
A very well presented extended 3 bedroom end of terrace house located in Calmore, Offered with vacant possession & No forward chain. The property benefits from the ground floor family room extension which wraps around from the lounge area to the kitchen Breakfast room and opens out to the rea...
Property Oracle says ..
This property is a 3-bedroom end of terrace house located in Calmore, Totton, Southampton. The location benefits from being close to local schools such as Calmore Infant School and Calmore Junior School (both rated as good by Ofsted), and is within reasonable distance of several train stations including Totton, Redbridge and Ashurst New Forest. The property itself appears to be in reasonable condition, although some minor cosmetic improvements may be desirable. The presence of a garden is a positive aspect. The list price of £289,950 seems slightly below the average price for the area (£394,494), but this should be considered in light of the fact that the average property size is 922 sqft while this property is 977 sqft. Additional comparable properties in the area are available for further comparison.
Therefore, we give this property 7 / 10. *Disclaimer: This is our option and does constitute a recommendation or financial advice. Do your own research. *
- Price
- 7
- Condition
- 7
- Location
- 8
- Land
- 7
- Bedrooms
- 3
- Bathrooms
- 1
- Sqft (est)
- 977.00
The heatmap indicates the level of crime in the area. The color of the heatmap indicates the crime severity and recency.
Metrics Year-on-Year
- Average area value
- 471,111.00 £Increased by 12.11 %
- Est sale value
- 526,603.00 £Increased by 34.75 %
- Average area rental value
- 1,283.00 £/moDecreased by 19.91 %
- Est letting value
- 977.00 £/moUnchanged by 0.00 %
- Est rental Yield
- 3.27 %Decreased by 28.45 %
- Crime Rate
- 15.00 %Unchanged by 0.00 %
Agent Activity
The New Forest Estate Agents marked this listing as sold.
The New Forest Estate Agents created the listing.
Nearby Schools
| Name | Type | Ofsted | Distance |
|---|---|---|---|
| Calmore Infant School | Community School | Good | 0.54 KM |
| Calmore Junior School | Foundation School | Good | 0.54 KM |
| The Patch And The Harbour Children'S Centre | Children's Centre | 0.85 KM | |
| Oakfield Primary School | Academy Sponsor Led | 1.20 KM | |
| Hazel Wood Infant School | Community School | Outstanding | 1.74 KM |
Images
Nearby Streets
| Name | Average Price | Average Sqft | Distance |
|---|---|---|---|
| Eddystone Road | £ 0 | 0 | 0.00 KM |
| Blackwater Drive | £ 340,000 | 0 | 0.00 KM |
| Charnwood Close | £ 0 | 0 | 0.00 KM |
| Sutton Road | £ 275,000 | 0 | 0.00 KM |
| Russell Place | £ 350,000 | 0 | 0.00 KM |
Nearby Transport
| Name | NLC | TLC | Distance |
|---|---|---|---|
| Totton | 5921 | TTN | 3.36 KM |
| Redbridge | 5912 | RDB | 4.53 KM |
| Ashurst New Forest | 5906 | ANF | 5.05 KM |
| Romsey | 5943 | ROM | 6.99 KM |
| Beaulieu Road | 5890 | BEU | 8.56 KM |
Nearby Listings
| Address | Price | Type | Score | Distance |
|---|---|---|---|---|
| 5 Embley Close, Calmore, Totton, Southampton, SO40 2QX | £ 289,950 | BUY | 7 / 10 | 0.00 KM |
| Calmore | £ 299,950 | BUY | 6 / 10 | 0.09 KM |
| Calmore | £ 305,000 | BUY | 7 / 10 | 0.09 KM |
| Testwood Crescent, Totton, Southampton, Hampshire, SO40 | £ 325,000 | BUY | 7 / 10 | 0.15 KM |
| By The Wood, Southampton - Stylishly Refurbished 3-Bedroom Home with Open-Plan Living in Calmore | £ 330,000 | BUY | 8 / 10 | 0.16 KM |
Nearby Properties
| Address | Price | Distance |
|---|---|---|
| 8 Embley Close | £ 130,500 | 0.07 KM |
| 23 Embley Close | £ 133,000 | 0.07 KM |
| 17 Embley Close | £ 210,000 | 0.07 KM |
| 18 Embley Close | £ 239,000 | 0.07 KM |
| 5 Embley Close | £ 125,000 | 0.07 KM |