Tracy Court, Stanmore, HA7
Davidson Frost-Wellings logo

Tracy Court, Stanmore, HA7

By Davidson Frost-Wellings

£ 549,950

Reviews

3 out of 5 stars

Davidson Frost-Wellings says ..

An end of terrace, three bedroom house available chain free with Davidson Frost-Wellings. Downstairs the house has a large reception room, with a wall of windows overlooking the garden, a separate kitchen, plus an additional dining room and downstairs WC. Upstairs the house has a master ...

Property Oracle says ..

This property is located in Stanmore, Harrow, which is a desirable area in Greater London. It benefits from being relatively close to several underground stations, providing good transport links. There are also a number of well-regarded schools nearby, making it attractive to families. The property itself is an end-of-terrace house with a garden, offering a good amount of outdoor space. The interior appears dated and could benefit from some modernisation and updating, although it is structurally sound. The list price of £549,950 should be considered in relation to the average price per square foot in the area (£432), and in comparison to other properties of similar size and type in the immediate vicinity. While some nearby properties have sold for higher prices, others have sold for significantly lower prices.

Therefore, we give this property 6 / 10. *Disclaimer: This is our option and does constitute a recommendation or financial advice. Do your own research. *

Price
7
Condition
6
Location
0
Land
7
Bedrooms
3
Bathrooms
1
Sqft (est)
1,026.58
Lot (est)
1,271.00

The heatmap indicates the level of crime in the area. The color of the heatmap indicates the crime severity and recency.

Metrics Year-on-Year

Average area value
426,436.00 £
Decreased by 1.59 %
from 433,305.00 £
Est sale value
493,784.98 £
Increased by 21.77 %
from 405,499.10 £
Average area rental value
1,587.00 £/mo
Decreased by 7.46 %
from 1,715.00 £/mo
Est letting value
1,026.58 £/mo
Unchanged by 0.00 %
from 1,026.58 £/mo
Est rental Yield
4.47 %
Decreased by 5.89 %
from 4.75 %
Crime Rate
3.00 %
Unchanged by 0.00 %
from 3.00 %

Agent Activity

  • Davidson Frost-Wellings created the listing.

Nearby Schools

NameTypeOfstedDistance
Stanburn Primary SchoolCommunity SchoolGood0.29 KM
Stanmore CollegeFurther EducationGood0.46 KM
Avanti House SchoolFree SchoolsGood0.68 KM
Whitchurch Primary School & NurseryCommunity SchoolGood0.74 KM
Stanmore ParkChildren's Centre Linked Site1.18 KM

Images

Davidson Frost-Wellings, DFW, Tracy Court, Stanmor Davidson Frost-Wellings, DFW, Tracy Court, Stanmor Davidson Frost-Wellings, DFW, Tracy Court, Stanmor Davidson Frost-Wellings, DFW, Tracy Court, Stanmor Davidson Frost-Wellings, DFW, Tracy Court, Stanmor Davidson Frost-Wellings, DFW, Tracy Court, Stanmor Davidson Frost-Wellings, DFW, Tracy Court, Stanmor Davidson Frost-Wellings, DFW, Tracy Court, Stanmor Davidson Frost-Wellings, DFW, Tracy Court, Stanmor Davidson Frost-Wellings, DFW, Tracy Court, Stanmor Davidson Frost-Wellings, DFW, Tracy Court, Stanmor

Nearby Streets

NameAverage PriceAverage SqftDistance
Alcuin Court £ 000.00 KM
Marsh Lane £ 000.00 KM
Greenacres Drive £ 000.00 KM
Peters Close £ 654,87500.00 KM
Ray Gardens £ 350,00000.00 KM

Nearby Transport

NameNLCTLCDistance
Kenton1399KNT3.13 KM
Harrow And Wealdstone1397HRW3.32 KM
South Kenton1453SOK4.33 KM
Harrow-On-The-Hill598HOH4.50 KM
North Wembley1422NWB5.21 KM

Nearby Listings

AddressPriceTypeScoreDistance
Tracy Court, Stanmore, HA7 £ 549,950BUY6 / 100.00 KM
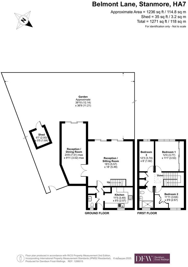
Belmont Lane, Stanmore, HA7 £ 800,000BUYUnknown0.03 KM
Quadrangle Mews, Stanmore, HA7 £ 325,000BUY7 / 100.09 KM
Alcuin Court, Stanmore £ 500,000BUY6 / 100.10 KM
Old Church Lane, Stanmore £ 495,000BUY5 / 100.10 KM

Nearby Properties

AddressPriceDistance
21 Belmont Lane £ 435,0000.01 KM
1 Belmont Lane £ 430,0000.01 KM
7 Belmont Lane £ 367,5000.01 KM
17 Belmont Lane £ 390,0000.02 KM
5 Belmont Lane £ 335,0000.02 KM