Goodfellows says ..
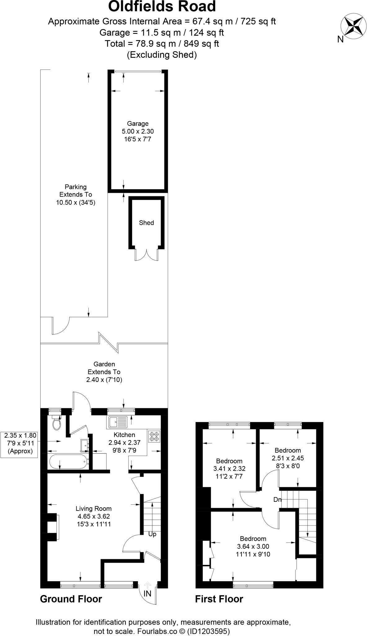
Ideally located within a stone's throw of local amenities, is this charming three bedroom mid terraced house. Coming to the market complete with a garage and parking to the rear. Internally, there is an entrance porch, leading to the front facing lounge. The kitchen sits to the rear ...
Property Oracle says ..
This three-bedroom terraced house in Sutton, Greater London is located on Oldfields Road, in the Sutton North locality. The property benefits from being close to several primary and secondary schools, including highly-rated Ofsted outstanding schools such as Glenthorne High School and Cheam Park Farm Primary Academy, both within approximately one kilometer. Transportation links are also convenient, with West Sutton and Sutton Common train stations less than a kilometer away, providing access to Thameslink services. The property itself appears to be in good condition based on the provided images. The interior is clean and well-maintained, suggesting that significant renovations are not immediately necessary. The kitchen and bathroom appear modern and functional. The house includes a garden, adding to its appeal. While the plot size is not specified, the images show a sizable garden space with patio and shed. The list price of £450,000 is slightly below the average price of £491,889 for the area, but the average square footage in the area is higher at 969 sqft compared to this property’s 849 sqft. Considering the property’s condition, location, and the inclusion of a garden, the list price appears to be reasonably competitive within the local market.
Therefore, we give this property 7 / 10. *Disclaimer: This is our option and does constitute a recommendation or financial advice. Do your own research. *
- Price
- 7
- Condition
- 8
- Location
- 9
- Land
- 7
- Bedrooms
- 3
- Bathrooms
- 1
- Sqft (est)
- 849.00
The heatmap indicates the level of crime in the area. The color of the heatmap indicates the crime severity and recency.
Metrics Year-on-Year
- Average area value
- 364,000.00 £Decreased by 29.95 %
- Est sale value
- 226,683.00 £Decreased by 53.08 %
- Average area rental value
- 1,700.00 £/moDecreased by 10.62 %
- Est letting value
- 849.00 £/moDecreased by 50.00 %
- Est rental Yield
- 5.60 %Increased by 27.56 %
- Crime Rate
- 8.00 %Unchanged by 0.00 %
Agent Activity
Goodfellows created the listing.
Nearby Schools
| Name | Type | Ofsted | Distance |
|---|---|---|---|
| Westbourne Primary School | Academy Converter | 0.18 KM | |
| Glenthorne High School | Academy Converter | Outstanding | 0.91 KM |
| Cheam Park Farm Primary Academy | Academy Converter | Outstanding | 1.03 KM |
| The Limes College | Academy Alternative Provision Converter | 1.10 KM | |
| Robin Hood Infants' School | Community School | Outstanding | 1.20 KM |
Images
Nearby Streets
| Name | Average Price | Average Sqft | Distance |
|---|---|---|---|
| Anton Crescent | £ 0 | 0 | 0.00 KM |
| Westfield Close | £ 0 | 0 | 0.00 KM |
| Anderson Close | £ 0 | 0 | 0.00 KM |
| Bushey Road | £ 0 | 0 | 0.00 KM |
| Beauchamp Road | £ 0 | 0 | 0.00 KM |
Nearby Transport
| Name | NLC | TLC | Distance |
|---|---|---|---|
| West Sutton | 5293 | WSU | 0.88 KM |
| Sutton Common | 5436 | SUC | 0.97 KM |
| St Helier | 5290 | SIH | 1.92 KM |
| Sutton | 5385 | SUO | 2.21 KM |
| Cheam | 5352 | CHE | 2.27 KM |
Nearby Listings
| Address | Price | Type | Score | Distance |
|---|---|---|---|---|
| Oldfields Road, Sutton, SM1 | £ 450,000 | BUY | 7 / 10 | 0.00 KM |
| Oldfields Road, Sutton, SM1 | £ 600,000 | BUY | 7 / 10 | 0.12 KM |
| Willow Walk, Sutton, Surrey, SM3 | £ 615,000 | BUY | 6 / 10 | 0.16 KM |
| Willow Walk, Sutton, SM3 | £ 275,000 | BUY | 6 / 10 | 0.23 KM |
| Whittaker Road, Sutton | £ 700,000 | BUY | Unknown | 0.23 KM |
Nearby Properties
| Address | Price | Distance |
|---|---|---|
| 72 Oldfields Road | £ 332,750 | 0.03 KM |
| 90 Oldfields Road | £ 380,000 | 0.03 KM |
| 58 Oldfields Road | £ 430,000 | 0.03 KM |
| 56 Oldfields Road | £ 335,000 | 0.03 KM |
| 54 Oldfields Road | £ 88,500 | 0.03 KM |