Prospect Place, Pembroke Dock, Pembrokeshire, SA72
By FBM
£ 250,000
Reviews
3 out of 5 stars
FBM says ..
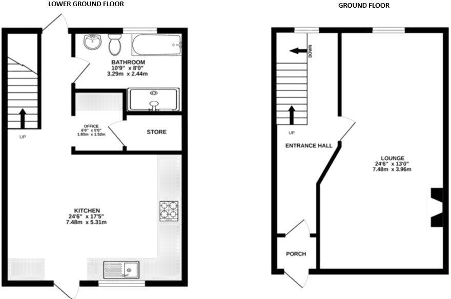
This beautifully presented four-bedroom end-of-terrace townhouse offers spacious and stylish living in the heart of the historic town of Pembroke Dock. Finished to an exceptional standard throughout, this home combines modern comfort with elegant design. The property features a stunnin...
Property Oracle says ..
This end-of-terrace property on Prospect Place, Pembroke Dock, presents a well-maintained and modern living space. The interior boasts updated bathrooms and a contemporary kitchen, while the exterior appears to be in good order. The garden offers a functional outdoor area with a mix of gravel, artificial grass, and decking. Located conveniently near local amenities and transportation, including the Pembroke Dock train station, it’s a practical choice for families and commuters. The asking price of £250,000 is competitive within the local market, making it an attractive option for potential buyers.
Therefore, we give this property 7 / 10. *Disclaimer: This is our option and does constitute a recommendation or financial advice. Do your own research. *
- Price
- 7
- Condition
- 8
- Location
- 6
- Land
- 7
- Bedrooms
- 4
- Bathrooms
- 2
The heatmap indicates the level of crime in the area. The color of the heatmap indicates the crime severity and recency.
Metrics Year-on-Year
- Average area value
- 278,905.00 £Increased by 2.67 %
- Average area rental value
- 800.00 £/moDecreased by 34.53 %
- Est rental Yield
- 3.44 %Decreased by 36.30 %
- Crime Rate
- 3.00 %Unchanged by 0.00 %
Agent Activity
FBM created the listing.
Nearby Schools
| Name | Type | Ofsted | Distance |
|---|---|---|---|
| Pennar Community School | Welsh Establishment | 0.91 KM | |
| Pembroke Dock Cp School | Welsh Establishment | 1.17 KM | |
| Pembrokeshire Pupil Referral Service | Welsh Establishment | 2.11 KM | |
| Ysgol Harri Tudur/Henry Tudor School | Welsh Establishment | 2.16 KM | |
| Neyland Primary School | Welsh Establishment | 2.40 KM |
Images
Nearby Streets
| Name | Average Price | Average Sqft | Distance |
|---|---|---|---|
| Albion Road | £ 121,613 | 0 | 0.00 KM |
| Park Street | £ 200,000 | 0 | 0.00 KM |
| Church Street | £ 169,950 | 0 | 0.00 KM |
| King Street | £ 0 | 0 | 0.00 KM |
| Victoria Road | £ 205,000 | 0 | 0.00 KM |
Nearby Transport
| Name | NLC | TLC | Distance |
|---|---|---|---|
| Pembroke Dock | 4102 | PMD | 0.95 KM |
| Pembroke | 4101 | PMB | 4.80 KM |
| Lamphey | 4084 | LAM | 8.43 KM |
| Johnston (Pembs) | 4081 | JOH | 9.24 KM |
Nearby Listings
| Address | Price | Type | Score | Distance |
|---|---|---|---|---|
| Prospect Place, Pembroke Dock, Pembrokeshire, SA72 | £ 250,000 | BUY | 7 / 10 | 0.00 KM |
| Prospect Place, Pembroke Dock, Pembrokeshire, SA72 | £ 220,000 | BUY | 7 / 10 | 0.02 KM |
| Prospect Place, Pembroke Dock, Pembrokeshire | £ 160,000 | BUY | 5 / 10 | 0.08 KM |
| Milton Terrace, Pembroke Dock, Pembrokeshire, SA72 | £ 350,000 | BUY | 7 / 10 | 0.18 KM |
| Bush Street, Pembroke Dock | £ 220,000 | BUY | 6 / 10 | 0.20 KM |
Nearby Properties
| Address | Price | Distance |
|---|---|---|
| 14 Prospect Place | £ 125,000 | 0.08 KM |
| 5a Prospect Place | £ 118,950 | 0.08 KM |
| 12 Prospect Place | £ 79,000 | 0.08 KM |
| 17 Prospect Place | £ 145,000 | 0.08 KM |
| 8 Prospect Place | £ 77,800 | 0.08 KM |