Shires Cottage, Main Street, Wighill, near Tadcaster LS24 8BQ
By Lister Haigh
£ 335,000
Reviews
3 out of 5 stars
Lister Haigh says ..
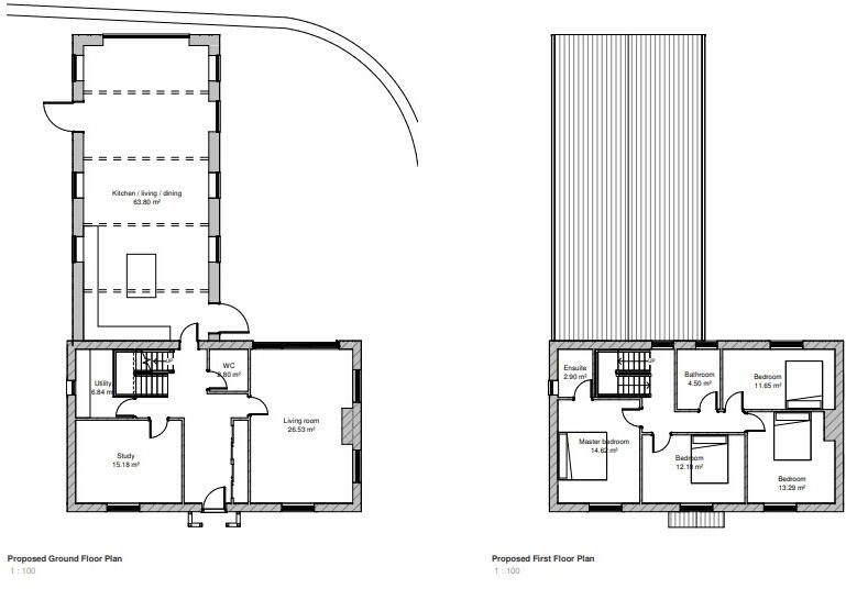
Former stables with original timber beams and built in the traditional red brick and roofed with corrugated sheeting. The building has planning consent (Planning application - 22/01609/FUL) to create a 4 bedroom property with detached garage.
Property Oracle says ..
Shires Cottage, currently a barn conversion project, is located in the desirable village of Wighill, near Tadcaster, North Yorkshire. The property benefits from planning permission to convert the existing barn into a four-bedroom house. This makes it an attractive prospect for those seeking a project and a home in a charming rural setting.
The existing structure appears reasonably sound, although in a dilapidated state with evidence of disrepair and requiring substantial renovation work. This involves interior work, possibly including structural improvements, to fully complete the property to the standard shown in the Computer Generated Images (CGI). The CGI renderings illustrate the potential for creating a spacious and attractive home, but the buyer must account for all renovation costs. The photographs clearly show the property is currently uninhabitable.
The land surrounding the property appears reasonably sized, offering potential for landscaping and outdoor space. The area itself is characterized by a peaceful rural setting, while being sufficiently close to larger amenities and transportation links in neighbouring towns. Several schools are within a few kilometres radius making it an appealing option for families.
While the list price of £335,000 reflects the potential value of the finished property, prospective buyers must carefully consider the substantial cost of renovations, obtaining multiple detailed quotes. Comparing the price to other barn conversions and properties in the area, while considering the amount of work needed, positions the asking price within a realistic and potentially competitive range. This is a project with high potential that requires a significant investment in time and money.
Therefore, we give this property 6 / 10. *Disclaimer: This is our option and does constitute a recommendation or financial advice. Do your own research. *
- Price
- 7
- Condition
- 4
- Location
- 7
- Land
- 6
- Bedrooms
- 0
- Bathrooms
- 0
- Sqft (est)
- 10,763.91
The heatmap indicates the level of crime in the area. The color of the heatmap indicates the crime severity and recency.
Metrics Year-on-Year
- Average area value
- 413,333.00 £Decreased by 22.14 %
- Est sale value
- 5,403,482.82 £Increased by 48.08 %
- Average area rental value
- 1,125.00 £/moDecreased by 17.04 %
- Est letting value
- 10,763.91 £/mo
- Est rental Yield
- 3.27 %Increased by 6.51 %
- Crime Rate
- 0.00 %
Agent Activity
Lister Haigh created the listing.
Nearby Schools
| Name | Type | Ofsted | Distance |
|---|---|---|---|
| Riverside School, Tadcaster | Academy Converter | 3.51 KM | |
| Tadcaster Primary Academy | Academy Converter | 4.21 KM | |
| Tadcaster Children'S Centre | Children's Centre | 4.37 KM | |
| Tockwith Church Of England Primary Academy | Academy Converter | 5.38 KM | |
| Tadcaster Grammar School | Academy Converter | 5.45 KM |
Images
Nearby Transport
| Name | NLC | TLC | Distance |
|---|---|---|---|
| Hammerton | 8241 | HMM | 8.98 KM |
| Ulleskelf | 8261 | ULL | 9.79 KM |
Nearby Listings
| Address | Price | Type | Score | Distance |
|---|---|---|---|---|
| Hartley Fold, Main Street, Wighill, near Tadcaster LS24 8BQ | £ 675,000 | BUY | 5 / 10 | 0.00 KM |
| Shires Cottage, Main Street, Wighill, near Tadcaster LS24 8BQ | £ 335,000 | BUY | 6 / 10 | 0.00 KM |
| Ainsty Farmhouse, Main Street, Wighill, near Tadcaster LS24 8BQ | £ 695,000 | BUY | Unknown | 0.00 KM |
| Main Street, Wighill, Tadcaster, North Yorkshire, LS24 | £ 650,000 | BUY | 4 / 10 | 0.02 KM |
| Owl End, Main Street, Wighill, Tadcaster, North Yorkshire | £ 850,000 | BUY | 7 / 10 | 0.02 KM |
Nearby Properties
| Address | Price | Distance |
|---|---|---|
| Marston House | £ 740,000 | 0.00 KM |
| Holly Mount | £ 520,000 | 0.00 KM |
| Brook Hall Farm | £ 1,250,000 | 0.00 KM |
| Owl End | £ 420,000 | 0.00 KM |
| Forge | £ 825,000 | 0.00 KM |