33 Southwell Road, Camberwell, London, SE5
Allsop logo

33 Southwell Road, Camberwell, London, SE5

By Allsop

£ 900,000

Reviews

2 out of 5 stars

Allsop says ..

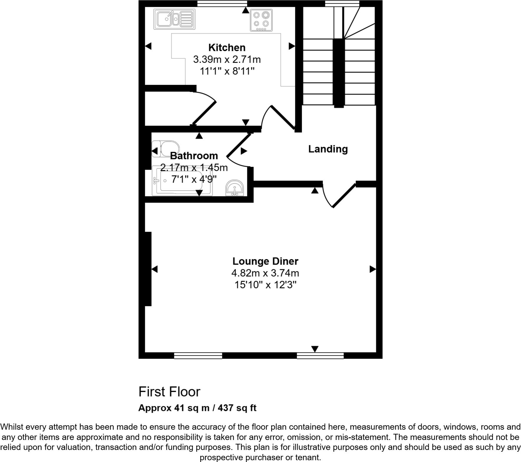
Auction date - 22/10/2025 & 23/10/2025. Flat A - Two Bedrooms, Kitchen, Lounge/Diner, Bathroom, WC, Flat B - Two Bedrooms, Kitchen, Lounge/Diner, Bathroom, WC, Total GIA approximately 157 sq ms (1,690 sq ft), Both Flats have an EPC Rating of 'C', Denmark Hill Station is easily accessible, Rus...

Property Oracle says ..

This is a four-bedroom apartment in Camberwell, London. The property benefits from its location, which offers convenient access to local amenities, transportation, and schools. However, the property requires significant renovation, as evidenced by the presence of damp, damaged walls, and outdated fixtures. While the property includes a garden, it is currently overgrown and requires landscaping. The asking price of £900,000 appears reasonable for the area, but potential buyers should consider the cost of renovations.

Therefore, we give this property 5 / 10. *Disclaimer: This is our option and does constitute a recommendation or financial advice. Do your own research. *

Price
6
Condition
3
Location
7
Land
6
Bedrooms
4
Bathrooms
2
Sqft (est)
441.32

The heatmap indicates the level of crime in the area. The color of the heatmap indicates the crime severity and recency.

Metrics Year-on-Year

Average area value
795,417.00 £
Increased by 12.21 %
from 708,841.00 £
Est sale value
220,218.68 £
Decreased by 44.49 %
from 396,746.68 £
Average area rental value
2,268.00 £/mo
Decreased by 0.48 %
from 2,279.00 £/mo
Est letting value
441.32 £/mo
Decreased by 50.00 %
from 882.64 £/mo
Est rental Yield
3.42 %
Decreased by 11.40 %
from 3.86 %
Crime Rate
3.00 %
Unchanged by 0.00 %
from 3.00 %

Agent Activity

  • Allsop created the listing.

Nearby Schools

NameTypeOfstedDistance
St Saviour'S Church Of England Primary SchoolVoluntary Aided SchoolGood0.35 KM
The Michael Tippett SchoolCommunity Special SchoolGood0.58 KM
Crawford Primary School And Children'S CentreChildren's Centre0.69 KM
Crawford Primary SchoolCommunity SchoolGood0.69 KM
The Hospital And Home Tuition Sick Children'S ServiceMiscellaneous0.74 KM

Images

MEDIA_IMAGE_TEXT_01 MEDIA_IMAGE_TEXT_02 MEDIA_IMAGE_TEXT_09 MEDIA_IMAGE_TEXT_13 MEDIA_IMAGE_TEXT_14 MEDIA_IMAGE_TEXT_15 MEDIA_IMAGE_TEXT_16 MEDIA_IMAGE_TEXT_17 MEDIA_IMAGE_TEXT_18 MEDIA_IMAGE_TEXT_19 MEDIA_IMAGE_TEXT_20 MEDIA_IMAGE_TEXT_21 MEDIA_IMAGE_TEXT_22 MEDIA_IMAGE_TEXT_23 MEDIA_IMAGE_TEXT_00 MEDIA_IMAGE_TEXT_03 MEDIA_IMAGE_TEXT_04 MEDIA_IMAGE_TEXT_05 MEDIA_IMAGE_TEXT_06 MEDIA_IMAGE_TEXT_07 MEDIA_IMAGE_TEXT_08 MEDIA_IMAGE_TEXT_10 MEDIA_IMAGE_TEXT_11 MEDIA_IMAGE_TEXT_12

Nearby Streets

NameAverage PriceAverage SqftDistance
Tram Close £ 000.00 KM
Gordon Grove £ 000.00 KM
Wickwood Street £ 000.00 KM
Minet Road £ 000.00 KM
Ashworth Close £ 000.00 KM

Nearby Transport

NameNLCTLCDistance
Loughborough Junction5082LGJ0.38 KM
Denmark Hill5421DMK1.06 KM
Herne Hill5066HNH1.54 KM
Brixton5081BRX1.74 KM
North Dulwich5429NDL1.81 KM

Nearby Listings

AddressPriceTypeScoreDistance
33 Southwell Road, Camberwell, London, SE5 £ 900,000BUY5 / 100.00 KM
33 Southwell Road, Camberwell, London, SE5 £ 800,000BUY5 / 100.00 KM
Southwell Road, Camberwell, London, SE5 £ 1,150,000BUYUnknown0.02 KM
Southwell Road, London, SE5 £ 400,000BUYUnknown0.03 KM
Coldharbour Lane, Camberwell, London £ 425,000BUY5 / 100.04 KM

Nearby Properties

AddressPriceDistance
23 Southwell Road £ 935,0000.02 KM
21 Southwell Road £ 850,0000.03 KM
49 Southwell Road £ 737,0000.03 KM
15b Southwell Road £ 578,5000.03 KM
15a Southwell Road £ 370,0000.03 KM