Quiet hamlet between Wells and Castle Cary
By Roderick Thomas
£ 695,000
Reviews
3 out of 5 stars
Roderick Thomas says ..
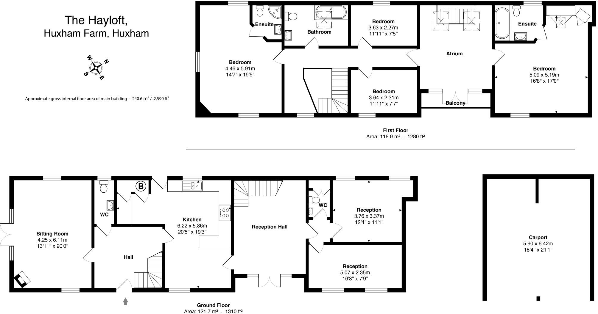
A surprisingly spacious and impressive 4/5 bedroom barn conversion with hugely versatile accommodation, and potential for an attached annexe if required, nestled in a very quiet hamlet between Wells and Castle Cary, with a paddock and gardens.
Property Oracle says ..
A spacious, semi-detached property located in a desirable rural setting between Wells and Castle Cary, Somerset. The house boasts five bedrooms and three bathrooms, offering ample living space. The property is conveniently located near Castle Cary train station and several well-regarded schools. The interior appears to be in good condition, with modern fixtures and fittings. Externally, the property features a garden and parking.
Therefore, we give this property 7 / 10. *Disclaimer: This is our option and does constitute a recommendation or financial advice. Do your own research. *
- Price
- 9
- Condition
- 8
- Location
- 7
- Land
- 7
- Bedrooms
- 5
- Bathrooms
- 3
- Sqft (est)
- 1,980.34
The heatmap indicates the level of crime in the area. The color of the heatmap indicates the crime severity and recency.
Metrics Year-on-Year
- Crime Rate
- 0.00 %
Agent Activity
Roderick Thomas created the listing.
Nearby Schools
| Name | Type | Ofsted | Distance |
|---|---|---|---|
| Ditcheat Primary School | Community School | Good | 4.42 KM |
| Lovington Church Of England Primary School | Voluntary Controlled School | Good | 4.79 KM |
| The Mendip School | Free Schools Special | Good | 6.70 KM |
| West Pennard Church Of England Primary School | Voluntary Controlled School | Outstanding | 7.39 KM |
| Ansford Academy | Academy Converter | Good | 7.85 KM |
Images
Nearby Transport
| Name | NLC | TLC | Distance |
|---|---|---|---|
| Castle Cary | 5703 | CLC | 6.65 KM |
Nearby Listings
| Address | Price | Type | Score | Distance |
|---|---|---|---|---|
| Quiet hamlet between Wells and Castle Cary | £ 695,000 | BUY | 7 / 10 | 0.00 KM |
| Huxham Lane, East Pennard, Nr East Pennard, BA4 | £ 750,000 | BUY | 7 / 10 | 0.04 KM |
| Huxham Lane, East Pennard, Shepton Mallet | £ 695,000 | BUY | 7 / 10 | 0.26 KM |
| Wraxall, Somerset, BA4 6RL | £ 350,000 | BUY | Unknown | 0.56 KM |
| Beautifully-designed new home with exceptional views in Wraxall. | £ 420,000 | BUY | 7 / 10 | 0.73 KM |
Nearby Properties
| Address | Price | Distance |
|---|---|---|
| Huxham Cottage | £ 830,000 | 0.22 KM |
| Primrose Cottage | £ 225,000 | 0.56 KM |
| 4 Somerleaze Cottages | £ 193,000 | 0.74 KM |
| 7 The Gardens | £ 660,000 | 1.13 KM |
| Yew Tree Cottage | £ 380,000 | 1.29 KM |