McArthur Scott says ..
An immaculately presented home with stunning modern features throughout located close to the heart of Gourock town centre.
Property Oracle says ..
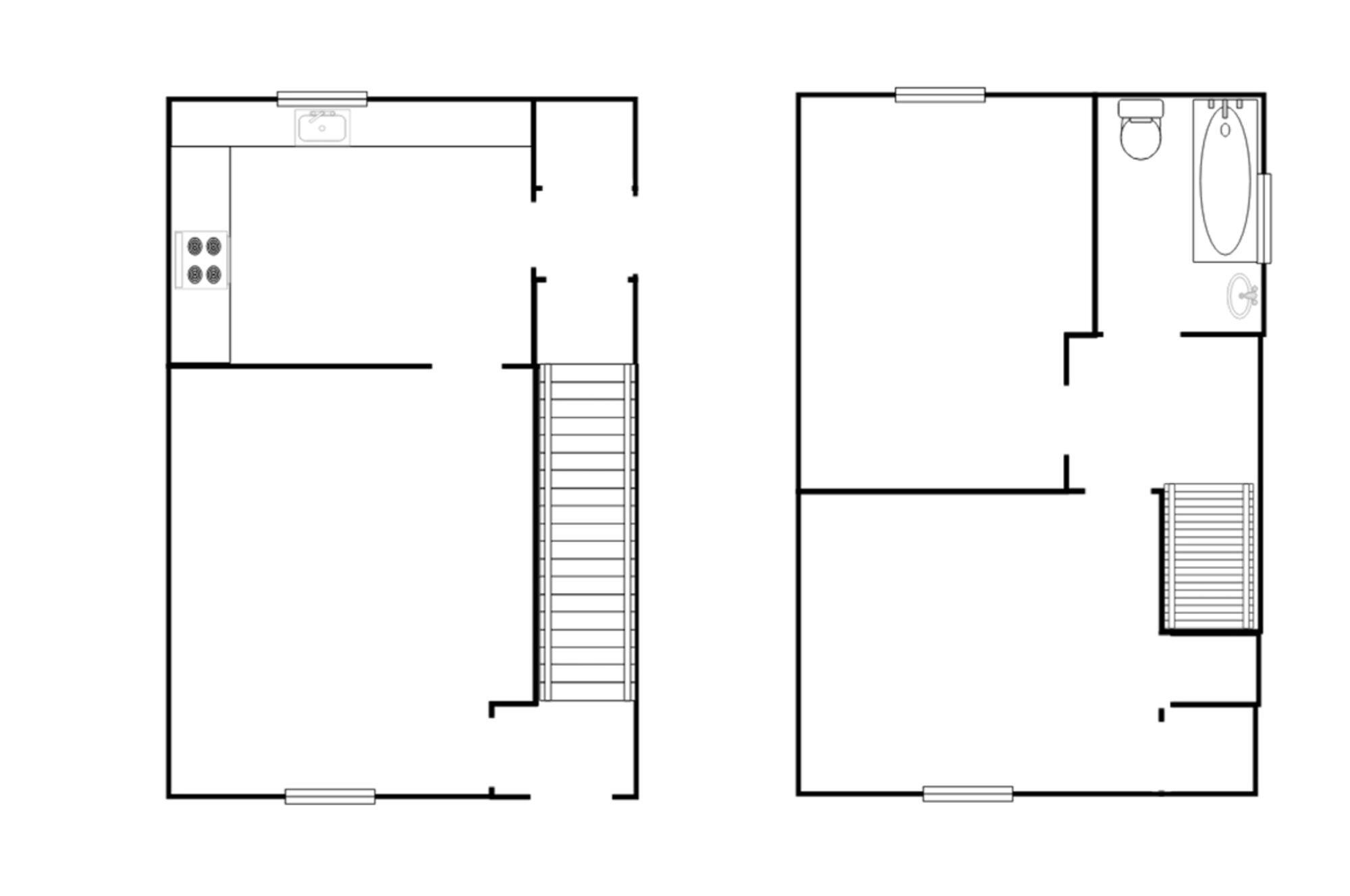
The property is a 2 bedroom semi-detached house located in Briar Place, Gourock, Inverclyde. The asking price is £130,000. The property appears to be in good condition. The interior is modern and well-maintained, with a recently updated kitchen and bathroom. The images show fresh paint, modern fixtures, and clean carpets. There is evidence of some modernisation, but it retains some traditional character. The property benefits from a garden. The location is reasonable. Gourock is a coastal town within easy reach of public transportation, with several ScotRail stations within a few kilometers. However, there is no information provided about nearby schools. The average house price in the area is £147,083, and the average price per square foot is £165. Given the property’s size (500 sqft), a comparable property might be expected to sell for around £82,500. However, the actual list price of £130,000 is significantly higher. This suggests that the property may be overpriced compared to similar properties in the area. Further investigation into the specific features and condition of the property compared to comparable properties would be needed to confirm this.
Therefore, we give this property 6 / 10. *Disclaimer: This is our option and does constitute a recommendation or financial advice. Do your own research. *
- Price
- 4
- Condition
- 8
- Location
- 6
- Land
- 7
- Bedrooms
- 2
- Bathrooms
- 1
- Sqft (est)
- 500.00
The heatmap indicates the level of crime in the area. The color of the heatmap indicates the crime severity and recency.
Metrics Year-on-Year
- Average area value
- 475,000.00 £Increased by 179.52 %
- Est sale value
- 158,000.00 £Increased by 72.68 %
- Average area rental value
- 688.00 £/moIncreased by 23.96 %
- Est letting value
- 0.00 £/mo
- Est rental Yield
- 1.74 %Decreased by 55.61 %
- Crime Rate
- 0.00 %
Agent Activity
McArthur Scott created the listing.
Images
Nearby Streets
| Name | Average Price | Average Sqft | Distance |
|---|---|---|---|
| MacMillan Drive | £ 0 | 0 | 0.00 KM |
| Staffa Street | £ 198,500 | 0 | 0.00 KM |
| McPherson Drive | £ 0 | 0 | 0.00 KM |
| Hazel Terrace | £ 0 | 0 | 0.00 KM |
| Elm Terrace | £ 0 | 0 | 0.00 KM |
Nearby Transport
| Name | NLC | TLC | Distance |
|---|---|---|---|
| Gourock | 9635 | GRK | 1.60 KM |
| Branchton | 9938 | BCN | 2.65 KM |
| Fort Matilda | 9675 | FTM | 3.44 KM |
| Drumfrochar | 9967 | DFR | 5.68 KM |
| Greenock West | 9682 | GKW | 6.36 KM |
Nearby Listings
| Address | Price | Type | Score | Distance |
|---|---|---|---|---|
| Briar Place, Gourock, PA19 | £ 130,000 | BUY | 6 / 10 | 0.00 KM |
| Briar Place, Gourock, Inverclyde, PA19 | £ 130,000 | BUY | 7 / 10 | 0.01 KM |
| Kirn Drive, Gourock, PA19 | £ 100,000 | BUY | 7 / 10 | 0.16 KM |
| Staffa Street, Gourock | £ 118,000 | BUY | 6 / 10 | 0.25 KM |
| Tower Drive, Gourock, PA19 | £ 255,000 | BUY | 7 / 10 | 0.25 KM |