Romans says ..
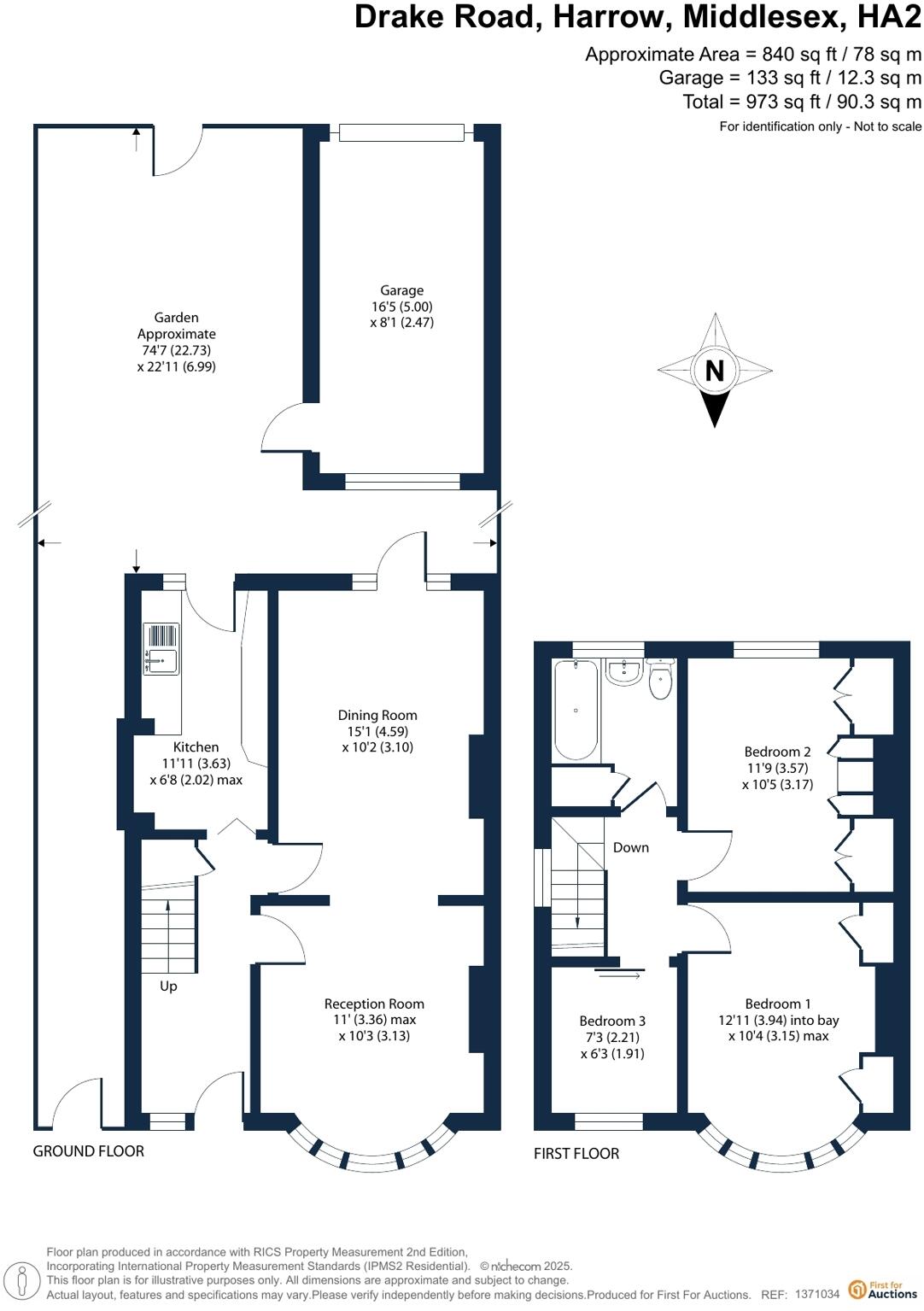
This three bedroom family home is ideal for those looking to put their own stamp on it with scope to extend STPP. The property benefits from off street parking, a garage and a rear garden. Drake Road is just a short distance from Rayners Lane High Street with its vast array of shops, e...
Property Oracle says ..
The property is an end-of-terrace house located on Drake Road in Rayners Lane, Harrow. It features three bedrooms and one bathroom, with a square footage of approximately 971.98 sqft and a plot size of 2,489.69 sqft. The property requires renovation, with dated interiors and signs of wear and tear. However, it benefits from a good-sized garden and proximity to local amenities, transportation, and schools. The asking price is £430,000, which is reasonable considering the location and potential for improvement, although it may be slightly above the average for the area due to its condition.
Therefore, we give this property 6 / 10. *Disclaimer: This is our option and does constitute a recommendation or financial advice. Do your own research. *
- Price
- 6
- Condition
- 4
- Location
- 7
- Land
- 7
- Bedrooms
- 3
- Bathrooms
- 1
- Sqft (est)
- 971.98
- Lot (est)
- 2,489.69
The heatmap indicates the level of crime in the area. The color of the heatmap indicates the crime severity and recency.
Metrics Year-on-Year
- Average area value
- 341,429.00 £Increased by 9.95 %
- Est sale value
- 304,229.74 £Decreased by 25.65 %
- Average area rental value
- 875.00 £/moDecreased by 18.53 %
- Est letting value
- 0.00 £/moDecreased by 100.00 %
- Est rental Yield
- 3.08 %Decreased by 25.78 %
- Crime Rate
- 3.00 %Unchanged by 0.00 %
Agent Activity
Romans created the listing.
Nearby Schools
| Name | Type | Ofsted | Distance |
|---|---|---|---|
| Newton Farm Nursery, Infant And Junior School | Community School | Outstanding | 0.10 KM |
| Alexandra School | Academy Special Converter | Outstanding | 0.54 KM |
| Heathland School | Academy Converter | 0.76 KM | |
| Rooks Heath School | Academy Converter | Good | 0.88 KM |
| Harrow Independent College | Other Independent School | Good | 0.88 KM |
Images
Nearby Streets
| Name | Average Price | Average Sqft | Distance |
|---|---|---|---|
| Newton Close | £ 282,500 | 0 | 0.00 KM |
| Lynton Road | £ 0 | 0 | 0.00 KM |
| Windsor Close | £ 0 | 0 | 0.00 KM |
| Kenilworth Avenue | £ 0 | 0 | 0.00 KM |
| Farm Avenue | £ 775,000 | 0 | 0.00 KM |
Nearby Transport
| Name | NLC | TLC | Distance |
|---|---|---|---|
| Northolt Park | 1478 | NLT | 2.11 KM |
| South Ruislip | 3057 | SRU | 3.15 KM |
| Headstone Lane | 1434 | HDL | 4.09 KM |
| Harrow-On-The-Hill | 598 | HOH | 4.19 KM |
| Greenford | 3136 | GFD | 4.36 KM |
Nearby Listings
| Address | Price | Type | Score | Distance |
|---|---|---|---|---|
| Drake Road, Harrow, Middlesex | £ 430,000 | BUY | 5 / 10 | 0.00 KM |
| Drake Road, Harrow, Middlesex | £ 575,000 | BUY | 6 / 10 | 0.00 KM |
| Drake Road, Harrow, Middlesex | £ 430,000 | BUY | 6 / 10 | 0.00 KM |
| Drake Road, Harrow, Middlesex | £ 640,000 | BUY | 6 / 10 | 0.08 KM |
| Chichester Court, Kings Road, Rayners Lane, Middlesex, HA2 | £ 265,000 | BUY | 5 / 10 | 0.19 KM |
Nearby Properties
| Address | Price | Distance |
|---|---|---|
| 34 Drake Road | £ 325,000 | 0.05 KM |
| 30 Drake Road | £ 550,000 | 0.05 KM |
| 16 Drake Road | £ 300,000 | 0.05 KM |
| 28 Drake Road | £ 250,000 | 0.05 KM |
| 62 Drake Road | £ 393,000 | 0.05 KM |