10 Maison Dieu Place, Dover, Kent, CT16 1DX
By Auction House London
£ 120,000
Reviews
2 out of 5 stars
Auction House London says ..
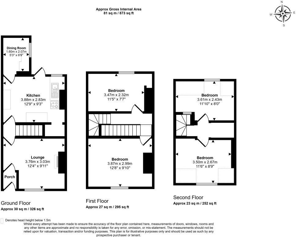
**For Sale By Public Auction 16th October 2025 09:30 AM To inspect the legal documents for this property go to our website to download the legal pack** A Vacant Four Bedroom Mid Terrace House Freehold Guide Price = £120,000+ Location The property is situ...
Property Oracle says ..
This is a four-bedroom terraced house in Dover, Kent. The property is listed for auction at £120,000. It is located close to local schools and transportation. However, the property requires extensive renovation, as evidenced by the damaged ceilings, walls, and outdated kitchen and bathroom. The house has a small outdoor area. Given the condition, the price per square foot is significantly lower than the local average, reflecting the renovation needs. This property presents an opportunity for investors or buyers willing to undertake a significant refurbishment project.
Therefore, we give this property 5 / 10. *Disclaimer: This is our option and does constitute a recommendation or financial advice. Do your own research. *
- Price
- 8
- Condition
- 2
- Location
- 7
- Land
- 3
- Bedrooms
- 4
- Bathrooms
- 0
- Sqft (est)
- 682.45
The heatmap indicates the level of crime in the area. The color of the heatmap indicates the crime severity and recency.
Metrics Year-on-Year
- Average area value
- 174,500.00 £Decreased by 9.78 %
- Est sale value
- 323,481.30 £Increased by 120.47 %
- Average area rental value
- 983.00 £/moDecreased by 9.82 %
- Est letting value
- 1,364.90 £/moIncreased by 100.00 %
- Est rental Yield
- 6.76 %Unchanged by 0.00 %
- Crime Rate
- 40.00 %Unchanged by 0.00 %
Agent Activity
Auction House London created the listing.
Nearby Schools
| Name | Type | Ofsted | Distance |
|---|---|---|---|
| Dover College | Other Independent School | 0.19 KM | |
| Dover Grammar School For Girls | Community School | Outstanding | 0.49 KM |
| St Richard'S Catholic Primary School | Academy Converter | Good | 0.54 KM |
| Charlton Church Of England Primary School | Academy Sponsor Led | Good | 0.61 KM |
| St Edmund'S Catholic School | Academy Sponsor Led | Requires improvement | 0.75 KM |
Images
Nearby Streets
| Name | Average Price | Average Sqft | Distance |
|---|---|---|---|
| Wood Street | £ 210,000 | 0 | 0.00 KM |
| St. Edmunds Walk | £ 0 | 0 | 0.00 KM |
| Park Street | £ 335,000 | 0 | 0.00 KM |
| Edwards Road | £ 0 | 0 | 0.00 KM |
| Bridge Street | £ 0 | 0 | 0.00 KM |
Nearby Transport
| Name | NLC | TLC | Distance |
|---|---|---|---|
| Dover Priory | 5033 | DVP | 0.49 KM |
| Kearsney (Kent) | 5038 | KSN | 4.54 KM |
| Martin Mill | 5040 | MTM | 6.41 KM |
Nearby Listings
| Address | Price | Type | Score | Distance |
|---|---|---|---|---|
| 10 Maison Dieu Place, Dover, Kent, CT16 1DX | £ 110,000 | BUY | 5 / 10 | 0.00 KM |
| 10 Maison Dieu Place, Dover, Kent, CT16 1DX | £ 120,000 | BUY | 5 / 10 | 0.00 KM |
| 10 Maison Dieu Place, Dover, CT16 1DX | £ 100,000 | BUY | 5 / 10 | 0.00 KM |
| 10 Maison Dieu Place, Dover, Kent, CT16 1DX | £ 110,000 | BUY | 5 / 10 | 0.00 KM |
| Wood Street, Dover, Kent | £ 139,000 | BUY | Unknown | 0.03 KM |
Nearby Properties
| Address | Price | Distance |
|---|---|---|
| 6 Goodfellow Way | £ 125,000 | 0.06 KM |
| 3 Goodfellow Way | £ 126,500 | 0.06 KM |
| 11 Wood Street | £ 37,000 | 0.07 KM |
| 20 Wood Street | £ 79,000 | 0.07 KM |
| 16 Wood Street | £ 112,000 | 0.07 KM |