Hastings Road, Grendon, CV9
CA

Hastings Road, Grendon, CV9

By Carters of Atherstone

£ 229,950

Reviews

3 out of 5 stars

Carters of Atherstone says ..

Beautiful 2-bed semi-detached home in sought-after Grendon village. Ideal for first-time buyers with modern finishes, open-plan kitchen, and parking. No Upwards Chain. Viewing highly recommended.

Property Oracle says ..

The property is a 2 bedroom semi-detached house located in Grendon, Warwickshire. It is in excellent condition with a modern interior and exterior. The property has a small, well-maintained rear garden. While the list price is below the average for the area, its smaller size than the average needs to be considered when determining the overall value. The proximity to several well-regarded primary schools is a positive factor for families.

Therefore, we give this property 7 / 10. *Disclaimer: This is our option and does constitute a recommendation or financial advice. Do your own research. *

Price
7
Condition
10
Location
7
Land
6
Bedrooms
2
Bathrooms
1
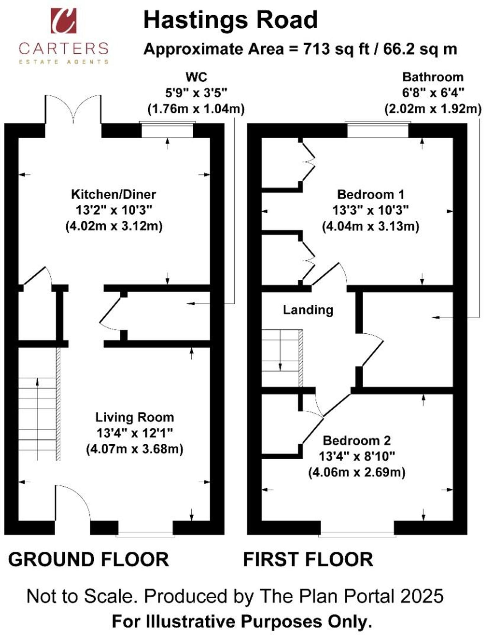
Sqft (est)
646.20
Lot (est)
713.00

The heatmap indicates the level of crime in the area. The color of the heatmap indicates the crime severity and recency.

Metrics Year-on-Year

Average area value
376,667.00 £
Decreased by 11.42 %
from 425,220.00 £
Est sale value
193,213.80 £
Decreased by 27.43 %
from 266,234.40 £
Average area rental value
1,100.00 £/mo
Increased by 18.92 %
from 925.00 £/mo
Est letting value
0.00 £/mo
from 0.00 £/mo
Est rental Yield
3.50 %
Increased by 34.10 %
from 2.61 %
Crime Rate
75.00 %
Unchanged by 0.00 %
from 75.00 %

Agent Activity

  • Carters of Atherstone created the listing.

Nearby Schools

NameTypeOfstedDistance
Woodside Cofe Primary SchoolAcademy ConverterGood1.38 KM
Dordon Primary SchoolAcademy Sponsor LedGood3.36 KM
The Nethersole Cofe AcademyAcademy Sponsor LedGood3.74 KM
Birchwood Primary SchoolAcademy ConverterOutstanding4.10 KM
The Polesworth SchoolAcademy ConverterOutstanding4.14 KM

Images

Hastings Road - Image.jpg Hastings Road - Image-15.jpg Hastings Road - Image-11.jpg Hastings Road - Image-16.jpg Hastings Road - Image-13.jpg Hastings Road - Image-12.jpg Hastings Road - Image-7.jpg Hastings Road - Image-6.jpg Hastings Road - Image-5.jpg Hastings Road - Image-2.jpg Hastings Road - Image-3.jpg Hastings Road - Image-4.jpg Hastings Road - Image-8.jpg Hastings Road - Image-9.jpg Hastings Road - Image-10.jpg Hastings Road - Image-17.jpg

Nearby Streets

NameAverage PriceAverage SqftDistance
Rocheford Way £ 000.00 KM
All Saints Close £ 000.00 KM
Greenfield close £ 237,47500.00 KM
Maypole Lane £ 000.00 KM
Baddesley Drive £ 000.00 KM

Nearby Transport

NameNLCTLCDistance
Atherstone1074ATH4.15 KM
Polesworth1078PSW4.47 KM

Nearby Listings

AddressPriceTypeScoreDistance
Hastings Road, Grendon, CV9 £ 229,950BUY7 / 100.00 KM
Hastings Road, Grendon, CV9 £ 425,000BUYUnknown0.07 KM
Hastings Road, Grendon, Atherstone, Warwickshire, CV9 £ 475,000BUY7 / 100.08 KM
Hastings Road, Grendon £ 275,000BUY7 / 100.09 KM
Fieldon Drive, Grendon, Atherstone, Warwickshire, CV9 £ 425,000BUY7 / 100.13 KM

Nearby Properties

AddressPriceDistance
12 Greenfield Close £ 173,0000.24 KM
2 Chetwynd Drive £ 304,9950.30 KM
Glendevon £ 400,0000.31 KM
125 Watling Street £ 350,0000.34 KM
177 Watling Street £ 135,9500.34 KM