John Payne says ..
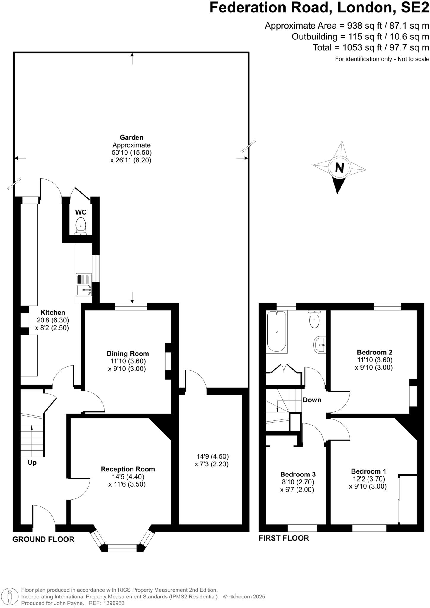
Offered to the market chain free is this extended, end of terrace, three bedroom period home located on the ever popular Co-op estate in Abbey Wood. Convenient for local shops, schools, bus routes and Abbey wood mainline station & Elizabeth Line (Crossrail). The ground floor accomm...
Property Oracle says ..
This end-of-terrace property on Federation Road, Abbey Wood, presents a renovation opportunity. While the location offers proximity to schools and transport, the property’s condition suggests a need for significant modernisation. The garden provides a valuable outdoor space. The asking price is slightly above the local average, which may reflect the property’s potential after renovation.
Therefore, we give this property 6 / 10. *Disclaimer: This is our option and does constitute a recommendation or financial advice. Do your own research. *
- Price
- 6
- Condition
- 4
- Location
- 7
- Land
- 7
- Bedrooms
- 3
- Bathrooms
- 1
- Sqft (est)
- 938.00
- Lot (est)
- 1,344.58
The heatmap indicates the level of crime in the area. The color of the heatmap indicates the crime severity and recency.
Metrics Year-on-Year
- Average area value
- 433,750.00 £Increased by 7.51 %
- Est sale value
- 361,130.00 £Decreased by 18.95 %
- Average area rental value
- 1,500.00 £/moDecreased by 3.85 %
- Est letting value
- 938.00 £/moUnchanged by 0.00 %
- Est rental Yield
- 4.15 %Decreased by 10.56 %
- Crime Rate
- 9.00 %Unchanged by 0.00 %
Agent Activity
John Payne marked this listing as sold.
John Payne created the listing.
Nearby Schools
| Name | Type | Ofsted | Distance |
|---|---|---|---|
| Alexander Mcleod Primary School | Community School | Good | 0.27 KM |
| Abbey Wood Children'S Centre | Children's Centre | 0.28 KM | |
| Abbey Wood Nursery School | Local Authority Nursery School | Good | 0.28 KM |
| Mulberry Park Children'S Centre | Children's Centre Linked Site | 0.75 KM | |
| Boxgrove Primary School | Community School | Good | 0.78 KM |
Images
Nearby Streets
| Name | Average Price | Average Sqft | Distance |
|---|---|---|---|
| Brimpsafield Close | £ 450,000 | 0 | 0.00 KM |
| Harrow Manorway | £ 600,000 | 0 | 0.00 KM |
| Chapman's Lane | £ 0 | 0 | 0.00 KM |
| Pinewood Road | £ 0 | 0 | 0.00 KM |
| West Heath Road | £ 239,995 | 0 | 0.00 KM |
Nearby Transport
| Name | NLC | TLC | Distance |
|---|---|---|---|
| Abbey Wood | 5131 | ABW | 0.87 KM |
| Welling | 5128 | WLI | 2.84 KM |
| Bexleyheath | 5094 | BXH | 3.32 KM |
| Plumstead | 5208 | PLU | 3.40 KM |
| Belvedere | 5092 | BVD | 4.18 KM |
Nearby Listings
| Address | Price | Type | Score | Distance |
|---|---|---|---|---|
| Federation Road, Abbey Wood | £ 500,000 | BUY | 6 / 10 | 0.00 KM |
| Federation Road, London, SE2 | £ 475,000 | BUY | 6 / 10 | 0.08 KM |
| Federation Road, Abbey Wood ** 3D FLOORPLAN & VIDEO AVAILABLE ** | £ 530,000 | BUY | 6 / 10 | 0.09 KM |
| Bostall Lane, London, SE2 | £ 475,000 | BUY | 7 / 10 | 0.11 KM |
| Bostall Lane, London, SE2 | £ 450,000 | BUY | 6 / 10 | 0.12 KM |
Nearby Properties
| Address | Price | Distance |
|---|---|---|
| 20 Federation Road | £ 45,000 | 0.01 KM |
| 24 Federation Road | £ 185,000 | 0.01 KM |
| 38 Federation Road | £ 458,000 | 0.01 KM |
| 2 Federation Road | £ 570,000 | 0.01 KM |
| 20b Federation Road | £ 228,000 | 0.01 KM |