Lindsay Road, Garforth
By Tudor Sales & Lettings
£ 325,000
Reviews
3 out of 5 stars
Tudor Sales & Lettings says ..
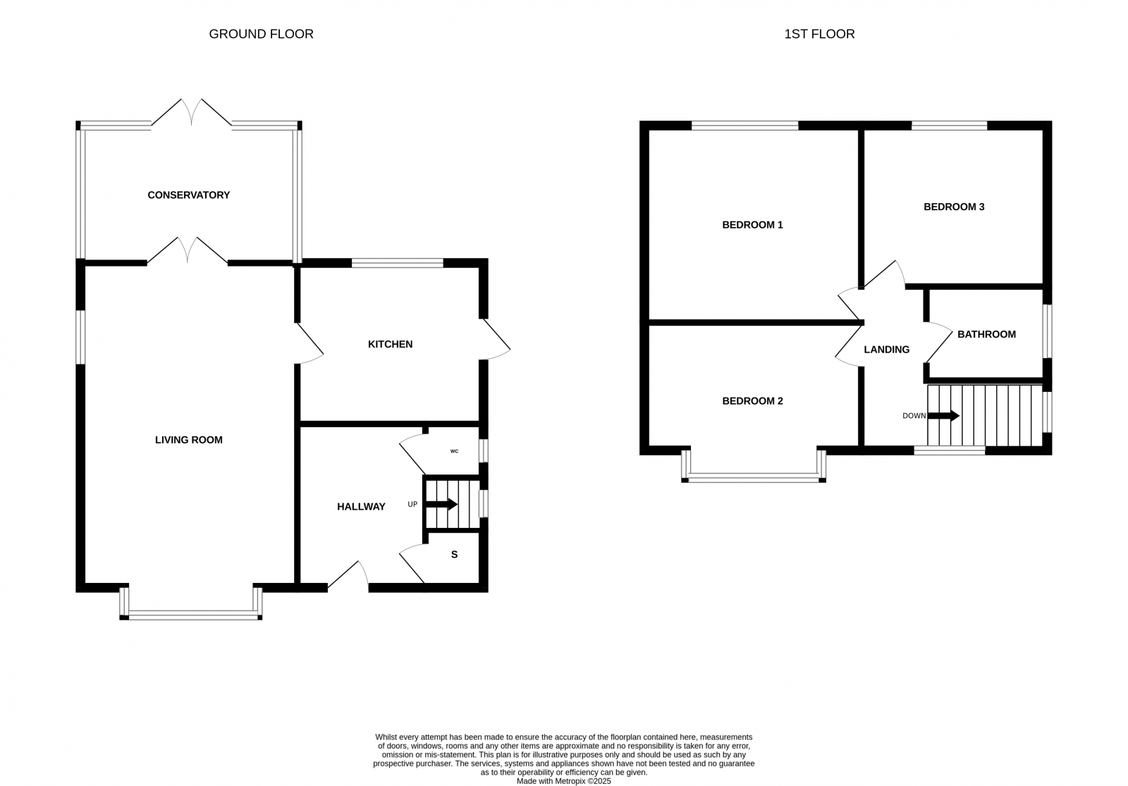
Tudor Sales and Lettings are pleased to present for sale this detached three bedroom home situated on the very popular Lindsay Road in Garforth. Featuring three double bedrooms and a large mature garden this property is
Property Oracle says ..
Therefore, we give this property 7 / 10. *Disclaimer: This is our option and does constitute a recommendation or financial advice. Do your own research. *
- Price
- 9
- Condition
- 5
- Location
- 8
- Land
- 8
- Bedrooms
- 3
- Bathrooms
- 2
- Sqft (est)
- 1,118.00
The heatmap indicates the level of crime in the area. The color of the heatmap indicates the crime severity and recency.
Metrics Year-on-Year
- Average area value
- 335,544.00 £Increased by 11.56 %
- Est sale value
- 564,590.00 £Increased by 80.36 %
- Average area rental value
- 1,269.00 £/moIncreased by 13.81 %
- Est letting value
- 1,118.00 £/moUnchanged by 0.00 %
- Est rental Yield
- 4.54 %Increased by 2.02 %
- Crime Rate
- 8.00 %Unchanged by 0.00 %
from 300,782.00 £
from 313,040.00 £
from 1,115.00 £/mo
from 1,118.00 £/mo
from 4.45 %
from 8.00 %
Agent Activity
Tudor Sales & Lettings created the listing.
Nearby Schools
| Name | Type | Ofsted | Distance |
|---|---|---|---|
| Garforth Academy | Academy Converter | Outstanding | 0.62 KM |
| Garforth Children'S Centre | Children's Centre | 0.67 KM | |
| Strawberry Fields Primary School | Foundation School | Good | 0.74 KM |
| St Benedict'S Catholic Primary School | Academy Converter | 0.74 KM | |
| Ninelands Primary School | Foundation School | Good | 0.93 KM |
Images
Nearby Streets
| Name | Average Price | Average Sqft | Distance |
|---|---|---|---|
| Lowther Road | £ 0 | 0 | 0.00 KM |
| The Lines Way | £ 350,000 | 0 | 0.00 KM |
| Oak Road | £ 0 | 0 | 0.00 KM |
| Chapel Lane | £ 0 | 0 | 0.00 KM |
| Chapel Close | £ 0 | 0 | 0.00 KM |
Nearby Transport
| Name | NLC | TLC | Distance |
|---|---|---|---|
| Garforth | 8474 | GRF | 0.92 KM |
| East Garforth | 8472 | EGF | 1.74 KM |
| Micklefield | 8477 | MIK | 6.55 KM |
| Woodlesford | 8578 | WDS | 7.25 KM |
| Cross Gates | 8473 | CRG | 7.45 KM |
Nearby Listings
| Address | Price | Type | Score | Distance |
|---|---|---|---|---|
| Lindsay Road, Garforth | £ 325,000 | BUY | 7 / 10 | 0.00 KM |
| Lindsay Road, Garforth, Leeds | £ 330,000 | BUY | 7 / 10 | 0.02 KM |
| Lindsay Road, Garforth, Leeds | £ 275,000 | BUY | 7 / 10 | 0.02 KM |
| Lindsay Road, Garforth, Leeds, West Yorkshire | £ 330,000 | BUY | 6 / 10 | 0.02 KM |
| Lindsay Road, Garforth | £ 275,000 | BUY | 7 / 10 | 0.08 KM |
Nearby Properties
| Address | Price | Distance |
|---|---|---|
| 9 Lindsay Road | £ 370,000 | 0.02 KM |
| 20 Lindsay Road | £ 375,000 | 0.02 KM |
| 28 Lindsay Road | £ 216,000 | 0.02 KM |
| 17 Lindsay Road | £ 175,000 | 0.02 KM |
| 12 Lindsay Road | £ 178,000 | 0.02 KM |