Purplebricks New Homes says ..
**OFFERS INVITED ON A SUBJECT TO PLANNING BASIS ** Planning was granted RE: TWC/2014/0926 by Telford & Wrekin Council for the demolition of an existing dwelling and erection of 3 dwellings. One of the 3 granted consent has already been constructed and sold and the consent is secured for the cons...
Property Oracle says ..
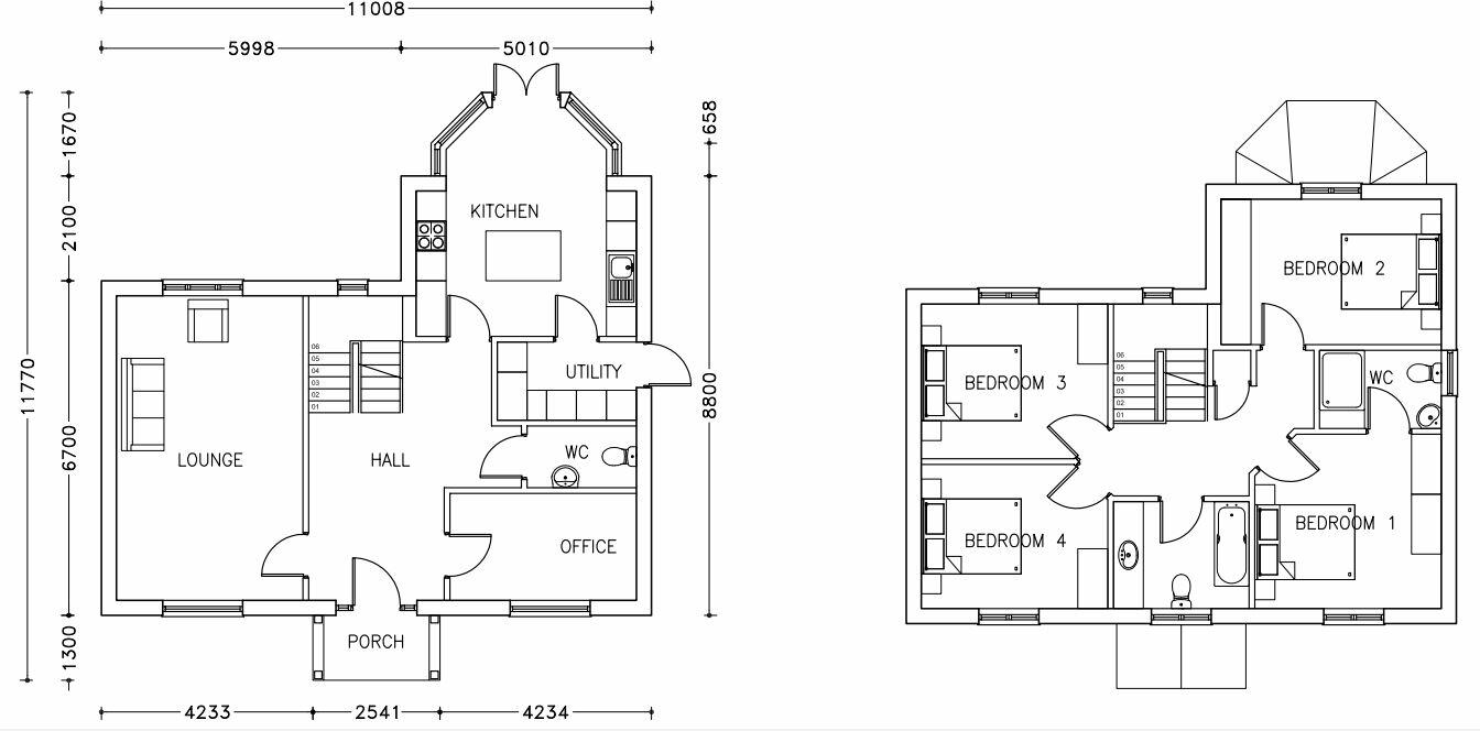
This property is listed as a plot of land in Horton, Telford, currently awaiting development. The listing specifies planning permission has been granted for three dwellings and one has been successfully completed. The property’s listed size is 1750 sq ft, which could potentially accommodate three bedrooms and two bathrooms as indicated in the floor plans. The land appears to have some existing structures to be removed, and the aerial photographs reveal a mixture of undeveloped and wooded land. Nearby transport links include railway stations at a distance that are not directly walkable and therefore require car journeys. A number of primary schools within a close radius and are well regarded. The price point of £470,000 needs to be analyzed against the cost of completing the build, and comparable prices per square foot of other properties in the area. The property is suited to a buyer that is confident with self building or contracting to complete the construction of the property. Potential buyers would need to weigh the potential financial and time investment involved against the long-term value that the property holds once completed.
Therefore, we give this property 4 / 10. *Disclaimer: This is our option and does constitute a recommendation or financial advice. Do your own research. *
- Price
- 7
- Condition
- 2
- Location
- 6
- Land
- 4
- Bedrooms
- 3
- Bathrooms
- 2
- Sqft (est)
- 1,750.00
The heatmap indicates the level of crime in the area. The color of the heatmap indicates the crime severity and recency.
Metrics Year-on-Year
- Average area value
- 191,242.00 £Decreased by 21.51 %
- Est sale value
- 486,500.00 £Increased by 15.83 %
- Average area rental value
- 966.00 £/moIncreased by 2.77 %
- Est letting value
- 1,750.00 £/mo
- Est rental Yield
- 6.06 %Increased by 30.89 %
- Crime Rate
- 0.00 %
Agent Activity
Purplebricks New Homes created the listing.
Nearby Schools
| Name | Type | Ofsted | Distance |
|---|---|---|---|
| St Lawrence Church Of England Voluntary Controlled Primary School | Voluntary Controlled School | Good | 0.88 KM |
| Teagues Bridge Primary School | Community School | Good | 2.24 KM |
| St Luke'S Catholic Primary School | Voluntary Aided School | Good | 2.29 KM |
| Wrockwardine Wood Church Of England Junior School | Voluntary Controlled School | Good | 2.37 KM |
| Wrockwardine Wood Infant School And Nursery | Community School | Good | 3.03 KM |
Images
Nearby Streets
| Name | Average Price | Average Sqft | Distance |
|---|---|---|---|
| Humber Lane | £ 0 | 0 | 0.00 KM |
| Chapel Row | £ 950,000 | 0 | 0.00 KM |
| Preston | £ 332,500 | 0 | 0.00 KM |
| Manor Barns | £ 0 | 0 | 0.00 KM |
| Hadley Park East | £ 600,000 | 0 | 0.00 KM |
Nearby Transport
| Name | NLC | TLC | Distance |
|---|---|---|---|
| Oakengates | 4689 | OKN | 4.23 KM |
| Telford Central | 4691 | TFC | 5.92 KM |
| Wellington (Shropshire) | 4690 | WLN | 6.03 KM |
Nearby Listings
| Address | Price | Type | Score | Distance |
|---|---|---|---|---|
| Horton, Telford, TF6 | £ 470,000 | BUY | 4 / 10 | 0.00 KM |
| Hedgerows, Horton, Telford, Shropshire, TF6 6DT | £ 1,100,000 | BUY | 8 / 10 | 0.11 KM |
| Hedgerows, Horton, Telford, Shropshire, TF6 6DT | £ 1,100,000 | BUY | 8 / 10 | 0.11 KM |
| Horton, Telford, Shropshire, TF6 6DR | £ 335,000 | BUY | 5 / 10 | 0.12 KM |
| Horton, Telford, Shropshire, TF6 | £ 1,200,000 | BUY | 6 / 10 | 0.24 KM |
Nearby Properties
| Address | Price | Distance |
|---|---|---|
| 25 Horton Lane | £ 290,000 | 0.17 KM |
| 52 Horton Lane | £ 265,000 | 0.17 KM |
| 2 Weald Moors Park | £ 500,000 | 1.22 KM |
| 4 Weald Moors Park | £ 150,000 | 1.22 KM |
| 18 Weald Moors Park | £ 325,000 | 1.22 KM |