Lancaster Drive, Verwood, Dorset, BH31
IR

Lancaster Drive, Verwood, Dorset, BH31

By Irving & Sons

£ 695,000

Reviews

3 out of 5 stars

Irving & Sons says ..

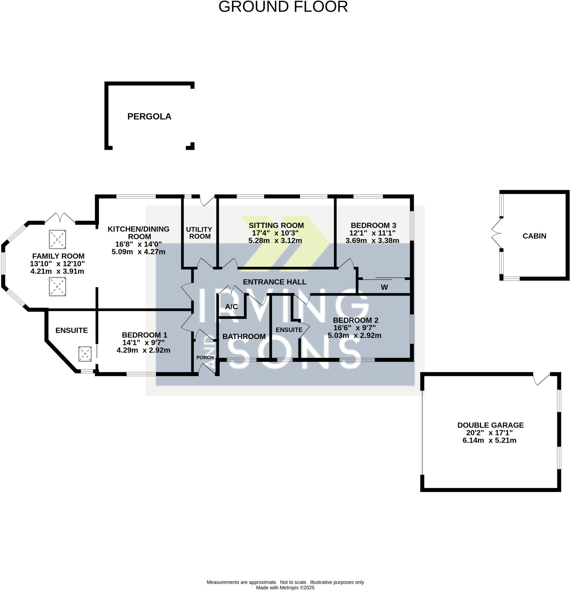
LUXURIOUSLY APPOINTED BUNGALOW finished to a very high specification offering an OPEN PLAN KITCHEN/DINING FAMILY ROOM with part vaulted ceiling - 3 double bedrooms, 2 en-suites, utility room - *A RATED ENERGY EFFICIENCY* - see full details.

Property Oracle says ..

Located in Verwood, Dorset, this 3-bedroom bungalow presents a modern living space with a well-maintained garden. The property boasts a modern kitchen and bathrooms, indicating a high standard of upkeep. However, the listing price of £695,000 is notably higher than the average for the area, which could be a factor for potential buyers.

Therefore, we give this property 6 / 10. *Disclaimer: This is our option and does constitute a recommendation or financial advice. Do your own research. *

Price
4
Condition
9
Location
7
Land
7
Bedrooms
3
Bathrooms
3
Sqft (est)
1,359.80

The heatmap indicates the level of crime in the area. The color of the heatmap indicates the crime severity and recency.

Metrics Year-on-Year

Average area value
412,217.00 £
Decreased by 3.83 %
from 428,620.00 £
Est sale value
344,029.40 £
Decreased by 23.10 %
from 447,374.20 £
Average area rental value
1,283.00 £/mo
Decreased by 13.13 %
from 1,477.00 £/mo
Est letting value
0.00 £/mo
Decreased by 100.00 %
from 1,359.80 £/mo
Est rental Yield
3.73 %
Decreased by 9.90 %
from 4.14 %
Crime Rate
3.00 %
Unchanged by 0.00 %
from 3.00 %

Agent Activity

  • Irving & Sons created the listing.

Nearby Schools

NameTypeOfstedDistance
Emmanuel Middle Church Of England Middle SchoolAcademy Sponsor Led0.46 KM
Verwood Children'S CentreChildren's Centre0.56 KM
Verwood Church Of England First SchoolAcademy Converter0.63 KM
Hillside Community First SchoolAcademy Converter1.06 KM
Trinity Church Of England First SchoolAcademy Converter1.09 KM

Images

Picture No. 34 Picture No. 01 Picture No. 22 Picture No. 12 Picture No. 13 Picture No. 02 Picture No. 24 Picture No. 07 Picture No. 06 Picture No. 15 Picture No. 18 Picture No. 16 Picture No. 21 Picture No. 05 Picture No. 23 Picture No. 04 Picture No. 14 Picture No. 33 Picture No. 32 Picture No. 31 Picture No. 36 Picture No. 28 Picture No. 29 Picture No. 35

Nearby Streets

NameAverage PriceAverage SqftDistance
Manor Gardens £ 000.00 KM
B3072 £ 205,00000.00 KM
Brockway £ 195,00000.00 KM
Edmonsham Road £ 000.00 KM
The Oaks £ 000.00 KM

Nearby Listings

AddressPriceTypeScoreDistance
Lancaster Drive, Verwood, Dorset, BH31 £ 695,000BUY6 / 100.00 KM
Lancaster Drive, Verwood, Dorset, BH31 £ 535,000BUY6 / 100.05 KM
Verwood £ 485,000BUY6 / 100.10 KM
Church Hill, Verwood, Dorset, BH31 £ 255,000BUY5 / 100.12 KM
Verwood £ 250,000BUY6 / 100.13 KM

Nearby Properties

AddressPriceDistance
5 Lancaster Drive £ 350,0000.06 KM
20 Lancaster Drive £ 315,0000.06 KM
8 Lancaster Drive £ 325,0000.06 KM
36 Lancaster Drive £ 467,5000.06 KM
2 Lancaster Drive £ 320,0000.06 KM