Ash Road, Aldershot, Hampshire, GU12
By Bridges Estate Agents
£ 375,000
Reviews
3 out of 5 stars
Bridges Estate Agents says ..
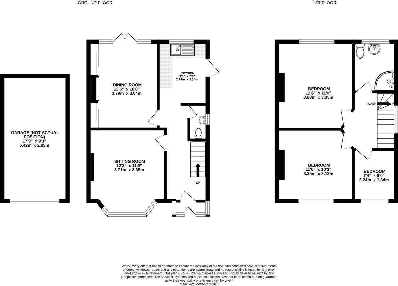
Positioned in a well established residential road in Aldershot, this fantastic three bedroom family home offers excellent potential and generous living space throughout. Additional benefits include driveway parking and a double garage with an electric door. The beautifully private rear garden ext...
Property Oracle says ..
This is a three-bedroom semi-detached house located in Aldershot Park, Hampshire. The property is within a reasonable distance of local schools and transportation links. While the property could benefit from some modernisation, it offers a good-sized garden. The asking price of £375,000 seems reasonable given the size of the property and the garden, but it’s important to factor in the cost of potential renovations.
Therefore, we give this property 6 / 10. *Disclaimer: This is our option and does constitute a recommendation or financial advice. Do your own research. *
- Price
- 7
- Condition
- 5
- Location
- 6
- Land
- 7
- Bedrooms
- 3
- Bathrooms
- 0
- Sqft (est)
- 269.64
The heatmap indicates the level of crime in the area. The color of the heatmap indicates the crime severity and recency.
Metrics Year-on-Year
- Average area value
- 250,000.00 £Increased by 29.42 %
- Est sale value
- 80,622.36 £Increased by 32.89 %
- Average area rental value
- 833.00 £/moDecreased by 23.08 %
- Est letting value
- 0.00 £/moDecreased by 100.00 %
- Est rental Yield
- 4.00 %Decreased by 40.56 %
- Crime Rate
- 7.00 %Unchanged by 0.00 %
Agent Activity
Bridges Estate Agents created the listing.
Nearby Schools
| Name | Type | Ofsted | Distance |
|---|---|---|---|
| Maple Vue Children'S Centre | Children's Centre | 0.70 KM | |
| Alderwood School | Community School | Good | 0.79 KM |
| Park Primary School | Community School | Good | 1.29 KM |
| St Michael'S Church Of England Controlled Junior School | Voluntary Controlled School | Requires improvement | 1.39 KM |
| Sunflowers Children'S Centre | Children's Centre Linked Site | 1.46 KM |
Images
Nearby Streets
| Name | Average Price | Average Sqft | Distance |
|---|---|---|---|
| Blackwater Way | £ 0 | 0 | 0.00 KM |
| Oak Way | £ 0 | 0 | 0.00 KM |
| Alpha Road | £ 0 | 0 | 0.00 KM |
| Chestnut Avenue | £ 385,000 | 0 | 0.00 KM |
| Needhams Place | £ 0 | 0 | 0.00 KM |
Nearby Transport
| Name | NLC | TLC | Distance |
|---|---|---|---|
| Aldershot | 5623 | AHT | 2.05 KM |
| Ash | 5641 | ASH | 3.32 KM |
| North Camp | 5636 | NCM | 3.95 KM |
| Ash Vale | 5547 | AHV | 4.05 KM |
| Farnborough (Main) | 5521 | FNB | 6.28 KM |
Nearby Listings
| Address | Price | Type | Score | Distance |
|---|---|---|---|---|
| Ash Road, Aldershot, Hampshire, GU12 | £ 375,000 | BUY | 6 / 10 | 0.00 KM |
| Lower Newport Road, Aldershot, Hampshire, GU12 | £ 340,000 | BUY | 7 / 10 | 0.10 KM |
| Lower Newport Road, Aldershot, Hampshire, GU12 | £ 335,000 | BUY | 6 / 10 | 0.10 KM |
| Herretts Gardens, Aldershot, Hampshire, GU12 | £ 475,000 | BUY | 7 / 10 | 0.17 KM |
| Herretts Gardens, Aldershot, Hampshire | £ 425,000 | BUY | 7 / 10 | 0.18 KM |
Nearby Properties
| Address | Price | Distance |
|---|---|---|
| 191 Ash Road | £ 226,000 | 0.04 KM |
| 189 Ash Road | £ 232,000 | 0.04 KM |
| 185 Ash Road | £ 283,000 | 0.04 KM |
| 205 Ash Road | £ 280,000 | 0.06 KM |
| 8 Lower Newport Road | £ 207,000 | 0.07 KM |