Owlsmoor Road, Sandhurst, Berkshire, GU47
By Bridges Estate Agents
£ 625,000
Reviews
3 out of 5 stars
Bridges Estate Agents says ..
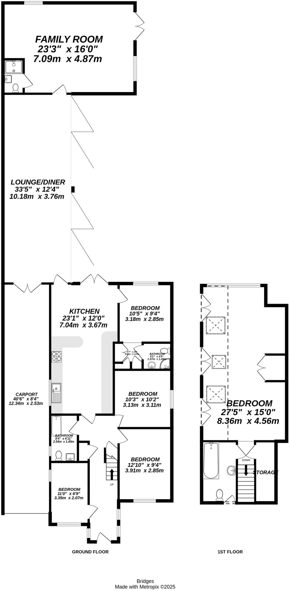
Located in the sought after village of Sandhurst, this impressive detached family home offers approximately 2,700 sq ft of beautifully presented living space. The ground floor features a 33 ft living room with bi-fold doors to the rear garden, a 23 ft kitchen/breakfast room, and a versatile 23 ft...
Property Oracle says ..
This is a detached property located on Owlsmoor Road, Sandhurst, Berkshire. It features five bedrooms and four bathrooms, with a total square footage of 2,270.86. The property includes a garden and garage. The house is conveniently located near local schools and transportation. Overall, this property presents a solid opportunity for prospective buyers, blending space, location, and value.
Therefore, we give this property 7 / 10. *Disclaimer: This is our option and does constitute a recommendation or financial advice. Do your own research. *
- Price
- 8
- Condition
- 7
- Location
- 7
- Land
- 7
- Bedrooms
- 5
- Bathrooms
- 4
- Sqft (est)
- 2,270.86
The heatmap indicates the level of crime in the area. The color of the heatmap indicates the crime severity and recency.
Metrics Year-on-Year
- Average area value
- 217,143.00 £Decreased by 10.70 %
- Est sale value
- 558,631.56 £Decreased by 12.14 %
- Average area rental value
- 1,267.00 £/moIncreased by 25.57 %
- Est letting value
- 2,270.86 £/moUnchanged by 0.00 %
- Est rental Yield
- 7.00 %Increased by 40.56 %
- Crime Rate
- 5.00 %Unchanged by 0.00 %
Agent Activity
Bridges Estate Agents created the listing.
Nearby Schools
| Name | Type | Ofsted | Distance |
|---|---|---|---|
| Owlsmoor Primary School | Community School | Good | 0.62 KM |
| College Town Primary School | Community School | Good | 0.72 KM |
| Alders And Chestnuts Children'S Centre | Children's Centre | 0.78 KM | |
| Wildmoor Heath School | Academy Converter | 1.44 KM | |
| Edgbarrow School | Academy Converter | 1.79 KM |
Images
Nearby Streets
| Name | Average Price | Average Sqft | Distance |
|---|---|---|---|
| Owlsmoor Road | £ 525,000 | 0 | 0.00 KM |
| The Greenway | £ 0 | 0 | 0.00 KM |
| Faversham Road | £ 0 | 0 | 0.00 KM |
| The Greenway | £ 475,000 | 0 | 0.00 KM |
| Alexander Close | £ 275,000 | 0 | 0.00 KM |
Nearby Transport
| Name | NLC | TLC | Distance |
|---|---|---|---|
| Blackwater | 5625 | BAW | 2.37 KM |
| Sandhurst (Berks) | 5646 | SND | 2.60 KM |
| Crowthorne | 5628 | CRN | 4.46 KM |
| Camberley | 5682 | CAM | 4.50 KM |
| Frimley | 5683 | FML | 5.91 KM |
Nearby Listings
| Address | Price | Type | Score | Distance |
|---|---|---|---|---|
| Owlsmoor Road, Sandhurst, Berkshire, GU47 | £ 625,000 | BUY | 7 / 10 | 0.00 KM |
| Owlsmoor Road, Sandhurst, Berkshire, GU47 | £ 625,000 | BUY | 7 / 10 | 0.00 KM |
| Owlsmoor Road, Sandhurst, Berkshire, GU47 | £ 700,000 | BUY | 7 / 10 | 0.00 KM |
| Owlsmoor Road, Owlsmoor | £ 700,000 | BUY | 6 / 10 | 0.03 KM |
| Hormer Close, Owlsmoor, Sandhurst | £ 500,000 | BUY | 6 / 10 | 0.07 KM |
Nearby Properties
| Address | Price | Distance |
|---|---|---|
| 63 Owlsmoor Road | £ 520,000 | 0.07 KM |
| 53 Comyns Court | £ 175,000 | 0.07 KM |
| 53 Owlsmoor Road | £ 139,950 | 0.07 KM |
| 3 Hormer Close | £ 505,000 | 0.09 KM |
| 4 Hormer Close | £ 355,950 | 0.09 KM |