Bedfords says ..
The Magistrates’ Courts at Old Shire Hall are now within a year of completion, marking the final stages of this extensive four-year restoration project. Now available for sale, each of these unique properties offers the opportunity to be part of this historic building, just a sho...
Property Oracle says ..
Therefore, we give this property 5 / 10. *Disclaimer: This is our option and does constitute a recommendation or financial advice. Do your own research. *
- Price
- 3
- Condition
- 9
- Location
- 8
- Land
- 1
- Bedrooms
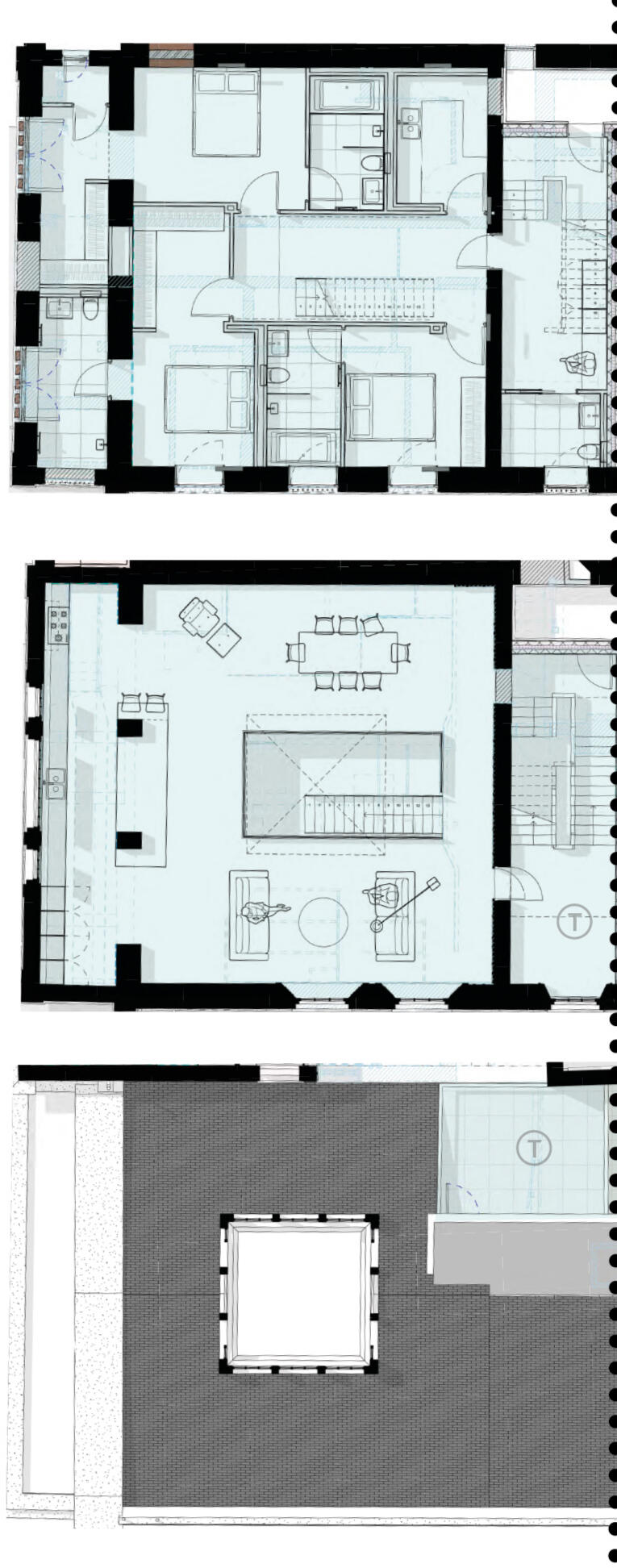
- 3
- Bathrooms
- 3
- Sqft (est)
- 1,326.00
The heatmap indicates the level of crime in the area. The color of the heatmap indicates the crime severity and recency.
Metrics Year-on-Year
- Average area value
- 388,333.00 £Decreased by 1.98 %
- Est sale value
- 489,294.00 £Increased by 12.16 %
- Average area rental value
- 1,597.00 £/moIncreased by 18.47 %
- Est letting value
- 1,326.00 £/moUnchanged by 0.00 %
- Est rental Yield
- 4.93 %Increased by 20.83 %
- Crime Rate
- 2.00 %Unchanged by 0.00 %
from 396,178.00 £
from 436,254.00 £
from 1,348.00 £/mo
from 1,326.00 £/mo
from 4.08 %
from 2.00 %
Agent Activity
Bedfords created the listing.
Nearby Schools
| Name | Type | Ofsted | Distance |
|---|---|---|---|
| Learning Support, Western Area Education Office | Miscellaneous | 0.33 KM | |
| Guildhall Feoffment Community Primary School | Community School | Good | 0.37 KM |
| St Edmund'S Catholic Primary School | Voluntary Aided School | Good | 0.73 KM |
| Bury Library Children'S Centre | Children's Centre | 1.08 KM | |
| Hardwick Primary School | Academy Converter | 1.11 KM |
Images
Nearby Streets
| Name | Average Price | Average Sqft | Distance |
|---|---|---|---|
| Tuns Lane | £ 0 | 0 | 0.00 KM |
| Coppers Close | £ 0 | 0 | 0.00 KM |
| Baker's Lane | £ 0 | 0 | 0.00 KM |
| Redwood Gardens | £ 0 | 0 | 0.00 KM |
| Cathedral View | £ 0 | 0 | 0.00 KM |
Nearby Transport
| Name | NLC | TLC | Distance |
|---|---|---|---|
| Bury St Edmunds | 7008 | BSE | 1.41 KM |
| Thurston | 7356 | TRS | 9.92 KM |
Nearby Listings
| Address | Price | Type | Score | Distance |
|---|---|---|---|---|
| Honey Hill, Suffolk | £ 1,100,000 | BUY | 5 / 10 | 0.00 KM |
| Honey Hill, Suffolk | £ 1,350,000 | BUY | 5 / 10 | 0.01 KM |
| Honey Hill, Suffolk | £ 950,000 | BUY | 5 / 10 | 0.01 KM |
| Bury St. Edmunds, Suffolk | £ 1,200,000 | BUY | 6 / 10 | 0.10 KM |
| Bury St Edmunds, Suffolk | £ 835,000 | BUY | 8 / 10 | 0.11 KM |
Nearby Properties
| Address | Price | Distance |
|---|---|---|
| 6 Sparhawk Street | £ 255,000 | 0.14 KM |
| 3b Sparhawk Street | £ 150,000 | 0.14 KM |
| 7 Sparhawk Street | £ 575,000 | 0.14 KM |
| 3 Sparhawk Street | £ 270,000 | 0.14 KM |
| 3a Sparhawk Street | £ 513,000 | 0.14 KM |