SE
Commonfields, West End, Woking, Surrey, GU24
By Seymours Estate Agents
£ 980,000
Reviews
3 out of 5 stars
Seymours Estate Agents says ..
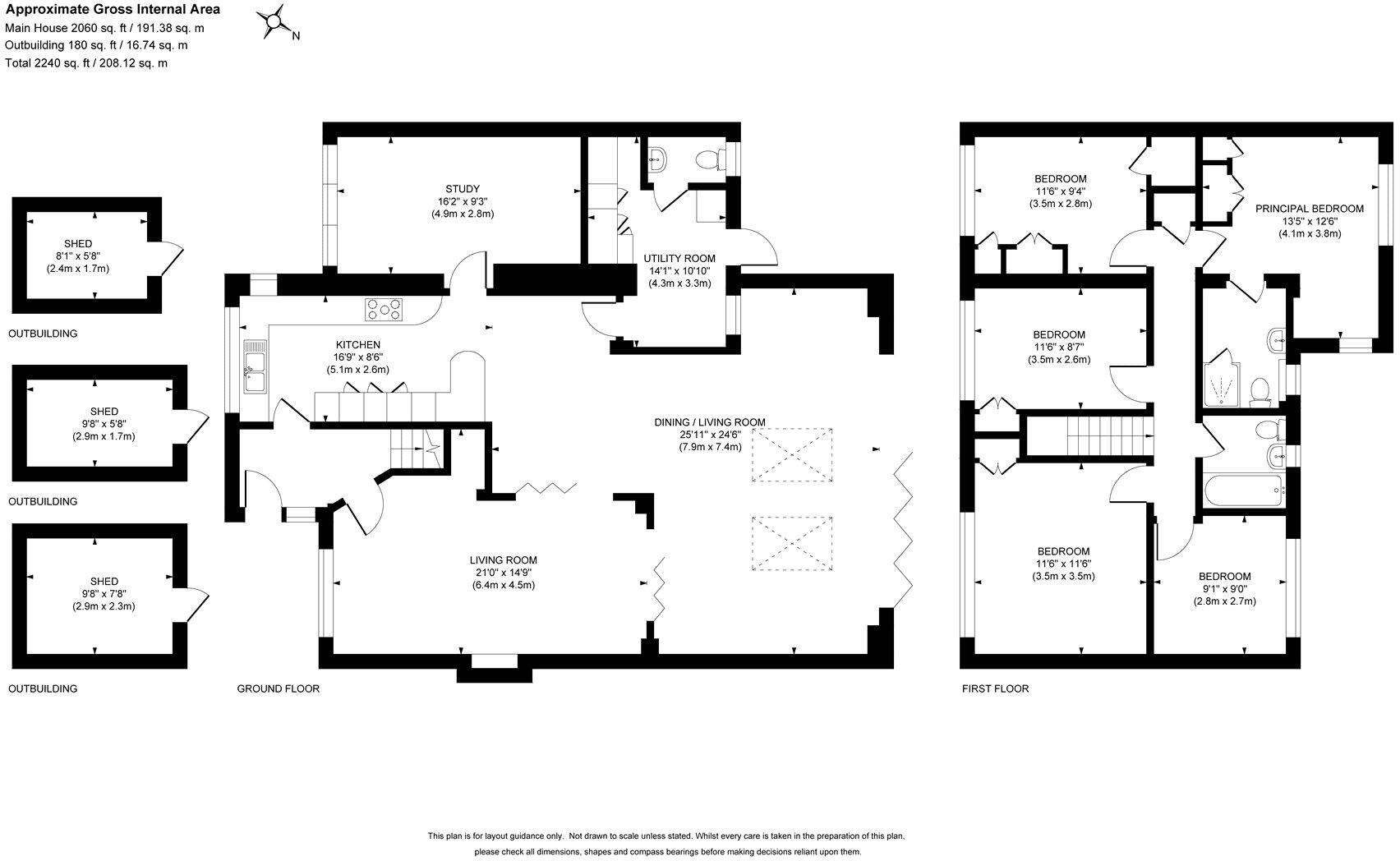
Spacious Five-Bedroom Detached Home Just 660m from Gordon's School Ideally located within 660 metres of the highly regarded Gordon's School and a short walk from Holy Trinity School, this impressive detached family home offers over 2,000 sq. ft. of well-maintained accommodation, presen...
Property Oracle says ..
Therefore, we give this property 7 / 10. *Disclaimer: This is our option and does constitute a recommendation or financial advice. Do your own research. *
- Price
- 7
- Condition
- 8
- Location
- 8
- Land
- 7
- Bedrooms
- 5
- Bathrooms
- 2
- Sqft (est)
- 2,162.49
The heatmap indicates the level of crime in the area. The color of the heatmap indicates the crime severity and recency.
Metrics Year-on-Year
- Average area value
- 644,188.00 £Increased by 3.54 %
- Est sale value
- 916,895.76 £Decreased by 26.64 %
- Average area rental value
- 2,466.00 £/moDecreased by 21.84 %
- Est letting value
- 2,162.49 £/moDecreased by 50.00 %
- Est rental Yield
- 4.59 %Decreased by 24.63 %
- Crime Rate
- 21.00 %Unchanged by 0.00 %
from 622,146.00 £
from 1,249,919.22 £
from 3,155.00 £/mo
from 4,324.98 £/mo
from 6.09 %
from 21.00 %
Agent Activity
Seymours Estate Agents created the listing.
Nearby Schools
| Name | Type | Ofsted | Distance |
|---|---|---|---|
| Holy Trinity Cofe Primary School | Academy Converter | 0.44 KM | |
| Gordon'S School | Academy Converter | Outstanding | 0.99 KM |
| Bisley Cofe Primary School | Voluntary Aided School | Good | 1.77 KM |
| Valley End Cofe Infant School | Voluntary Controlled School | Outstanding | 2.81 KM |
| Knaphill School | Academy Converter | 3.07 KM |
Images
Nearby Streets
| Name | Average Price | Average Sqft | Distance |
|---|---|---|---|
| Sarsen Court | £ 625,000 | 0 | 0.00 KM |
| Queens Place | £ 0 | 0 | 0.00 KM |
| Iris Drive | £ 0 | 0 | 0.00 KM |
| Strawberry Fields | £ 925,000 | 0 | 0.00 KM |
| Burnt Pollard Lane | £ 1,100,000 | 0 | 0.00 KM |
Nearby Transport
| Name | NLC | TLC | Distance |
|---|---|---|---|
| Brookwood | 5687 | BKO | 4.06 KM |
| Sunningdale | 5671 | SNG | 5.79 KM |
| Bagshot | 5681 | BAG | 6.19 KM |
| Longcross | 5674 | LNG | 6.96 KM |
| Worplesdon | 5686 | WPL | 8.38 KM |
Nearby Listings
| Address | Price | Type | Score | Distance |
|---|---|---|---|---|
| Commonfields, West End, Woking, Surrey, GU24 | £ 980,000 | BUY | 7 / 10 | 0.00 KM |
| Commonfields, West End, Woking, Surrey, GU24 | £ 630,000 | BUY | 7 / 10 | 0.08 KM |
| Commonfields, West End | £ 600,000 | BUY | 7 / 10 | 0.08 KM |
| Sefton Close, West End, Woking, GU24 | £ 1,150,000 | BUY | 7 / 10 | 0.09 KM |
| Bolding House Lane, West End, Surrey, GU24 | £ 650,000 | BUY | 7 / 10 | 0.11 KM |
Nearby Properties
| Address | Price | Distance |
|---|---|---|
| 16a Commonfields | £ 900,000 | 0.07 KM |
| 28 Commonfields | £ 810,500 | 0.07 KM |
| 20 Commonfields | £ 283,500 | 0.07 KM |
| 26 Commonfields | £ 535,000 | 0.07 KM |
| 38 Commonfields | £ 409,000 | 0.07 KM |