Ben Rose says ..
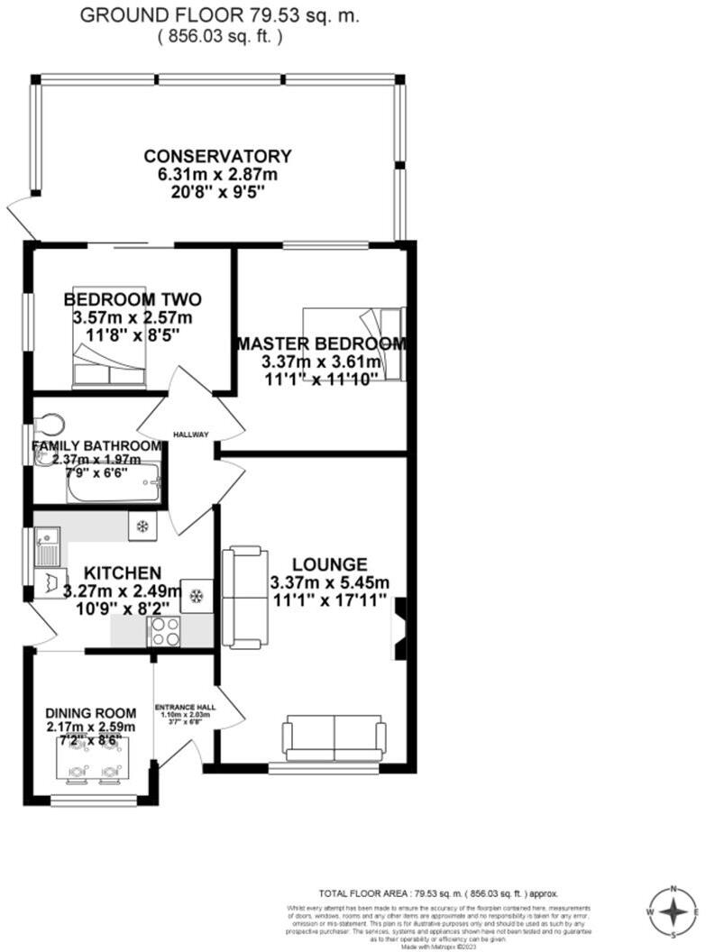
Ben Rose Estate Agents are pleased to present to market the opportunity to acquire this two bedroom bungalow, in a sought after residential area of Chorley. This would be an ideal home for a couple or first time buyer looking to get onto the property ladder. It is only short Drive to Chorley town...
Property Oracle says ..
Therefore, we give this property 7 / 10. *Disclaimer: This is our option and does constitute a recommendation or financial advice. Do your own research. *
- Price
- 8
- Condition
- 6
- Location
- 7
- Land
- 7
- Bedrooms
- 2
- Bathrooms
- 1
- Sqft (est)
- 856.05
The heatmap indicates the level of crime in the area. The color of the heatmap indicates the crime severity and recency.
Metrics Year-on-Year
- Average area value
- 271,777.00 £Increased by 15.25 %
- Est sale value
- 193,467.30 £Increased by 15.90 %
- Average area rental value
- 761.00 £/moDecreased by 4.04 %
- Est letting value
- 0.00 £/mo
- Est rental Yield
- 3.36 %Decreased by 16.83 %
- Crime Rate
- 0.00 %
from 235,807.00 £
from 166,929.75 £
from 793.00 £/mo
from 0.00 £/mo
from 4.04 %
from 0.00 %
Agent Activity
Ben Rose created the listing.
Nearby Schools
| Name | Type | Ofsted | Distance |
|---|---|---|---|
| St Mary'S Catholic Primary School And Nursery, Chorley | Voluntary Aided School | Good | 0.32 KM |
| Parklands High School | Academy Converter | Good | 0.48 KM |
| Lancashire College Of Adult Education | Miscellaneous | 0.70 KM | |
| Gillibrand Primary School | Community School | Outstanding | 0.73 KM |
| Chorley Astley Park School | Community Special School | Outstanding | 0.92 KM |
Images
Nearby Streets
| Name | Average Price | Average Sqft | Distance |
|---|---|---|---|
| Queensgate | £ 0 | 0 | 0.00 KM |
| Gillibrand Close | £ 0 | 0 | 0.00 KM |
| Mountbatten Road | £ 0 | 0 | 0.00 KM |
| Chatsworth Close | £ 0 | 0 | 0.00 KM |
| Windsor Close | £ 159,995 | 0 | 0.00 KM |
Nearby Transport
| Name | NLC | TLC | Distance |
|---|---|---|---|
| Chorley | 2745 | CRL | 2.12 KM |
| Buckshaw Parkway | 7501 | BSV | 2.92 KM |
| Euxton Balshaw Lane | 2080 | EBA | 3.04 KM |
| Adlington (Lancashire) | 2641 | ADL | 6.38 KM |
| Leyland | 2710 | LEY | 6.95 KM |
Nearby Listings
| Address | Price | Type | Score | Distance |
|---|---|---|---|---|
| Walgarth Drive, Chorley | £ 209,995 | BUY | 7 / 10 | 0.00 KM |
| Walgarth Drive, Chorley | £ 235,000 | BUY | Unknown | 0.12 KM |
| Collingwood Road, Chorley | £ 210,000 | BUY | 7 / 10 | 0.19 KM |
| Lindsay Drive, Chorley, PR7 | £ 349,995 | BUY | 6 / 10 | 0.19 KM |
| Collingwood Road, Chorley, Lancashire, PR7 | £ 250,000 | BUY | 7 / 10 | 0.19 KM |
Nearby Properties
| Address | Price | Distance |
|---|---|---|
| 76 Walgarth Drive | £ 290,000 | 0.12 KM |
| 57 Walgarth Drive | £ 215,000 | 0.12 KM |
| 47 Walgarth Drive | £ 150,000 | 0.12 KM |
| 14 Walgarth Drive | £ 240,000 | 0.12 KM |
| 50 Walgarth Drive | £ 190,100 | 0.12 KM |