Goodfellows says ..
This stunning end of terrace cottage is offered to the market with no onward chain. With period and charm throughout, including ceiling roses, oak manufactured flooring, a feature fireplace to the lounge, an internal viewing is more than advised. Perfectly situated for local amenities, parks, sc...
Property Oracle says ..
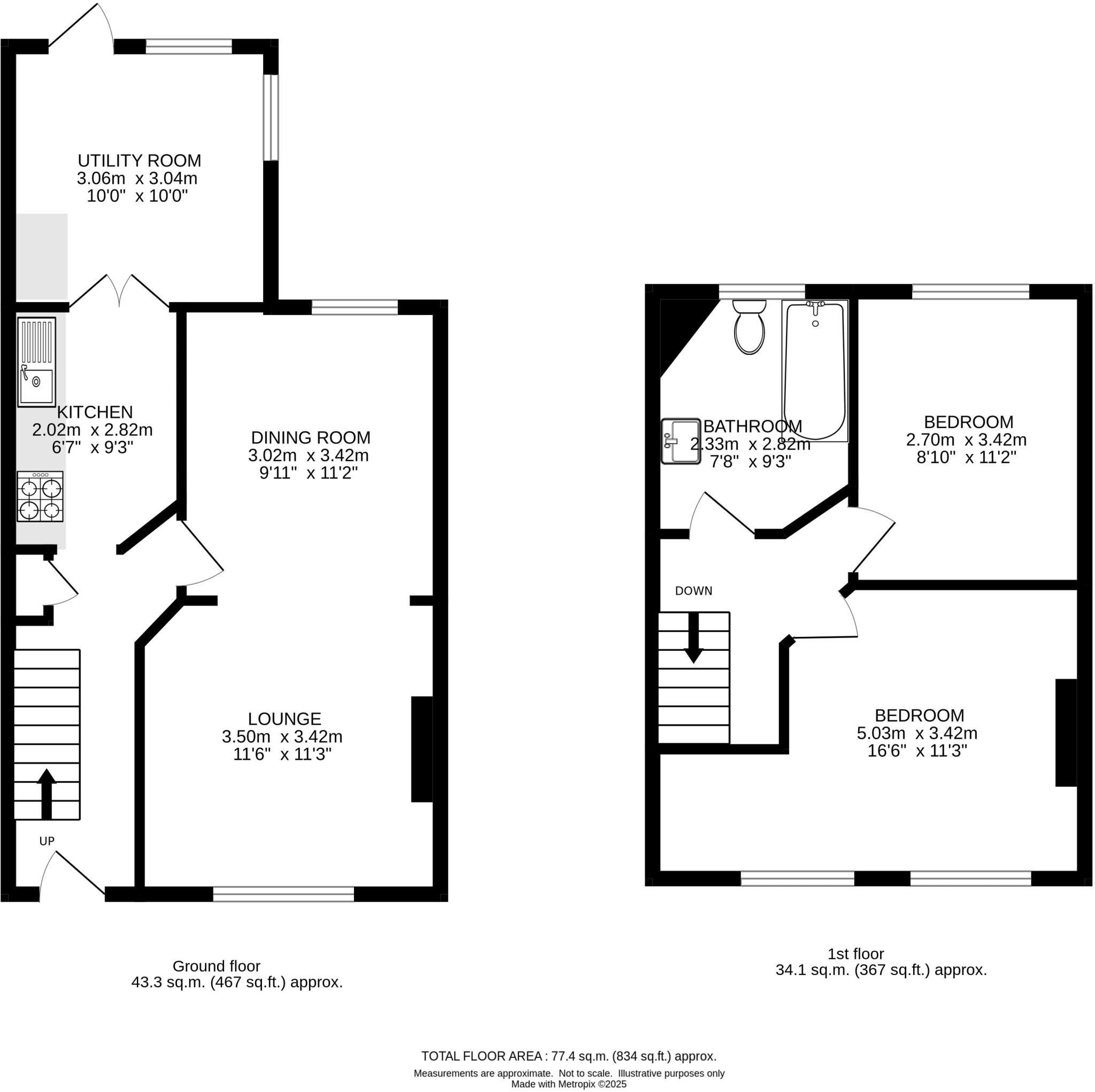
This is a 2-bedroom end-of-terrace house located in Lower Morden, London. The property is in good condition and has a garden. The location is convenient for schools, shops, and transportation. The property is listed for £475,000, which is below the average price for similar properties in the area. The property benefits from a modern interior, a patio and a shed.
Therefore, we give this property 7 / 10. *Disclaimer: This is our option and does constitute a recommendation or financial advice. Do your own research. *
- Price
- 7
- Condition
- 8
- Location
- 7
- Land
- 6
- Bedrooms
- 2
- Bathrooms
- 1
The heatmap indicates the level of crime in the area. The color of the heatmap indicates the crime severity and recency.
Metrics Year-on-Year
- Average area value
- 575,778.00 £Increased by 14.54 %
- Average area rental value
- 2,096.00 £/moDecreased by 8.39 %
- Est rental Yield
- 4.37 %Decreased by 19.96 %
- Crime Rate
- 1.00 %Unchanged by 0.00 %
Agent Activity
Goodfellows created the listing.
Nearby Schools
| Name | Type | Ofsted | Distance |
|---|---|---|---|
| St Cecilia'S Catholic Primary School | Voluntary Aided School | Outstanding | 0.60 KM |
| Green Oak Children'S Centre (Formally Nonsuch And Cheam Sure Start Children'S Centre) | Children's Centre | 0.66 KM | |
| Green Oak Children'S Centre (Formally Stonecot And Worcester Park Children'S Centre) | Children's Centre | 0.66 KM | |
| Aragon Primary School | Academy Converter | Good | 0.74 KM |
| Lower Morden Children'S Centre | Children's Centre Linked Site | 0.76 KM |
Images
Nearby Streets
| Name | Average Price | Average Sqft | Distance |
|---|---|---|---|
| Stanton Close | £ 0 | 0 | 0.00 KM |
| Trafalgar Avenue | £ 396,250 | 0 | 0.00 KM |
| Pig Farm Alley | £ 0 | 0 | 0.00 KM |
| Chiltern Close | £ 500,000 | 0 | 0.00 KM |
| London Road | £ 239,000 | 0 | 0.00 KM |
Nearby Transport
| Name | NLC | TLC | Distance |
|---|---|---|---|
| Motspur Park | 5645 | MOT | 2.26 KM |
| Worcester Park | 5579 | WCP | 2.41 KM |
| West Sutton | 5293 | WSU | 2.75 KM |
| St Helier | 5290 | SIH | 2.84 KM |
| South Merton | 5292 | SMO | 3.03 KM |
Nearby Listings
| Address | Price | Type | Score | Distance |
|---|---|---|---|---|
| Garth Road, Morden, SM4 | £ 475,000 | BUY | 7 / 10 | 0.00 KM |
| Garth Road, Morden | £ 675,000 | BUY | 6 / 10 | 0.01 KM |
| Garth Road, Morden, SM4 | £ 400,000 | BUY | 5 / 10 | 0.03 KM |
| Garth Road, Morden, SM4 4LS | £ 325,000 | BUY | 7 / 10 | 0.07 KM |
| Charminster Road, Worcester Park, KT4 | £ 585,000 | BUY | 7 / 10 | 0.15 KM |
Nearby Properties
| Address | Price | Distance |
|---|---|---|
| 93 Garth Road | £ 365,000 | 0.01 KM |
| 111 Garth Road | £ 387,000 | 0.01 KM |
| 117 Garth Road | £ 195,000 | 0.01 KM |
| 125 Garth Road | £ 249,950 | 0.01 KM |
| 91 Garth Road | £ 420,000 | 0.01 KM |