SW
Avonlea Road, Sale
By Swithenbank Estate Agents
£ 675,000
Reviews
3 out of 5 stars
Swithenbank Estate Agents says ..
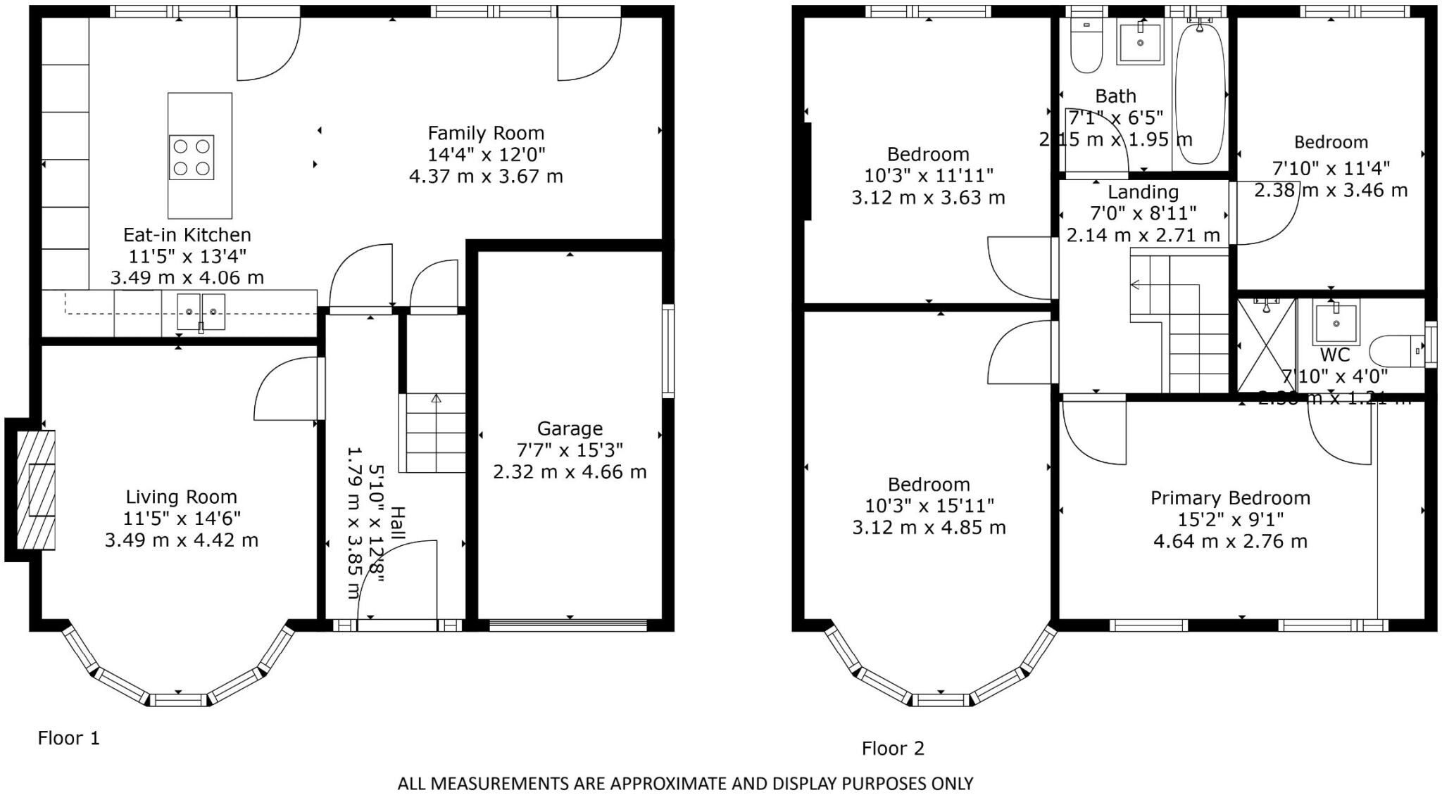
A must see beautifully finished detached property with 4 double bedrooms and a recently installed open plan kitchen.
Property Oracle says ..
Therefore, we give this property 7 / 10. *Disclaimer: This is our option and does constitute a recommendation or financial advice. Do your own research. *
- Price
- 7
- Condition
- 9
- Location
- 8
- Land
- 7
- Bedrooms
- 4
- Bathrooms
- 2
The heatmap indicates the level of crime in the area. The color of the heatmap indicates the crime severity and recency.
Metrics Year-on-Year
- Average area value
- 540,667.00 £Increased by 49.72 %
- Average area rental value
- 1,379.00 £/moDecreased by 0.29 %
- Est rental Yield
- 3.06 %Decreased by 33.48 %
- Crime Rate
- 0.00 %
from 361,116.00 £
from 1,383.00 £/mo
from 4.60 %
from 0.00 %
Agent Activity
Swithenbank Estate Agents created the listing.
Nearby Schools
| Name | Type | Ofsted | Distance |
|---|---|---|---|
| Tyntesfield Primary School | Academy Converter | 0.44 KM | |
| Woodheys Primary School | Community School | Good | 0.62 KM |
| Ashton Upon Mersey Children'S Centre | Children's Centre Linked Site | 0.66 KM | |
| Sale Children'S Centre | Children's Centre Linked Site | 0.66 KM | |
| Sale Central Children'S Centre | Children's Centre Linked Site | 0.66 KM |
Images
Nearby Streets
| Name | Average Price | Average Sqft | Distance |
|---|---|---|---|
| The Drive | £ 0 | 0 | 0.00 KM |
| Meadway | £ 550,000 | 0 | 0.00 KM |
| Cherry Lane | £ 380,000 | 0 | 0.00 KM |
| Harwell Road | £ 0 | 0 | 0.00 KM |
| Geddington Road | £ 0 | 0 | 0.00 KM |
Nearby Transport
| Name | NLC | TLC | Distance |
|---|---|---|---|
| Navigation Road | 2940 | NVR | 1.61 KM |
| Altrincham | 2806 | ALT | 2.37 KM |
| Hale (Manchester) | 2845 | HAL | 3.37 KM |
| Urmston | 2938 | URM | 4.41 KM |
| Chassen Road | 2947 | CSR | 4.68 KM |
Nearby Listings
| Address | Price | Type | Score | Distance |
|---|---|---|---|---|
| Avonlea Road, Sale | £ 675,000 | BUY | 7 / 10 | 0.00 KM |
| Avonlea Road, Sale, M33 | £ 619,995 | BUY | 6 / 10 | 0.03 KM |
| Woodheys Drive, Sale, Cheshire, Greater Manchester, M33 | £ 475,000 | BUY | 7 / 10 | 0.03 KM |
| Avonlea Road, Sale | £ 565,000 | BUY | 7 / 10 | 0.04 KM |
| Woodheys Drive, Sale | £ 439,950 | BUY | 6 / 10 | 0.04 KM |
Nearby Properties
| Address | Price | Distance |
|---|---|---|
| 36 Avonlea Road | £ 405,000 | 0.03 KM |
| 32 Avonlea Road | £ 435,000 | 0.03 KM |
| 12 Avonlea Road | £ 285,000 | 0.03 KM |
| 14 Avonlea Road | £ 325,000 | 0.03 KM |
| 20 Avonlea Road | £ 285,000 | 0.03 KM |