SINGLE BUILDING PLOT, Lostwithiel, Cornwall, PL22
By KLP
£ 99,950
Reviews
2 out of 5 stars
KLP says ..
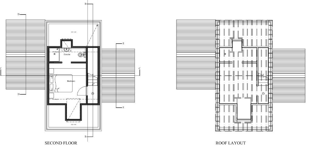
Comprising a section of land in an attractive cul-de-sac setting in Lostwithiel, this single building plot benefits from commenced detailed planning approval (confirmed by a recent Certificate of Lawfulness) and building regulation approval for the construction of a new four bedroom detached house.
Property Oracle says ..
This listing presents a building plot in Lostwithiel, Cornwall, with approved plans for a four-bedroom detached house. The plot is situated in a cul-de-sac, suggesting a potentially quiet residential setting. The proximity to Lostwithiel train station enhances the property’s appeal for commuters. The presence of nearby schools, including Lostwithiel School (0.09km) and St Winnow Cofe School (2.52km), could be a draw for families. While the listing provides approved plans for the construction of a four-bedroom house, the actual plot size is not specified, hindering a complete evaluation of land value. The lack of information on specific plot dimensions and absence of detailed pricing analysis prevents a more conclusive assessment. Overall, the property offers potential for development, making this listing potentially attractive to buyers wanting to build a property in this location. However, interested parties should be aware that they will need to obtain building permits and finance the development to construct the property.
Therefore, we give this property 4 / 10. *Disclaimer: This is our option and does constitute a recommendation or financial advice. Do your own research. *
- Price
- 6
- Condition
- 1
- Location
- 7
- Land
- 4
- Bedrooms
- 0
- Bathrooms
- 0
The heatmap indicates the level of crime in the area. The color of the heatmap indicates the crime severity and recency.
Metrics Year-on-Year
- Average area value
- 380,500.00 £Decreased by 7.95 %
- Average area rental value
- 1,550.00 £/moIncreased by 31.91 %
- Est rental Yield
- 4.89 %Increased by 43.40 %
- Crime Rate
- 44.00 %Unchanged by 0.00 %
Agent Activity
KLP created the listing.
Nearby Schools
| Name | Type | Ofsted | Distance |
|---|---|---|---|
| Lostwithiel School | Academy Converter | Requires improvement | 0.09 KM |
| St Winnow Cofe School | Academy Converter | Good | 2.52 KM |
| Lanlivery Primary Academy | Academy Converter | Good | 3.26 KM |
| Red Moor School | Other Independent Special School | 3.33 KM | |
| Tywardreath School | Academy Sponsor Led | Good | 6.29 KM |
Images
Nearby Streets
| Name | Average Price | Average Sqft | Distance |
|---|---|---|---|
| Dark Lane | £ 270,000 | 0 | 0.00 KM |
| Rosehill | £ 950,000 | 0 | 0.00 KM |
| Skiddery Hill | £ 145,000 | 0 | 0.00 KM |
| The Moors | £ 220,000 | 0 | 0.00 KM |
| Silverlake | £ 0 | 0 | 0.00 KM |
Nearby Transport
| Name | NLC | TLC | Distance |
|---|---|---|---|
| Lostwithiel | 3517 | LOS | 1.06 KM |
| Bodmin Parkway | 3501 | BOD | 4.29 KM |
| Par | 3524 | PAR | 6.81 KM |
| Luxulyan | 3518 | LUX | 8.25 KM |
Nearby Listings
| Address | Price | Type | Score | Distance |
|---|---|---|---|---|
| SINGLE BUILDING PLOT, Lostwithiel, Cornwall, PL22 | £ 99,950 | BUY | 4 / 10 | 0.00 KM |
| Bodmin Hill, Lostwithiel, PL22 | £ 625,000 | BUY | 7 / 10 | 0.06 KM |
| DEVELOPMENT SITE FOR 5 DWELLINGS, The Brambles, Lostwithiel, Cornwall, PL22 | £ 50,000 | BUY | 5 / 10 | 0.06 KM |
| Uzella Park, Lostwithiel | £ 175,000 | BUY | 6 / 10 | 0.13 KM |
| Uzella Park, Lostwithiel | £ 220,000 | BUY | 6 / 10 | 0.13 KM |
Nearby Properties
| Address | Price | Distance |
|---|---|---|
| 10 The Brambles | £ 255,000 | 0.04 KM |
| 2 The Brambles | £ 250,000 | 0.04 KM |
| 4 The Brambles | £ 265,000 | 0.04 KM |
| 1 The Brambles | £ 205,000 | 0.04 KM |
| 5 The Brambles | £ 350,000 | 0.04 KM |