North Walls, Regnum Court, PO19
By Henry Adams
£ 295,000
Reviews
3 out of 5 stars
Henry Adams says ..
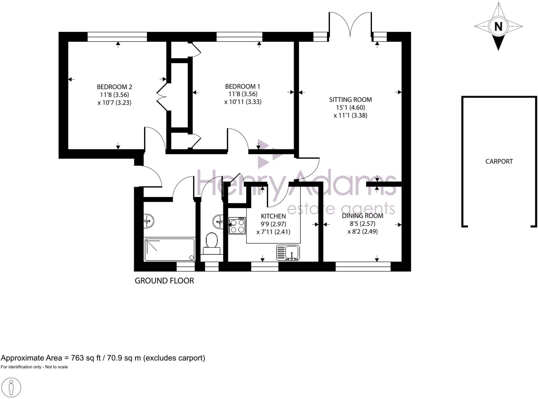
NO ONWARD CHAIN. A light dual aspect GROUND FLOOR APARTMENT, sitting room with SOUTH FACING BALCONY, kitchen, TWO BEDROOMS situated in a quiet location within the city walls. ALLOCATED PARKING. EPC-C
Property Oracle says ..
This 2-bedroom flat is situated in Chichester, West Sussex, a popular city in South East England. The property benefits from a convenient location, with nearby transportation links such as Chichester train station (0.85km). There are also several schools within a reasonable distance, including St. Joseph’s Cofe Junior School (0.32km) and St. Anthony’s School (0.80km). The flat itself appears to be in good condition based on the provided images, with a modern kitchen and bathroom. The property includes allocated parking. While the exact plot size is specified, the surrounding area has access to green spaces. The list price of £295,000 is slightly below the average price for the area (£418,717), although it is important to note that the average price per sqft in the area (£458) is considerably higher than the implied price per sqft for this property, given its size (1007.5 sqft). This suggests that the property might represent good value for money, especially considering its apparent condition and location.
Therefore, we give this property 7 / 10. *Disclaimer: This is our option and does constitute a recommendation or financial advice. Do your own research. *
- Price
- 8
- Condition
- 8
- Location
- 9
- Land
- 6
- Bedrooms
- 2
- Bathrooms
- 1
- Sqft (est)
- 1,007.50
- Lot (est)
- 763.16
The heatmap indicates the level of crime in the area. The color of the heatmap indicates the crime severity and recency.
Metrics Year-on-Year
- Average area value
- 311,406.00 £Decreased by 28.23 %
- Est sale value
- 485,615.00 £Increased by 10.55 %
- Average area rental value
- 1,257.00 £/moDecreased by 21.73 %
- Est letting value
- 1,007.50 £/moUnchanged by 0.00 %
- Est rental Yield
- 4.84 %Increased by 9.01 %
- Crime Rate
- 20.00 %Unchanged by 0.00 %
Agent Activity
Henry Adams created the listing.
Nearby Schools
| Name | Type | Ofsted | Distance |
|---|---|---|---|
| St. Joseph'S Cofe Junior School | Academy Sponsor Led | Requires improvement | 0.32 KM |
| St. Joseph'S Infant School | Academy Converter | 0.39 KM | |
| The Prebendal School | Other Independent School | 0.40 KM | |
| St Anthony'S School | Community Special School | Outstanding | 0.80 KM |
| University Of Chichester | Higher Education Institutions | 0.82 KM |
Images
Nearby Streets
| Name | Average Price | Average Sqft | Distance |
|---|---|---|---|
| St Paul's Garden | £ 0 | 0 | 0.00 KM |
| Crooked 'S' | £ 0 | 0 | 0.00 KM |
| Orchard Gardens | £ 0 | 0 | 0.00 KM |
| St Richard's Walk | £ 0 | 0 | 0.00 KM |
| Saint Paul's Road | £ 275,000 | 0 | 0.00 KM |
Nearby Transport
| Name | NLC | TLC | Distance |
|---|---|---|---|
| Chichester | 5255 | CCH | 0.85 KM |
| Fishbourne (Sussex) | 5261 | FSB | 3.87 KM |
| Bosham | 5254 | BOH | 7.46 KM |
Nearby Listings
| Address | Price | Type | Score | Distance |
|---|---|---|---|---|
| North Walls, Regnum Court, PO19 | £ 295,000 | BUY | 7 / 10 | 0.00 KM |
| North Walls, Chichester, PO19 | £ 290,000 | BUY | 5 / 10 | 0.00 KM |
| North Walls, Chichester, West Sussex | £ 290,000 | BUY | 6 / 10 | 0.01 KM |
| North Walls, CHICHESTER, West Sussex, PO19 | £ 295,000 | BUY | 6 / 10 | 0.01 KM |
| Regnum Court, Chichester, West Sussex, PO19 | £ 235,000 | BUY | 6 / 10 | 0.04 KM |
Nearby Properties
| Address | Price | Distance |
|---|---|---|
| 181 Orchard Street | £ 345,000 | 0.09 KM |
| 185 Orchard Street | £ 225,000 | 0.09 KM |
| 191 Orchard Street | £ 275,000 | 0.09 KM |
| 193 Orchard Street | £ 275,000 | 0.09 KM |
| 189 Orchard Street | £ 223,500 | 0.09 KM |