Hall & Scott says ..
A well presented 2 bedroom second floor apartment enjoying sea and coastal views, within well maintained communal grounds extending to 1.65 acres, a short walk from the beach
Property Oracle says ..
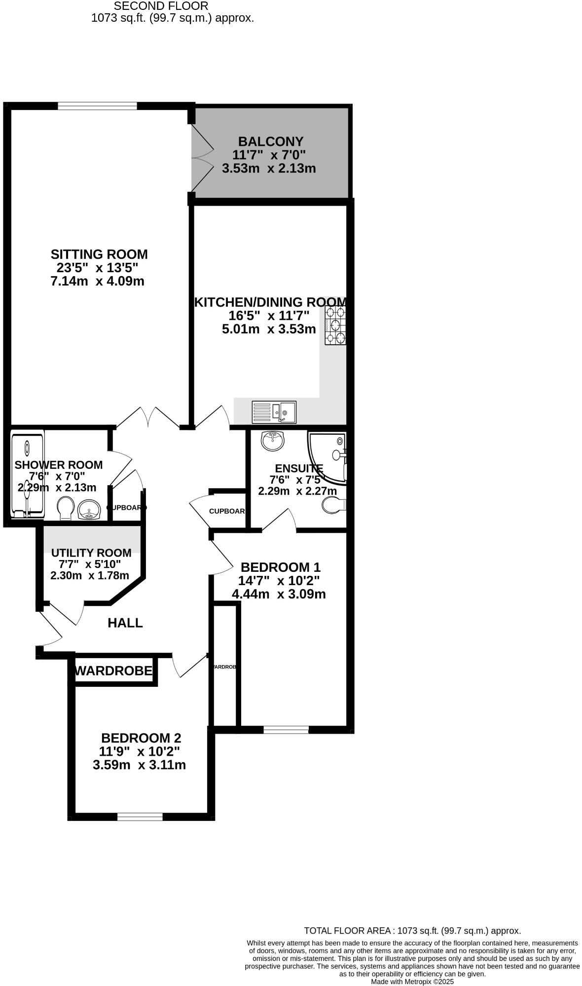
This property is a 2 bedroom, 2 bathroom apartment located in Exmouth, Devon. The apartment is situated on Douglas Avenue, which is close to several schools including Exeter Royal Academy for Deaf Education and St Joseph’s Catholic Primary School. Exmouth train station is also within a reasonable distance, providing convenient access to other areas. The property appears to be in good condition based on the provided photos, although some minor updates or cosmetic improvements could enhance its appeal. The apartment has a balcony offering views, and there is access to communal gardens. The list price is slightly above the average price for the area, but given its location, condition, and additional features, it could be considered reasonable for the right buyer. The plot size is 1,073 sqft which is smaller than the average for the area.
Therefore, we give this property 7 / 10. *Disclaimer: This is our option and does constitute a recommendation or financial advice. Do your own research. *
- Price
- 7
- Condition
- 8
- Location
- 8
- Land
- 6
- Bedrooms
- 2
- Bathrooms
- 2
- Sqft (est)
- 870.06
- Lot (est)
- 1,073.00
The heatmap indicates the level of crime in the area. The color of the heatmap indicates the crime severity and recency.
Metrics Year-on-Year
- Average area value
- 385,000.00 £Decreased by 11.33 %
- Est sale value
- 579,459.96 £Increased by 93.60 %
- Average area rental value
- 1,650.00 £/moIncreased by 37.04 %
- Est letting value
- 1,740.12 £/mo
- Est rental Yield
- 5.14 %Increased by 54.35 %
- Crime Rate
- 4.00 %Unchanged by 0.00 %
Agent Activity
Hall & Scott created the listing.
Nearby Schools
| Name | Type | Ofsted | Distance |
|---|---|---|---|
| Exeter Royal Academy For Deaf Education | Non-maintained Special School | Requires improvement | 0.82 KM |
| St Joseph'S Catholic Primary School, Exmouth | Academy Converter | Good | 0.85 KM |
| Exmouth & District Children'S Centre | Children's Centre | 1.49 KM | |
| Exmouth Community College | Academy Converter | Requires improvement | 1.59 KM |
| Marpool Primary School | Foundation School | Good | 1.60 KM |
Images
Nearby Streets
| Name | Average Price | Average Sqft | Distance |
|---|---|---|---|
| High View Gardens | £ 0 | 0 | 0.00 KM |
| Admirals Court | £ 119,488 | 0 | 0.00 KM |
| Walnut Grove | £ 220,000 | 0 | 0.00 KM |
| Bicton Villas | £ 0 | 0 | 0.00 KM |
| Park Way | £ 345,000 | 0 | 0.00 KM |
Nearby Transport
| Name | NLC | TLC | Distance |
|---|---|---|---|
| Exmouth | 5756 | EXM | 1.94 KM |
| Lympstone Village | 5761 | LYM | 5.14 KM |
| Dawlish Warren | 3409 | DWW | 5.28 KM |
| Starcross | 3413 | SCS | 5.60 KM |
| Lympstone Commando | 5762 | LYC | 7.02 KM |
Nearby Listings
| Address | Price | Type | Score | Distance |
|---|---|---|---|---|
| Douglas Avenue, Exmouth | £ 545,000 | BUY | 7 / 10 | 0.00 KM |
| Exmouth, Devon | £ 550,000 | BUY | 6 / 10 | 0.01 KM |
| Douglas Avenue, Exmouth, Devon, EX8 | £ 1,150,000 | BUY | Unknown | 0.01 KM |
| Roswell Court, Douglas Avenue, Exmouth | £ 167,000 | BUY | 5 / 10 | 0.05 KM |
| Douglas Avenue, Exmouth | £ 595,000 | BUY | 6 / 10 | 0.06 KM |
Nearby Properties
| Address | Price | Distance |
|---|---|---|
| 11a Douglas Avenue | £ 595,000 | 0.05 KM |
| 15 Isca Road | £ 250,000 | 0.14 KM |
| 34 Cyprus Gardens | £ 160,000 | 0.21 KM |
| 39 Cyprus Gardens | £ 375,000 | 0.21 KM |
| 26 Cyprus Gardens | £ 207,950 | 0.21 KM |