Belle Vue Lane, Guilden Sutton
HI

Belle Vue Lane, Guilden Sutton

By Hinchliffe Holmes

£ 950,000

Reviews

4 out of 5 stars

Hinchliffe Holmes says ..

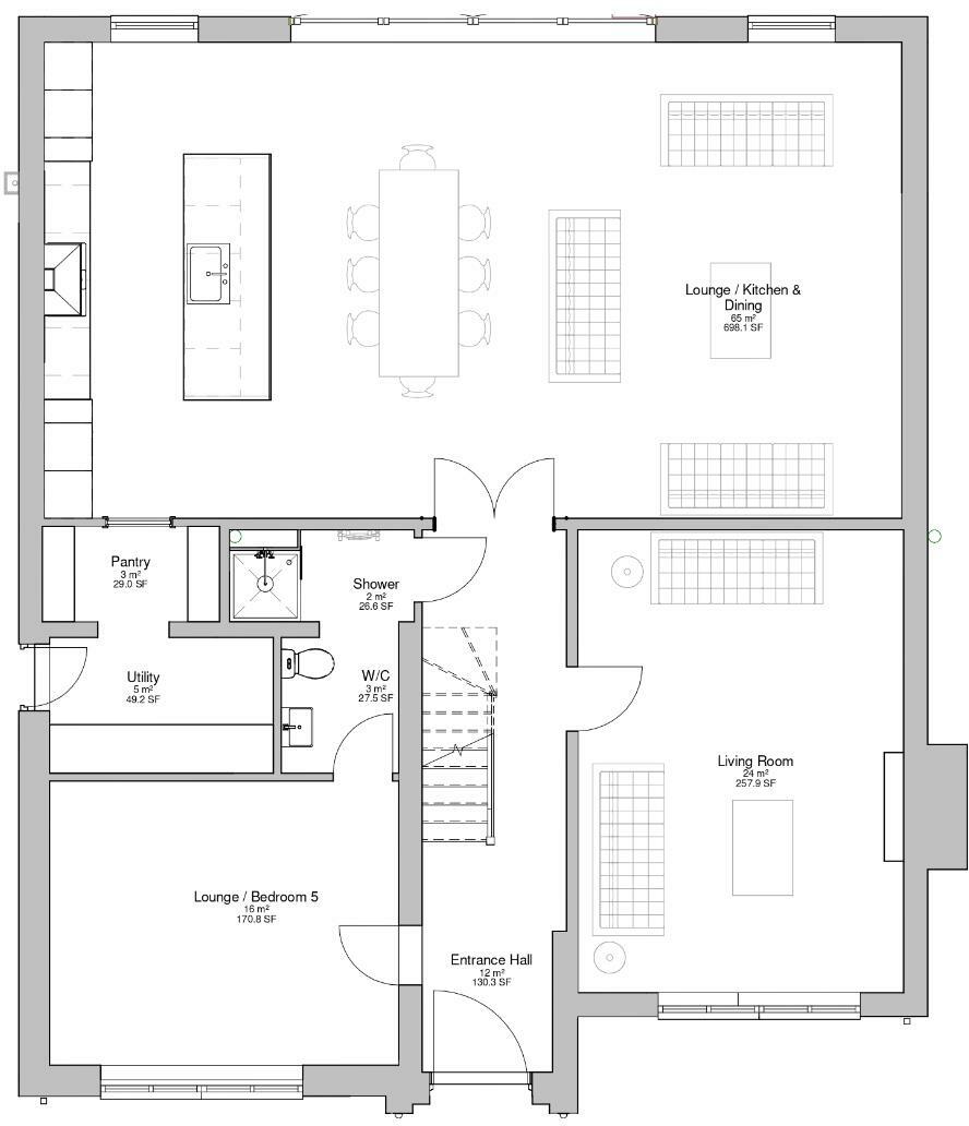
Situated in a sought after quiet village location with open views across farmland, an immaculately presented, FULL RENOVATED, and extended detached family home with superb flexible accommodation and high specifications throughout. Landscaped private gardens and driveway providing off road parkin...

Property Oracle says ..

The property is located in Guilden Sutton, a village in Cheshire. Based on the provided information and images, the property appears to be a newly renovated or recently built, five-bedroom detached house. The location benefits from being close to several outstanding primary schools, such as Guilden Sutton Cofe Primary School, and is within reasonable proximity to Chester train station. The property also includes a landscaped garden, adding to its appeal. The list price of £950,000 is significantly higher than the average house price in the area (£315,458), however, given the property’s size (1399 sqft), high-quality finishes, and recent renovation/construction, the price may be justified within the context of the local market. Further analysis of comparable properties in the immediate vicinity would be needed to definitively assess the value.

Therefore, we give this property 8 / 10. *Disclaimer: This is our option and does constitute a recommendation or financial advice. Do your own research. *

Price
7
Condition
10
Location
9
Land
7
Bedrooms
5
Bathrooms
3
Sqft (est)
1,399.31

The heatmap indicates the level of crime in the area. The color of the heatmap indicates the crime severity and recency.

Metrics Year-on-Year

Average area value
258,571.00 £
Decreased by 18.16 %
from 315,930.00 £
Est sale value
458,973.68 £
Increased by 11.95 %
from 409,997.83 £
Average area rental value
1,230.00 £/mo
Increased by 21.30 %
from 1,014.00 £/mo
Est letting value
1,399.31 £/mo
from 0.00 £/mo
Est rental Yield
5.71 %
Increased by 48.31 %
from 3.85 %
Crime Rate
0.00 %
from 0.00 %

Agent Activity

  • Hinchliffe Holmes created the listing.

Nearby Schools

NameTypeOfstedDistance
Guilden Sutton Cofe Primary SchoolVoluntary Controlled SchoolOutstanding0.52 KM
Mickle Trafford Village SchoolCommunity SchoolOutstanding1.76 KM
Oldfield Primary SchoolCommunity SchoolGood2.21 KM
The HammondOther Independent School2.42 KM
Christleton Primary SchoolCommunity SchoolOutstanding2.59 KM

Images

Holly Lodge-053.jpg Holly Lodge-001.jpg Holly Lodge-003.jpg Holly Lodge-062.jpg Holly Lodge-002.jpg Holly Lodge-005.jpg Holly Lodge-006.jpg Holly Lodge-007.jpg Holly Lodge-010.jpg Holly Lodge-012.jpg Holly Lodge-043.jpg Holly Lodge-044.jpg Holly Lodge-054.jpg Holly Lodge-055.jpg Holly Lodge-016.jpg Holly Lodge-015.jpg Holly Lodge-018.jpg Holly Lodge-020.jpg Holly Lodge-021.jpg Holly Lodge-023.jpg Holly Lodge-025.jpg Holly Lodge-026.jpg Holly Lodge-048.jpg Holly Lodge-029.jpg Holly Lodge-047.jpg Holly Lodge-036.jpg Holly Lodge-031.jpg Holly Lodge-030.jpg Holly Lodge-032.jpg Holly Lodge-033.jpg Holly Lodge-034.jpg Holly Lodge-035.jpg Holly Lodge-037.jpg Holly Lodge-038.jpg Holly Lodge-039.jpg Holly Lodge-040.jpg Holly Lodge-042.jpg Holly Lodge-041.jpg Holly Lodge-045.jpg Holly Lodge-046.jpg Holly Lodge-050.jpg Holly Lodge-056.jpg Holly Lodge-060.jpg Holly Lodge-059.jpg Holly Lodge-061.jpg Holly Lodge-063.jpg Holly Lodge-065.jpg Holly Lodge-066.jpg

Nearby Streets

NameAverage PriceAverage SqftDistance
The Hollows Path £ 735,00000.00 KM
The Nurseries £ 775,00000.00 KM
Hare Lane £ 000.00 KM
The By-Pass £ 000.00 KM
Fir Tree Lane £ 000.00 KM

Nearby Transport

NameNLCTLCDistance
Chester2412CTR4.97 KM
Bache2187BAC6.19 KM
Stanlow And Thornton2159SNT8.02 KM
Ince And Elton (Cheshire)2122INE8.08 KM

Nearby Listings

AddressPriceTypeScoreDistance
Belle Vue Lane, Guilden Sutton £ 950,000BUY8 / 100.00 KM
Belle Vue Lane, Guilden Sutton, Chester £ 950,000BUY7 / 100.02 KM
Oaklands, Guilden Sutton, Chester £ 490,000BUY7 / 100.11 KM
Belle Vue Lane, Guilden Sutton, CH3 £ 775,000BUY7 / 100.13 KM
Oaklands, Guilden Sutton £ 490,000BUY7 / 100.14 KM

Nearby Properties

AddressPriceDistance
Crantock £ 390,0000.02 KM
Dracaena £ 375,0000.02 KM
9 Belle Vue Lane £ 310,0000.02 KM
Pasadena £ 365,0000.02 KM
Penbury £ 425,0000.02 KM