GR
Loughborough Road, Hathern, LE12
By Griffin Property Co.
£ 260,000
Reviews
3 out of 5 stars
Griffin Property Co. says ..
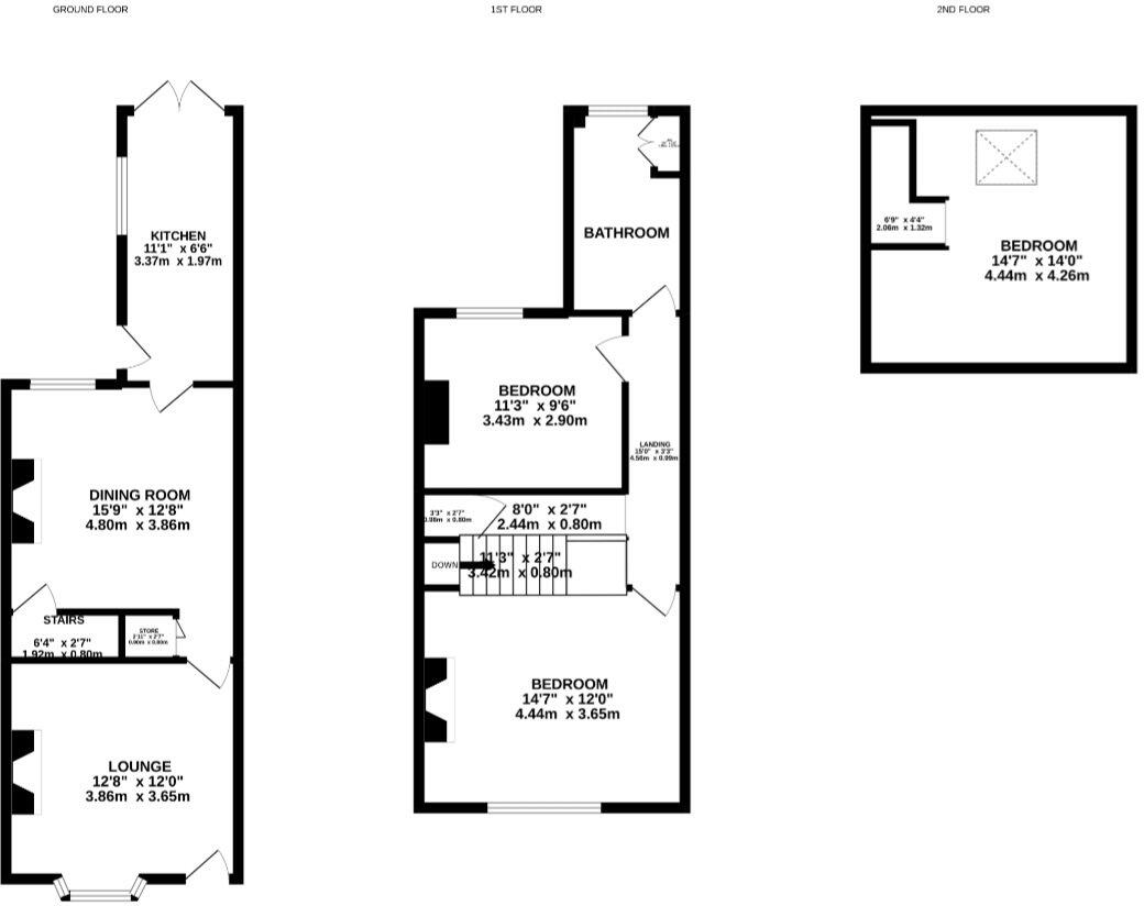
**Charming Terraced Home in Desirable Location** We are delighted to present this beautifully presented three-bedroom terraced property, situated in the heart of Hathern, a picturesque village in Leicestershire. Located on Loughborough Road, this lovely home offers a perfect blend of character, c
Property Oracle says ..
Therefore, we give this property 7 / 10. *Disclaimer: This is our option and does constitute a recommendation or financial advice. Do your own research. *
- Price
- 8
- Condition
- 8
- Location
- 7
- Land
- 7
- Bedrooms
- 3
- Bathrooms
- 1
The heatmap indicates the level of crime in the area. The color of the heatmap indicates the crime severity and recency.
Metrics Year-on-Year
- Average area value
- 607,500.00 £Increased by 4.15 %
- Average area rental value
- 1,328.00 £/moDecreased by 13.15 %
- Est rental Yield
- 2.62 %Decreased by 16.83 %
- Crime Rate
- 56.00 %Unchanged by 0.00 %
from 583,319.00 £
from 1,529.00 £/mo
from 3.15 %
from 56.00 %
Agent Activity
Griffin Property Co. created the listing.
Nearby Schools
| Name | Type | Ofsted | Distance |
|---|---|---|---|
| Hathern Church Of England Primary School | Voluntary Controlled School | Good | 0.50 KM |
| Stonebow Primary School Loughborough | Academy Converter | Good | 1.56 KM |
| Normanton-On-Soar Primary School | Community School | Requires improvement | 2.85 KM |
| Sutton Bonington Primary School | Community School | Good | 2.94 KM |
| Charnwood College | Academy Sponsor Led | Requires improvement | 3.21 KM |
Images
Nearby Streets
| Name | Average Price | Average Sqft | Distance |
|---|---|---|---|
| Dormer Court | £ 375,000 | 0 | 0.00 KM |
| Tancred Crescent | £ 0 | 0 | 0.00 KM |
| Buckhurst Close | £ 0 | 0 | 0.00 KM |
| Zouch Road | £ 0 | 0 | 0.00 KM |
| Woodington Drive | £ 0 | 0 | 0.00 KM |
Nearby Transport
| Name | NLC | TLC | Distance |
|---|---|---|---|
| Loughborough | 1897 | LBO | 7.13 KM |
| East Midlands Parkway | 1901 | EMD | 7.70 KM |
Nearby Listings
| Address | Price | Type | Score | Distance |
|---|---|---|---|---|
| Loughborough Road, Hathern, LE12 | £ 260,000 | BUY | 7 / 10 | 0.00 KM |
| Golden Square, Hathern | £ 250,000 | BUY | 7 / 10 | 0.08 KM |
| Old Way, Hathern, LE12 | £ 125,000 | BUY | 7 / 10 | 0.15 KM |
| High Meadow, Hathern, LE12 | £ 190,000 | BUY | 6 / 10 | 0.19 KM |
| Charnwood Rise, Loughborough Road, Hathern LE12 | £ 750,000 | BUY | 7 / 10 | 0.20 KM |
Nearby Properties
| Address | Price | Distance |
|---|---|---|
| 4 Hunts Orchard | £ 525,000 | 0.08 KM |
| 2 Hunts Orchard | £ 249,950 | 0.08 KM |
| 1 Hunts Orchard | £ 297,000 | 0.08 KM |
| 3 Hunts Orchard | £ 270,000 | 0.08 KM |
| 24 Loughborough Road | £ 177,000 | 0.08 KM |