Norfolk Street, Runcorn
By Bests Estates Agents
£ 150,000
Reviews
3 out of 5 stars
Bests Estates Agents says ..
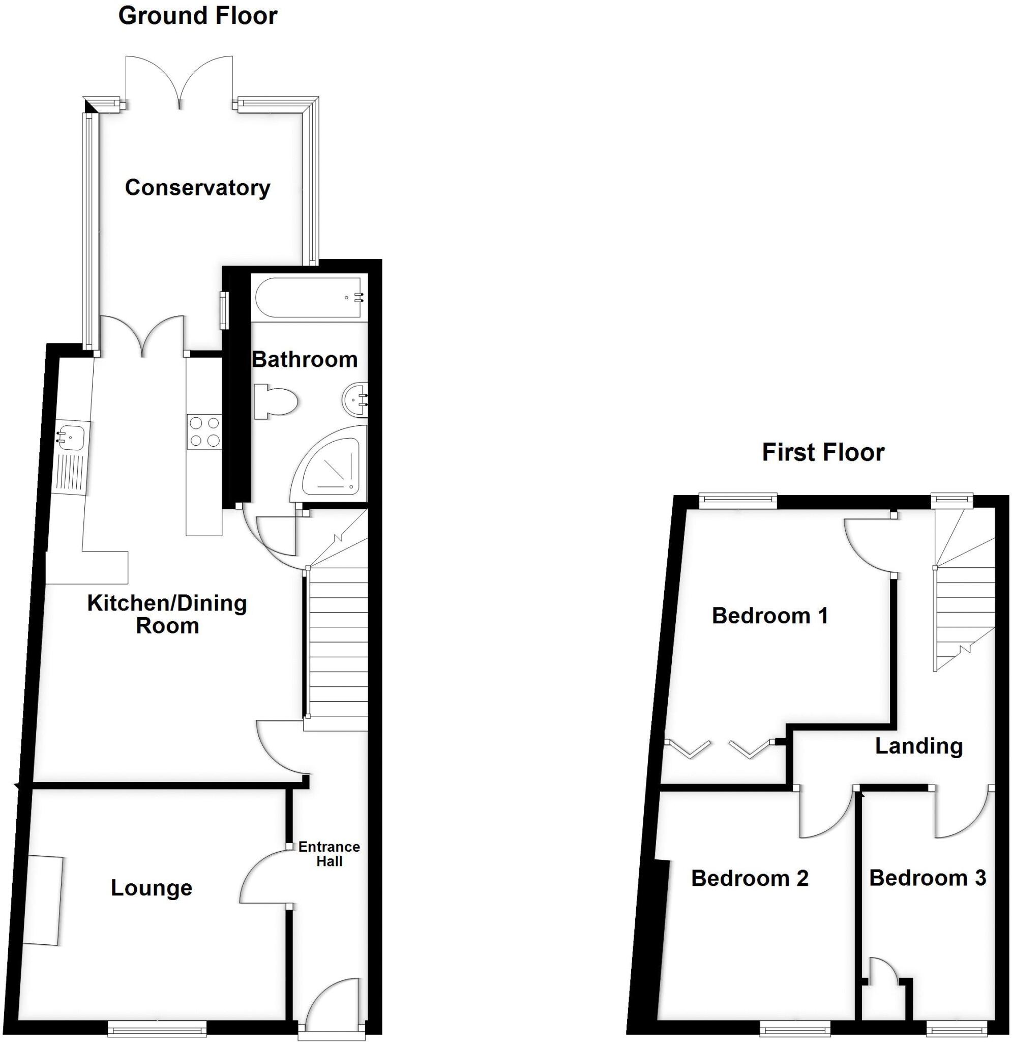
Norfolk Street presents a truly unique home on the edge of Runcorn Old Town, offering far more than the typical mid terrace in this established area. Rarely will you find a property of this style boasting a sizeable, mature garden complemented by a glass roof conservatory with views across it.Lov...
Property Oracle says ..
This is a three-bedroom terraced house in Runcorn, Cheshire. The property benefits from a modern kitchen and bathroom, and a good-sized garden. The property is located close to local schools and amenities. The property is listed at £150,000, which is below the local average. The house is in generally good condition but could benefit from some modernisation.
Therefore, we give this property 7 / 10. *Disclaimer: This is our option and does constitute a recommendation or financial advice. Do your own research. *
- Price
- 7
- Condition
- 7
- Location
- 6
- Land
- 8
- Bedrooms
- 3
- Bathrooms
- 1
- Sqft (est)
- 945.00
The heatmap indicates the level of crime in the area. The color of the heatmap indicates the crime severity and recency.
Metrics Year-on-Year
- Average area value
- 290,444.00 £Increased by 45.57 %
- Est sale value
- 311,850.00 £Increased by 74.60 %
- Average area rental value
- 1,060.00 £/moIncreased by 29.74 %
- Est letting value
- 945.00 £/mo
- Est rental Yield
- 4.38 %Decreased by 10.79 %
- Crime Rate
- 7.00 %Unchanged by 0.00 %
Agent Activity
Bests Estates Agents created the listing.
Nearby Schools
| Name | Type | Ofsted | Distance |
|---|---|---|---|
| St Edward'S Catholic Primary School | Voluntary Aided School | Good | 0.05 KM |
| Victoria Road Primary School | Community School | Good | 1.25 KM |
| Runcorn All Saints Cofe Primary School | Voluntary Aided School | Good | 1.27 KM |
| The Grange School | Academy Sponsor Led | 1.34 KM | |
| St Clement'S Catholic Primary School | Voluntary Aided School | Good | 1.53 KM |
Images
Nearby Streets
| Name | Average Price | Average Sqft | Distance |
|---|---|---|---|
| Fisher Street | £ 0 | 0 | 0.00 KM |
| Bridge Street | £ 0 | 0 | 0.00 KM |
| Saxon Road | £ 187,500 | 0 | 0.00 KM |
| Oates Road | £ 0 | 0 | 0.00 KM |
| St Mary's Road | £ 0 | 0 | 0.00 KM |
Nearby Transport
| Name | NLC | TLC | Distance |
|---|---|---|---|
| Runcorn | 2291 | RUN | 1.76 KM |
| Widnes | 2391 | WID | 4.13 KM |
| Frodsham | 2284 | FRD | 5.20 KM |
| Hough Green | 2303 | HGN | 6.56 KM |
| Runcorn East | 2294 | RUE | 6.64 KM |
Nearby Listings
| Address | Price | Type | Score | Distance |
|---|---|---|---|---|
| Norfolk Street, Runcorn | £ 150,000 | BUY | 7 / 10 | 0.00 KM |
| Old Quay Street, Runcorn, Cheshire, WA7 | £ 200,000 | BUY | 7 / 10 | 0.10 KM |
| Irwell Lane, Runcorn | £ 140,000 | BUY | Unknown | 0.14 KM |
| Irwell Lane, Runcorn | £ 140,000 | BUY | Unknown | 0.14 KM |
| Fisher Street, Runcorn, WA7 1DW | £ 185,000 | BUY | 6 / 10 | 0.22 KM |
Nearby Properties
| Address | Price | Distance |
|---|---|---|
| 9 Norfolk Street | £ 77,000 | 0.01 KM |
| 11 Norfolk Street | £ 110,000 | 0.01 KM |
| 7 Norfolk Street | £ 115,000 | 0.01 KM |
| 5 Norfolk Street | £ 125,000 | 0.01 KM |
| 13 Norfolk Street | £ 100,000 | 0.01 KM |