Tate & Co says ..
If you're after a show home, then this is as close as it gets.
Property Oracle says ..
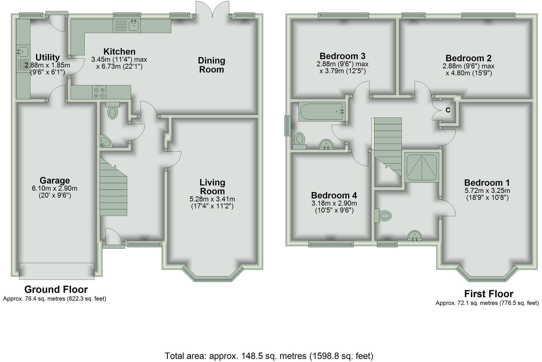
This property is a modern detached house located in Mold, Flintshire. The house is in excellent condition and appears to be newly built or recently renovated, with a modern kitchen and bathrooms. There is a garden present, and the property has four bedrooms and two bathrooms. The location is close to several schools, making it suitable for families. However, the provided data does not include the square footage of the property, which makes it difficult to assess the price per square foot and determine if the list price of £375,000 is reasonable compared to local averages. More information is needed to provide a complete analysis of value.
Therefore, we give this property 8 / 10. *Disclaimer: This is our option and does constitute a recommendation or financial advice. Do your own research. *
- Price
- 7
- Condition
- 10
- Location
- 8
- Land
- 7
- Bedrooms
- 4
- Bathrooms
- 2
The heatmap indicates the level of crime in the area. The color of the heatmap indicates the crime severity and recency.
Metrics Year-on-Year
- Average area value
- 267,500.00 £Decreased by 0.99 %
- Average area rental value
- 1,107.00 £/moDecreased by 6.11 %
- Est rental Yield
- 4.97 %Decreased by 5.15 %
- Crime Rate
- 0.00 %
Agent Activity
Tate & Co created the listing.
Nearby Schools
| Name | Type | Ofsted | Distance |
|---|---|---|---|
| Mold Alun School | Welsh Establishment | 0.71 KM | |
| Ysgol Maes Garmon | Welsh Establishment | 0.81 KM | |
| Ysgol Glanrafon | Welsh Establishment | 0.89 KM | |
| Ysgol Bryn Gwalia C.P. | Welsh Establishment | 1.08 KM | |
| Ysgol Bryn Coch C.P. | Welsh Establishment | 1.24 KM |
Images
Nearby Streets
| Name | Average Price | Average Sqft | Distance |
|---|---|---|---|
| Maes Alyn | £ 370,000 | 0 | 0.00 KM |
| Maes Gwern | £ 390,000 | 0 | 0.00 KM |
| Maes Gwern | £ 150,000 | 0 | 0.00 KM |
| Mold Bypass | £ 750,000 | 0 | 0.00 KM |
| Daniel Owen Precinct | £ 132,500 | 0 | 0.00 KM |
Nearby Listings
| Address | Price | Type | Score | Distance |
|---|---|---|---|---|
| Ffordd Trebeirdd, Mold, CH7 | £ 375,000 | BUY | 8 / 10 | 0.00 KM |
| Ffordd Trebeirdd, Mold, Flintshire, CH7 | £ 350,000 | BUY | 7 / 10 | 0.07 KM |
| Ffordd Trebeirdd, Mold, Flintshire, CH7 | £ 250,000 | BUY | 7 / 10 | 0.07 KM |
| Ffordd Trebeirdd, Mold | £ 300,000 | BUY | Unknown | 0.14 KM |
| Ffordd Gwern, Mold | £ 170,000 | BUY | 6 / 10 | 0.21 KM |
Nearby Properties
| Address | Price | Distance |
|---|---|---|
| 17 The Close | £ 53,500 | 0.17 KM |
| 11 The Close | £ 149,000 | 0.21 KM |
| 2 The Close | £ 250,000 | 0.21 KM |
| 10 The Close | £ 165,000 | 0.21 KM |
| 12 Sandy Grove | £ 215,000 | 0.28 KM |