North Road, Pontywaun, Cross Keys, Newport. NP11 7FZ
By Davis & Sons
£ 210,000
Reviews
2 out of 5 stars
Davis & Sons says ..
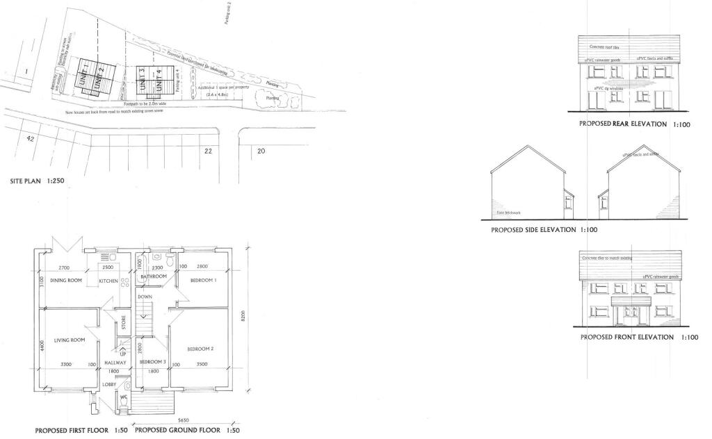
**PLANNING FOR FOUR HOUSES WITH PARKING AND GARDENS**
Property Oracle says ..
The property is a plot of land located on North Road in Crosskeys, Caerphilly. It is being marketed by Davis & Sons. The land is situated in a residential area and is close to local amenities and transport links, with Crosskeys train station being just over 1km away. However, the land is also located near a railway line, which may cause some noise disturbance. The listing price is 210,000. The property is currently just land, so the buyer will need to factor in the cost of building a house.
Therefore, we give this property 4 / 10. *Disclaimer: This is our option and does constitute a recommendation or financial advice. Do your own research. *
- Price
- 7
- Condition
- 1
- Location
- 5
- Land
- 6
- Bedrooms
- 0
- Bathrooms
- 0
The heatmap indicates the level of crime in the area. The color of the heatmap indicates the crime severity and recency.
Metrics Year-on-Year
- Average area value
- 219,115.00 £Increased by 18.08 %
- Average area rental value
- 1,500.00 £/moIncreased by 50.30 %
- Est rental Yield
- 8.21 %Increased by 27.29 %
- Crime Rate
- 29.00 %Unchanged by 0.00 %
Agent Activity
Davis & Sons created the listing.
Nearby Schools
| Name | Type | Ofsted | Distance |
|---|---|---|---|
| Cwmcarn Primary School | Welsh Establishment | 0.55 KM | |
| Waunfawr Primary School | Welsh Establishment | 1.30 KM | |
| Y.G. Cwm Gwyddon | Welsh Establishment | 2.01 KM | |
| Abercarn Primary School | Welsh Establishment | 2.78 KM | |
| Risca Primary School | Welsh Establishment | 3.59 KM |
Images
Nearby Streets
| Name | Average Price | Average Sqft | Distance |
|---|---|---|---|
| Twyncarn Road | £ 0 | 0 | 0.00 KM |
| James Ville | £ 0 | 0 | 0.00 KM |
| Park Place | £ 250,000 | 0 | 0.00 KM |
| Hall's Road Terrace | £ 155,000 | 0 | 0.00 KM |
| Park Street | £ 168,000 | 0 | 0.00 KM |
Nearby Transport
| Name | NLC | TLC | Distance |
|---|---|---|---|
| Crosskeys | 9902 | CKY | 1.11 KM |
| Newbridge | 9919 | NBE | 4.29 KM |
| Risca And Pontymister | 9920 | RCA | 4.68 KM |
| Rogerstone | 9921 | ROR | 7.68 KM |
| Llanhilleth | 9916 | LTH | 7.78 KM |
Nearby Listings
| Address | Price | Type | Score | Distance |
|---|---|---|---|---|
| North Road, Pontywaun, Cross Keys, Newport. NP11 7FZ | £ 210,000 | BUY | 4 / 10 | 0.00 KM |
| Coronation Place, Pontywaun, Cross Keys, NP11 | £ 149,950 | BUY | 6 / 10 | 0.13 KM |
| Cwmcarn, Newport, NP11 | £ 125,000 | BUY | 6 / 10 | 0.23 KM |
| Hilary Rise, NP11 7GL | £ 475,000 | BUY | Unknown | 0.24 KM |
| The Mews, Cwmcarn, NEWPORT | £ 100,000 | BUY | 5 / 10 | 0.27 KM |
Nearby Properties
| Address | Price | Distance |
|---|---|---|
| 76 North Road | £ 52,000 | 0.01 KM |
| 100 North Road | £ 80,000 | 0.01 KM |
| 9 North Road | £ 111,500 | 0.01 KM |
| 46 North Road | £ 93,000 | 0.01 KM |
| 52 North Road | £ 120,000 | 0.01 KM |