Lewes Road, Eastbourne
By Town Property/Town Flats/Town Rentals
£ 299,950
Reviews
3 out of 5 stars
Town Property/Town Flats/Town Rentals says ..
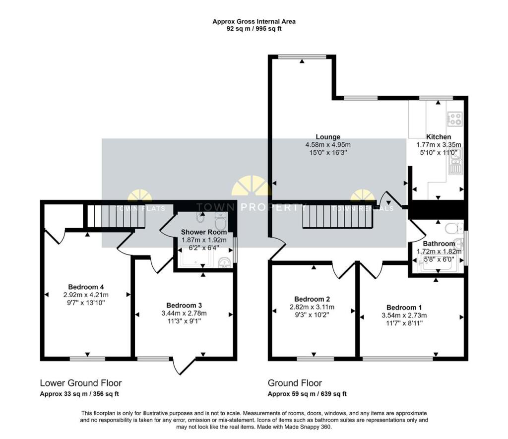
An incredibly unique 4 bedroom purpose built apartment that provides spacious and versatile accommodation arranged over 2 floors. Situated in Upperton the flat has a ground floor lounge/dining room with open plan fitted kitchen, 2 double bedrooms and a spacious bathroom/WC. Stairs lead down to 2...
Property Oracle says ..
This four-bedroom flat is situated on Lewes Road in Eastbourne, East Sussex. The property benefits from being close to local amenities and transport links, with Eastbourne train station less than a kilometre away. Several well-regarded schools are also within a reasonable distance. The flat itself appears to be in good condition, although the images suggest it may benefit from some modernisation. The property includes a communal garden and access to a garage. While the list price is slightly above the average price per square foot for the area, the additional bedrooms and the inclusion of a garage may justify the higher price. However, a direct comparison is difficult due to a lack of square footage data for nearby properties.
Therefore, we give this property 7 / 10. *Disclaimer: This is our option and does constitute a recommendation or financial advice. Do your own research. *
- Price
- 7
- Condition
- 7
- Location
- 8
- Land
- 6
- Bedrooms
- 4
- Bathrooms
- 2
- Sqft (est)
- 990.28
The heatmap indicates the level of crime in the area. The color of the heatmap indicates the crime severity and recency.
Metrics Year-on-Year
- Average area value
- 245,817.00 £Decreased by 32.98 %
- Est sale value
- 348,578.56 £Increased by 2.03 %
- Average area rental value
- 1,151.00 £/moIncreased by 2.22 %
- Est letting value
- 990.28 £/moUnchanged by 0.00 %
- Est rental Yield
- 5.62 %Increased by 52.72 %
- Crime Rate
- 2.00 %Unchanged by 0.00 %
Agent Activity
Town Property/Town Flats/Town Rentals created the listing.
Nearby Schools
| Name | Type | Ofsted | Distance |
|---|---|---|---|
| St Thomas A Becket Catholic Primary School | Voluntary Aided School | Good | 0.25 KM |
| Stafford Junior School | Academy Sponsor Led | 0.90 KM | |
| Anderida Learning Centre | Other Independent Special School | Good | 1.18 KM |
| Bourne Primary School | Community School | Good | 1.32 KM |
| Roselands Infants' School | Academy Converter | 1.50 KM |
Images
Nearby Streets
| Name | Average Price | Average Sqft | Distance |
|---|---|---|---|
| Whitley Road | £ 270,000 | 0 | 0.00 KM |
| Upper Avenue Roundabout | £ 0 | 0 | 0.00 KM |
| Saint Anne's Road | £ 313,833 | 0 | 0.00 KM |
| Ivy Lane | £ 162,500 | 0 | 0.00 KM |
| Abbotts Close | £ 250,000 | 0 | 0.00 KM |
Nearby Transport
| Name | NLC | TLC | Distance |
|---|---|---|---|
| Eastbourne | 5448 | EBN | 0.89 KM |
| Hampden Park (Sussex) | 5450 | HMD | 2.13 KM |
| Polegate | 5455 | PLG | 6.30 KM |
| Pevensey And Westham | 5461 | PEV | 6.45 KM |
| Pevensey Bay | 5462 | PEB | 8.16 KM |
Nearby Listings
| Address | Price | Type | Score | Distance |
|---|---|---|---|---|
| Lewes Road, Eastbourne | £ 299,950 | BUY | 7 / 10 | 0.00 KM |
| Lewes Road, Eastbourne | £ 189,950 | BUY | 5 / 10 | 0.00 KM |
| Lewes Road, Eastbourne | £ 170,000 | BUY | 5 / 10 | 0.00 KM |
| Lewes Road, Upperton | £ 280,000 | BUY | 6 / 10 | 0.02 KM |
| Lewes Road, Upperton | £ 285,000 | BUY | 7 / 10 | 0.02 KM |
Nearby Properties
| Address | Price | Distance |
|---|---|---|
| 8 Lewes Road | £ 765,000 | 0.06 KM |
| 95 Enys Road | £ 406,000 | 0.15 KM |
| 46 Enys Road | £ 170,000 | 0.15 KM |
| 97 Enys Road | £ 580,000 | 0.15 KM |
| 2a Lewes Road | £ 250,000 | 0.17 KM |