Greenside, Pudsey, West Yorkshire
By Manning Stainton
£ 150,000
Reviews
3 out of 5 stars
Manning Stainton says ..
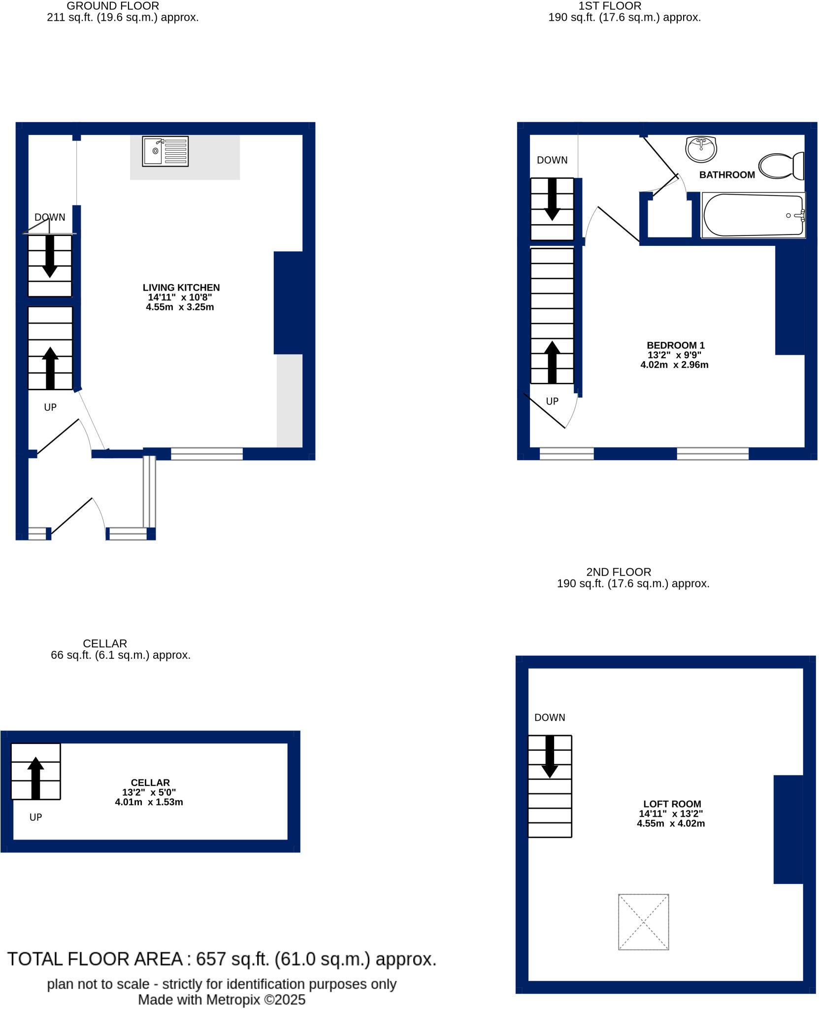
Situated in a sought after Pudsey location, this character stone built semi detached home boasts a wealth of potential and period charm and and is a superb opportunity for those looking to make a home their own! Priced to reflect the work required, with accommodation arranged over three floors t...
Property Oracle says ..
The property is a semi-detached house located in Pudsey, West Yorkshire. It has one bedroom and one bathroom. The property is in need of renovation, but it has a good-sized garden and a driveway. The property is located close to local amenities, schools, and transportation links. The list price is below the average price for the area, but the condition of the property may deter some buyers.
Therefore, we give this property 6 / 10. *Disclaimer: This is our option and does constitute a recommendation or financial advice. Do your own research. *
- Price
- 7
- Condition
- 4
- Location
- 7
- Land
- 6
- Bedrooms
- 1
- Bathrooms
- 1
- Sqft (est)
- 677.05
The heatmap indicates the level of crime in the area. The color of the heatmap indicates the crime severity and recency.
Metrics Year-on-Year
- Average area value
- 303,941.00 £Increased by 18.76 %
- Est sale value
- 259,310.15 £Increased by 82.38 %
- Average area rental value
- 896.00 £/moDecreased by 14.42 %
- Est letting value
- 677.05 £/mo
- Est rental Yield
- 3.54 %Decreased by 27.90 %
- Crime Rate
- 6.00 %Unchanged by 0.00 %
Agent Activity
Manning Stainton created the listing.
Nearby Schools
| Name | Type | Ofsted | Distance |
|---|---|---|---|
| Greenside Primary School | Community School | Good | 0.39 KM |
| Pudsey Waterloo Primary | Academy Converter | 0.85 KM | |
| Southroyd Primary And Nursery School | Foundation School | Good | 0.90 KM |
| Pudsey Children'S Centre | Children's Centre | 0.96 KM | |
| Fulneck School | Other Independent School | 1.12 KM |
Images
Nearby Streets
| Name | Average Price | Average Sqft | Distance |
|---|---|---|---|
| Smalewell Close | £ 515,000 | 0 | 0.00 KM |
| Carlisle Drive | £ 0 | 0 | 0.00 KM |
| Grove Avenue | £ 0 | 0 | 0.00 KM |
| The Grove | £ 0 | 0 | 0.00 KM |
| Ash Grove | £ 0 | 0 | 0.00 KM |
Nearby Transport
| Name | NLC | TLC | Distance |
|---|---|---|---|
| New Pudsey | 8506 | NPD | 1.91 KM |
| Bramley (West Yorkshire) | 8496 | BLE | 4.10 KM |
| Kirkstall Forge | 6544 | KLF | 6.53 KM |
| Apperley Bridge | 8562 | APY | 6.89 KM |
| Horsforth | 8499 | HRS | 7.82 KM |
Nearby Listings
| Address | Price | Type | Score | Distance |
|---|---|---|---|---|
| Greenside, Pudsey, West Yorkshire | £ 150,000 | BUY | 6 / 10 | 0.00 KM |
| Greenside, Pudsey, West Yorkshire | £ 415,000 | BUY | 6 / 10 | 0.05 KM |
| Armitage Square, Pudsey, West Yorkshire | £ 210,000 | BUY | 6 / 10 | 0.07 KM |
| Greenside, Pudsey | £ 180,000 | BUY | Unknown | 0.07 KM |
| Station Street, Pudsey, West Yorkshire, LS28 | £ 240,000 | BUY | 5 / 10 | 0.10 KM |
Nearby Properties
| Address | Price | Distance |
|---|---|---|
| 6 Armitage Square | £ 165,000 | 0.06 KM |
| 8 Armitage Square | £ 205,000 | 0.06 KM |
| 4 Armitage Square | £ 190,000 | 0.06 KM |
| 53 Greenside | £ 97,500 | 0.07 KM |
| 68 Greenside | £ 160,000 | 0.07 KM |