Winkworth says ..
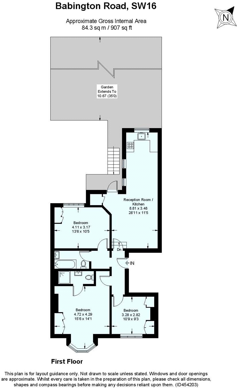
The accommodation briefly comprises of a bright and welcoming open-plan kitchen/reception room with wooden floors opens onto three good-sized double bedrooms and a large modern white bathroom. The principal bedroom has an en-suite shower room as well as an attractive bay window to the front. Neut...
Property Oracle says ..
Therefore, we give this property 7 / 10. *Disclaimer: This is our option and does constitute a recommendation or financial advice. Do your own research. *
- Price
- 6
- Condition
- 8
- Location
- 7
- Land
- 7
- Bedrooms
- 3
- Bathrooms
- 2
- Sqft (est)
- 787.81
The heatmap indicates the level of crime in the area. The color of the heatmap indicates the crime severity and recency.
Metrics Year-on-Year
- Average area value
- 487,285.00 £Decreased by 7.65 %
- Est sale value
- 400,995.29 £Increased by 21.19 %
- Average area rental value
- 1,920.00 £/moIncreased by 13.27 %
- Est letting value
- 1,575.62 £/moIncreased by 100.00 %
- Est rental Yield
- 4.73 %Increased by 22.86 %
- Crime Rate
- 3.00 %Unchanged by 0.00 %
from 527,656.00 £
from 330,880.20 £
from 1,695.00 £/mo
from 787.81 £/mo
from 3.85 %
from 3.00 %
Agent Activity
Winkworth created the listing.
Nearby Schools
| Name | Type | Ofsted | Distance |
|---|---|---|---|
| St Leonard'S Church Of England Primary School | Academy Converter | 0.17 KM | |
| Streatham Hub Children'S Centre | Children's Centre | 0.41 KM | |
| Fayland Children'S Centre | Children's Centre | 0.84 KM | |
| Immanuel And St Andrew Church Of England Primary School | Voluntary Aided School | Outstanding | 0.84 KM |
| Goldfinch Primary School | Academy Sponsor Led | 0.90 KM |
Images
Nearby Streets
| Name | Average Price | Average Sqft | Distance |
|---|---|---|---|
| Tooting Bec Road | £ 400,000 | 0 | 0.00 KM |
| Barrow Road | £ 0 | 0 | 0.00 KM |
| Tooting Bec Road | £ 371,429 | 0 | 0.00 KM |
| Sunnyhill Road | £ 325,000 | 0 | 0.00 KM |
| Bedford Hill | £ 1,600,000 | 0 | 0.00 KM |
Nearby Transport
| Name | NLC | TLC | Distance |
|---|---|---|---|
| Streatham | 5383 | STE | 0.30 KM |
| Streatham Common | 5384 | SRC | 0.88 KM |
| Streatham Hill | 5435 | SRH | 1.52 KM |
| Norbury | 5428 | NRB | 2.15 KM |
| Balham | 5399 | BAL | 2.75 KM |
Nearby Listings
| Address | Price | Type | Score | Distance |
|---|---|---|---|---|
| Babington Road, London, SW16 | £ 525,000 | BUY | 7 / 10 | 0.00 KM |
| Babington Road, London, SW16 | £ 380,000 | BUY | 6 / 10 | 0.02 KM |
| Babington Road, Streatham | £ 475,000 | BUY | Unknown | 0.02 KM |
| Babington Road, Streatham | £ 350,000 | BUY | 5 / 10 | 0.04 KM |
| Babington Road, Streatham | £ 475,000 | BUY | 6 / 10 | 0.05 KM |
Nearby Properties
| Address | Price | Distance |
|---|---|---|
| 103 Babington Road | £ 76,000 | 0.06 KM |
| 81c Babington Road | £ 335,000 | 0.06 KM |
| 81b Babington Road | £ 119,000 | 0.06 KM |
| 107 Babington Road | £ 202,000 | 0.06 KM |
| 73c Babington Road | £ 110,000 | 0.06 KM |