eXp UK says ..
Reference = JL1205
Property Oracle says ..
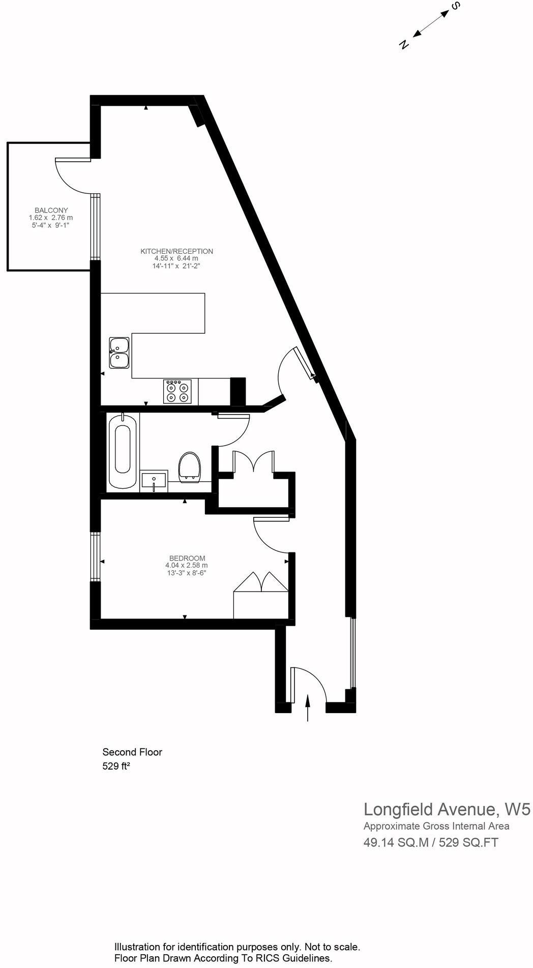
The property is a 1-bedroom, 1-bathroom apartment located in Ealing Broadway, London, with a list price of £485,000. The apartment is 445.13 sqft and situated on a 529 sqft plot.
The location is excellent, being in Ealing Broadway which benefits from great transport links via Ealing Broadway station (TfL Rail) and is within easy reach of other stations including West Ealing and Drayton Green. The area also boasts several highly-rated schools such as Christ The Saviour Church of England Primary School, making it attractive to families. The presence of shops and amenities in Dickens Yard further enhances its desirability.
Based on the provided images, the apartment appears to be in excellent condition. It features a modern, well-maintained kitchen and bathroom, and the living space is presented in a clean and contemporary style. There is no visible evidence of wear and tear or the need for renovation.
While a plot size is given, it’s not clear from the information whether this constitutes a garden or simply the area occupied by the building itself. Further clarification would be needed to assess the land aspect accurately.
Considering the average price per sqft in the area is £879, and the apartment is listed at £485,000, the price seems reasonable. However, the average price for properties in the area is significantly higher at £778,124, suggesting that the property may be undervalued. This could be due to the smaller size of the apartment compared to the average property in the area, or other factors not detailed in the provided information. Further analysis of comparable properties would be needed to confirm this.
The property benefits from being in a well-connected and desirable location, with excellent transport links and nearby schools. The apartment itself appears to be modern and well-maintained. While the price might seem reasonable in isolation, the significantly higher average price in the area warrants further investigation to determine if it represents good value for money. The lack of information regarding outdoor space prevents a full assessment of the land aspect.
Therefore, we give this property 9 / 10. *Disclaimer: This is our option and does constitute a recommendation or financial advice. Do your own research. *
- Price
- 7
- Condition
- 10
- Location
- 10
- Land
- 0
- Bedrooms
- 1
- Bathrooms
- 1
- Sqft (est)
- 445.13
- Lot (est)
- 529.00
The heatmap indicates the level of crime in the area. The color of the heatmap indicates the crime severity and recency.
Metrics Year-on-Year
- Average area value
- 677,500.00 £Decreased by 34.26 %
- Est sale value
- 542,168.34 £Increased by 51.87 %
- Average area rental value
- 2,388.00 £/moIncreased by 11.33 %
- Est letting value
- 1,780.52 £/moIncreased by 300.00 %
- Est rental Yield
- 4.23 %Increased by 69.20 %
- Crime Rate
- 13.00 %Unchanged by 0.00 %
Agent Activity
eXp UK created the listing.
Nearby Schools
| Name | Type | Ofsted | Distance |
|---|---|---|---|
| Ealing Independent College | Other Independent School | 0.19 KM | |
| Clifton Lodge School | Other Independent School | 0.24 KM | |
| Christ The Saviour Church Of England Primary School | Voluntary Aided School | Outstanding | 0.28 KM |
| Harvington Prep School | Other Independent School | 0.34 KM | |
| Durston House School | Other Independent School | 0.37 KM |
Images
Nearby Streets
| Name | Average Price | Average Sqft | Distance |
|---|---|---|---|
| Victoria Lane | £ 0 | 0 | 0.00 KM |
| Vernon Court Private Parking | £ 183,500 | 0 | 0.00 KM |
| Longfield Walk | £ 575,000 | 0 | 0.00 KM |
| Springbridge Road | £ 0 | 0 | 0.00 KM |
| High Street | £ 0 | 0 | 0.00 KM |
Nearby Transport
| Name | NLC | TLC | Distance |
|---|---|---|---|
| Ealing Broadway | 3190 | EAL | 0.69 KM |
| West Ealing | 3188 | WEA | 1.36 KM |
| Drayton Green | 3099 | DRG | 2.49 KM |
| Castle Bar Park | 3098 | CBP | 2.81 KM |
| Brentford | 5552 | BFD | 2.92 KM |
Nearby Listings
| Address | Price | Type | Score | Distance |
|---|---|---|---|---|
| Longfield Avenue, London, W5 2QY | £ 485,000 | BUY | 9 / 10 | 0.00 KM |
| Dickens Yard, Ealing, W5 | £ 500,000 | BUY | 6 / 10 | 0.01 KM |
| Longfield Avenue, Ealing Broadway, London, W5 | £ 750,000 | BUY | 7 / 10 | 0.02 KM |
| Longfield Avenue, LONDON | £ 750,000 | BUY | 7 / 10 | 0.02 KM |
| Longfield Avenue, Ealing Broadway, London, W5 | £ 775,000 | BUY | 7 / 10 | 0.02 KM |
Nearby Properties
| Address | Price | Distance |
|---|---|---|
| 10 Gordon Road | £ 249,999 | 0.15 KM |
| 25a Gordon Road | £ 117,000 | 0.15 KM |
| 8 Gordon Road | £ 1,364,200 | 0.15 KM |
| 7 Gordon Road | £ 840,000 | 0.15 KM |
| 9 Gordon Road | £ 1,850,000 | 0.15 KM |