eXp UK says ..
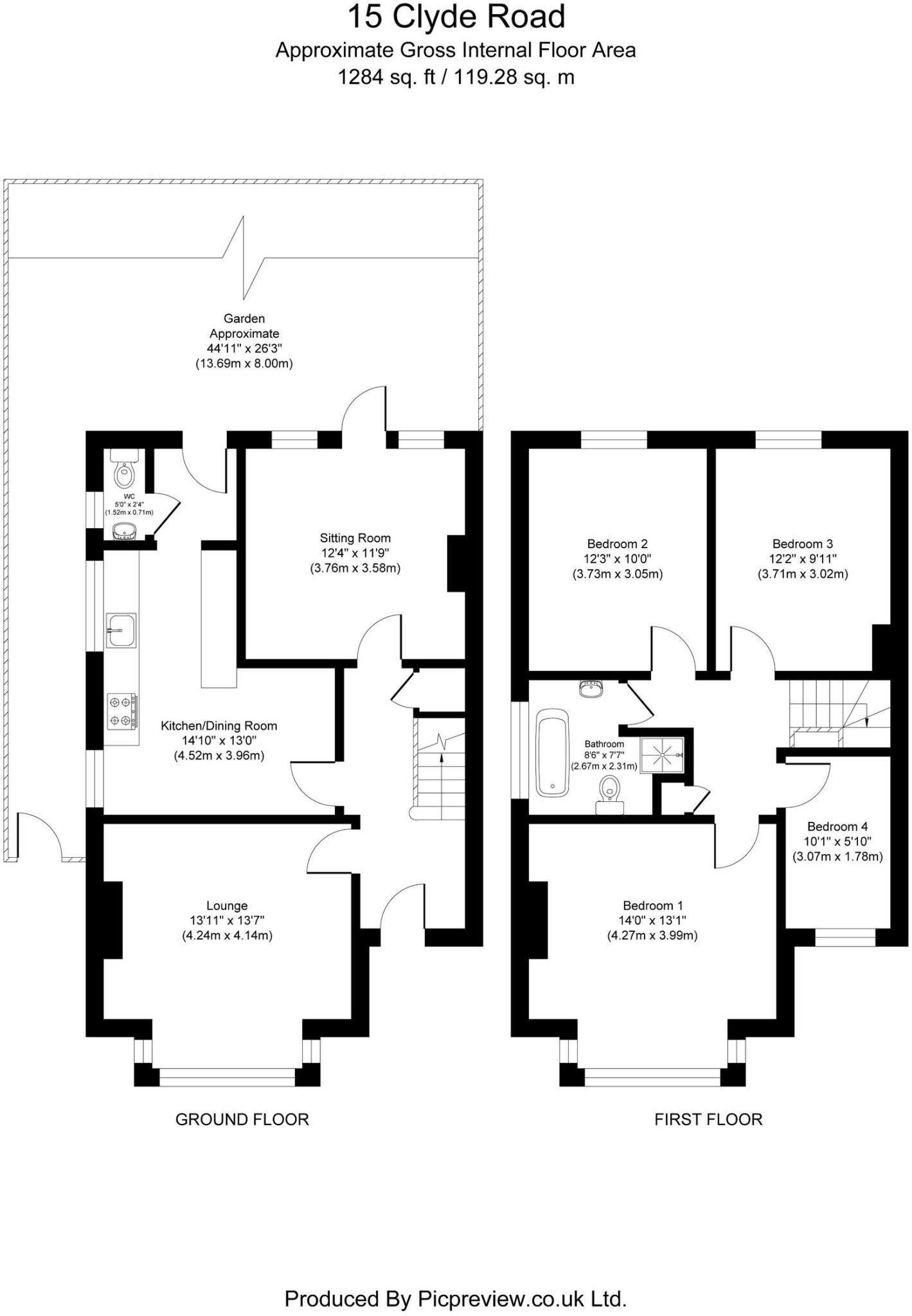
A beautifully preserved four-bedroom Edwardian home filled with period charm and character. From the stained glass entrance to the ornate coving and roll-top bath, this property blends timeless style with practical family living. Highlights include a front-facing lounge, separate dining room, ...
Property Oracle says ..
This property is a 4-bedroom semi-detached house located in Wallington, Surrey. The house is in good condition and has a traditional style with some modern updates. It benefits from a good-sized garden. The location is convenient, with nearby schools and transportation links. However, the list price is higher than the average price per square foot for the area, which may be a factor to consider.
Therefore, we give this property 7 / 10. *Disclaimer: This is our option and does constitute a recommendation or financial advice. Do your own research. *
- Price
- 6
- Condition
- 8
- Location
- 8
- Land
- 7
- Bedrooms
- 4
- Bathrooms
- 1
- Sqft (est)
- 4,330.00
- Lot (est)
- 1,284.00
The heatmap indicates the level of crime in the area. The color of the heatmap indicates the crime severity and recency.
Metrics Year-on-Year
- Average area value
- 390,889.00 £Decreased by 11.83 %
- Est sale value
- 913,630.00 £Decreased by 58.30 %
- Average area rental value
- 1,585.00 £/moIncreased by 1.41 %
- Est letting value
- 0.00 £/moDecreased by 100.00 %
- Est rental Yield
- 4.87 %Increased by 15.13 %
- Crime Rate
- 13.00 %Unchanged by 0.00 %
Agent Activity
eXp UK created the listing.
Nearby Schools
| Name | Type | Ofsted | Distance |
|---|---|---|---|
| Bandon Hill Primary School | Academy Converter | 0.76 KM | |
| Collingwood School | Other Independent School | 0.83 KM | |
| Holy Trinity Cofe Junior School | Voluntary Aided School | Good | 0.88 KM |
| Beddington Infants' School | Foundation School | Good | 0.98 KM |
| Wallington County Grammar School | Academy Converter | Outstanding | 1.11 KM |
Images
Nearby Streets
| Name | Average Price | Average Sqft | Distance |
|---|---|---|---|
| Leigham Court | £ 0 | 0 | 0.00 KM |
| Spring Gardens | £ 0 | 0 | 0.00 KM |
| Mulberry Mews | £ 394,500 | 0 | 0.00 KM |
| Robin Court | £ 0 | 0 | 0.00 KM |
| Wallington Square | £ 0 | 0 | 0.00 KM |
Nearby Transport
| Name | NLC | TLC | Distance |
|---|---|---|---|
| Wallington | 5394 | WLT | 0.64 KM |
| Hackbridge | 5364 | HCB | 2.22 KM |
| Carshalton | 5405 | CSH | 2.54 KM |
| Carshalton Beeches | 5406 | CSB | 2.75 KM |
| Waddon | 5392 | WDO | 3.18 KM |
Nearby Listings
| Address | Price | Type | Score | Distance |
|---|---|---|---|---|
| Wallington, Surrey | £ 650,000 | BUY | 7 / 10 | 0.00 KM |
| Clyde Road, Wallington, Surrey, SM6 | £ 625,000 | BUY | Unknown | 0.01 KM |
| Leigham Court, Clyde Road, Wallington | £ 220,000 | BUY | 5 / 10 | 0.05 KM |
| Clyde Road, Wallington | £ 675,000 | BUY | 5 / 10 | 0.06 KM |
| Clyde Road, Wallington | £ 275,000 | BUY | 6 / 10 | 0.06 KM |
Nearby Properties
| Address | Price | Distance |
|---|---|---|
| 21d Clyde Road | £ 300,000 | 0.01 KM |
| 11 Clyde Road | £ 320,000 | 0.01 KM |
| 5 Clyde Road | £ 525,000 | 0.01 KM |
| 21 Clyde Road | £ 379,950 | 0.01 KM |
| 31 Clyde Road | £ 321,000 | 0.01 KM |