10 Woodend Road, Fernhill, Rutherglen , Glasgow, G73
PA

10 Woodend Road, Fernhill, Rutherglen , Glasgow, G73

By Pacitti Jones

£ 148,000

Reviews

3 out of 5 stars

Pacitti Jones says ..

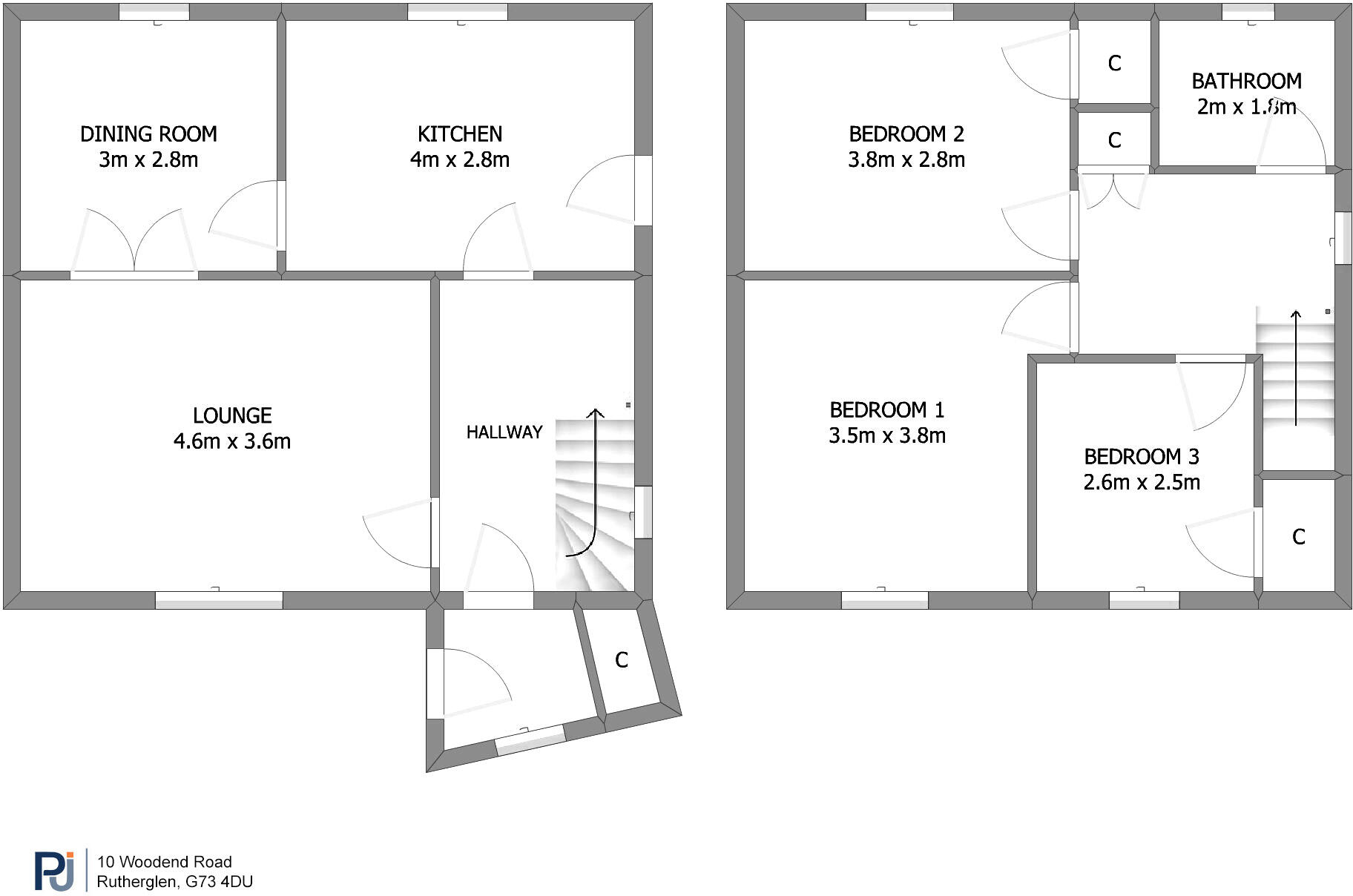
A seldom available, larger style 3-bedroom semi-detached family villa, set upon a generous south facing garden plot in a quiet, sought-after pocket of Rutherglen. EPC – F.

Property Oracle says ..

The property is a three-bedroom semi-detached house in Rutherglen, a suburb of Glasgow. It features a lounge, dining room, kitchen, and bathroom. The property has front and rear gardens, with a shed in the rear garden. While the property is in reasonable condition, it would benefit from modernisation. The location is convenient, with Burnside train station being 1.15 KM away. The price appears to represent good value for money, given the size and location of the property.

Therefore, we give this property 6 / 10. *Disclaimer: This is our option and does constitute a recommendation or financial advice. Do your own research. *

Price
7
Condition
5
Location
6
Land
7
Bedrooms
3
Bathrooms
1
Sqft (est)
755.63

The heatmap indicates the level of crime in the area. The color of the heatmap indicates the crime severity and recency.

Metrics Year-on-Year

Average area value
300,000.00 £
Decreased by 54.85 %
from 664,444.00 £
Est sale value
384,615.67 £
Increased by 92.08 %
from 200,241.95 £
Average area rental value
1,007.00 £/mo
Decreased by 25.41 %
from 1,350.00 £/mo
Est letting value
755.63 £/mo
from 0.00 £/mo
Est rental Yield
4.03 %
Increased by 65.16 %
from 2.44 %
Crime Rate
0.00 %
from 0.00 %

Agent Activity

  • Pacitti Jones created the listing.

Images

2025100413411913.jpg 2025100413422814.jpg 202510041341197.jpg 202510041341191.jpg 202510041341192.jpg 202510041341193.jpg 2025100413411911.jpg 202510041341199.jpg 2025100413411910.jpg 202510041341198.jpg 202510041341196.jpg 202510041341195.jpg 202510041341194.jpg 2025100413411912.jpg 202510041342280.jpg 2025100413422810.jpg 202510041342282.jpg 202510041342283.jpg 202510041342287.jpg 202510041342286.jpg 202510041342288.jpg 202510041342285.jpg 202510041342289.jpg 202510041342281.jpg 2025100413422811.jpg 2025100413422812.jpg 2025100413422813.jpg 202510041341190.jpg

Nearby Streets

NameAverage PriceAverage SqftDistance
Barrisdale Way £ 000.00 KM
Shieldaig Drive £ 000.00 KM
Drumilaw Way £ 000.00 KM
Kirkriggs Avenue £ 000.00 KM
Kirkriggs View £ 000.00 KM

Nearby Transport

NameNLCTLCDistance
Burnside (South Lanarkshire)9767BUI1.15 KM
Croftfoot9778CFF2.10 KM
Rutherglen9787RUT2.19 KM
Dalmarnock9790DAK3.54 KM
Kings Park9817KGP4.06 KM

Nearby Listings

AddressPriceTypeScoreDistance
10 Woodend Road, Fernhill, Rutherglen , Glasgow, G73 £ 148,000BUY6 / 100.00 KM
Kirkbean Avenue, Rutherglen, Glasgow, South Lanarkshire, G73 £ 150,000BUY7 / 100.09 KM
Woodend Road £ 59,995BUY7 / 100.24 KM
Woodend Road, Rutherglen, Glasgow £ 50,000BUY5 / 100.24 KM
Hillhead Place, Rutherglen, Glasgow £ 100,000BUY6 / 100.28 KM