Westfield Road, Birchington, CT7 9RW
By Footprints, Powered by eXp UK
£ 425,000
Reviews
3 out of 5 stars
Footprints, Powered by eXp UK says ..
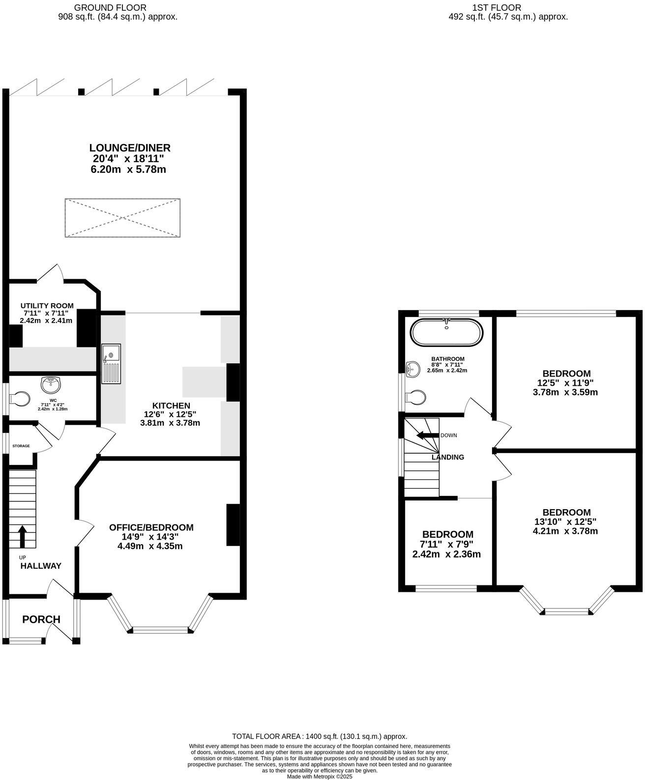
Westfield Road, Birchington — Extended 3/4 Bedroom Semi-Detached Family Home Nestled in the heart of Birchington, this beautifully extended semi-detached home offers the perfect mix of space, style, and versatility all within easy walking distance of the High Stre...
Property Oracle says ..
This is a well-presented four-bedroom semi-detached house in Birchington, Kent. The property benefits from a modern interior, a good-sized garden with outdoor entertaining space, and proximity to local amenities and transportation. The property is located on Westfield Road. The house offers ample living space and is in good decorative order, making it a potentially attractive purchase for families or those seeking a comfortable home in a convenient location.
Therefore, we give this property 7 / 10. *Disclaimer: This is our option and does constitute a recommendation or financial advice. Do your own research. *
- Price
- 7
- Condition
- 8
- Location
- 7
- Land
- 9
- Bedrooms
- 4
- Bathrooms
- 1
- Sqft (est)
- 1,400.00
The heatmap indicates the level of crime in the area. The color of the heatmap indicates the crime severity and recency.
Metrics Year-on-Year
- Average area value
- 306,658.00 £Decreased by 0.16 %
- Est sale value
- 474,600.00 £Increased by 12.62 %
- Average area rental value
- 950.00 £/moDecreased by 6.40 %
- Est letting value
- 1,400.00 £/mo
- Est rental Yield
- 3.72 %Decreased by 6.30 %
- Crime Rate
- 59.00 %Unchanged by 0.00 %
Agent Activity
Footprints, Powered by eXp UK created the listing.
Nearby Schools
| Name | Type | Ofsted | Distance |
|---|---|---|---|
| Birchington Children'S Centre | Children's Centre | 0.77 KM | |
| Birchington Church Of England Primary School | Voluntary Controlled School | Good | 0.81 KM |
| The Llewellyn School And Nursery | Other Independent Special School | Good | 1.37 KM |
| King Ethelbert School | Academy Converter | Good | 2.14 KM |
| Ursuline College | Academy Converter | Good | 2.74 KM |
Images
Nearby Streets
| Name | Average Price | Average Sqft | Distance |
|---|---|---|---|
| Westfield Road | £ 310,450 | 0 | 0.00 KM |
| Prospect Road | £ 406,650 | 0 | 0.00 KM |
| Claremont Mews | £ 0 | 0 | 0.00 KM |
| Station Approach | £ 170,000 | 0 | 0.00 KM |
| Station Approach | £ 322,500 | 0 | 0.00 KM |
Nearby Transport
| Name | NLC | TLC | Distance |
|---|---|---|---|
| Birchington-On-Sea | 5163 | BCH | 0.30 KM |
| Westgate-On-Sea | 5195 | WGA | 3.98 KM |
| Minster | 5019 | MSR | 5.37 KM |
| Margate | 5018 | MAR | 7.72 KM |
Nearby Listings
| Address | Price | Type | Score | Distance |
|---|---|---|---|---|
| Westfield Road, Birchington, CT7 9RW | £ 425,000 | BUY | 7 / 10 | 0.00 KM |
| Westfield Road, Birchington, CT7 | £ 450,000 | BUY | Unknown | 0.00 KM |
| Westfield Road, Birchington, Kent, CT7 | £ 450,000 | BUY | 8 / 10 | 0.00 KM |
| Station Road, Birchington, Kent, CT7 9RE | £ 150,000 | BUY | 5 / 10 | 0.06 KM |
| Westfield Road, Birchington, CT7 | £ 420,000 | BUY | 7 / 10 | 0.07 KM |
Nearby Properties
| Address | Price | Distance |
|---|---|---|
| 15 Westfield Road | £ 250,000 | 0.01 KM |
| 31 Westfield Road | £ 230,000 | 0.01 KM |
| 12 Westfield Road | £ 230,000 | 0.01 KM |
| 14 Westfield Road | £ 267,000 | 0.01 KM |
| 8 Westfield Road | £ 345,000 | 0.01 KM |