Blackwood Apartments, London, SE17
By Victorstone International
£ 710,000
Reviews
3 out of 5 stars
Victorstone International says ..
A Modern Two Bedroom Apartment in The Heart of Elephant and Castle.
Property Oracle says ..
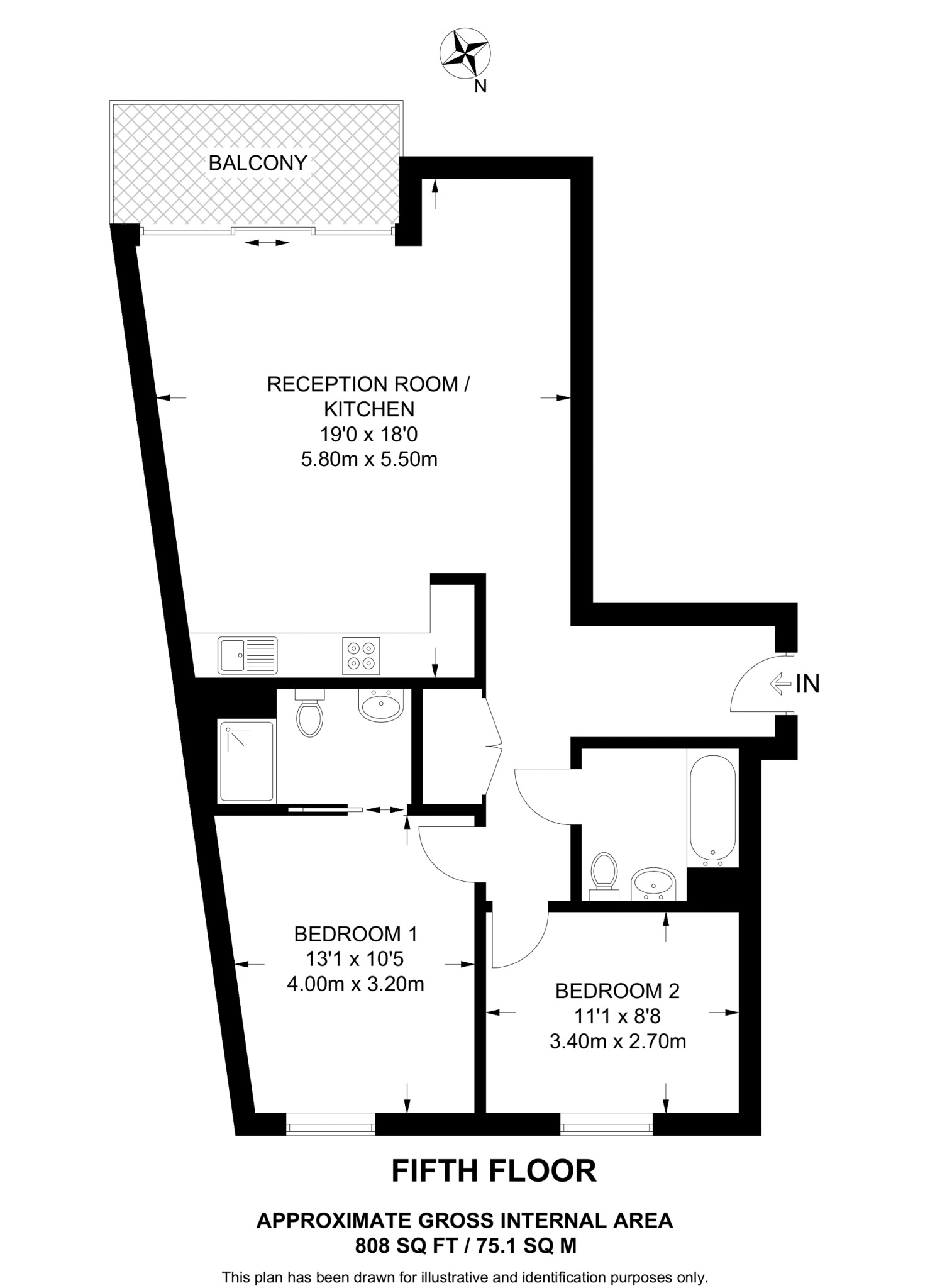
The property is a 2-bedroom, 2-bathroom apartment located in Blackwood Apartments, Victory Place, North Walworth, London, SE17 1AQ. It has a floor area of 808.37 sqft and is listed at £710,000. The average price for properties in the area is £686,899, with an average price per sqft of £906. The apartment appears to be modern and in excellent condition. The images show a contemporary design with new fixtures and fittings. There is no evidence of wear and tear or the need for renovation. The kitchen and bathrooms are modern and well-maintained. The property benefits from a balcony offering views of the surrounding area. The location is positive. The property is within close proximity to several well-regarded schools, including Victory Primary School (rated ‘Good’ by Ofsted) and Ark Globe Academy (also rated ‘Good’). Excellent transport links are also available, with Elephant and Castle station less than a kilometer away, providing access to numerous train lines. While the plot size is listed as 0.00 sqft, indicating no private garden, the balcony provides some outdoor space. The list price of £710,000 is slightly above the average price for the area (£686,899). However, considering the modern condition, the desirable location, and the relatively larger size (808.37 sqft compared to the area average of 758 sqft), the price seems reasonable. Nearby comparable properties support this assessment, with prices ranging from £560,175 to £862,500.
Therefore, we give this property 7 / 10. *Disclaimer: This is our option and does constitute a recommendation or financial advice. Do your own research. *
- Price
- 8
- Condition
- 10
- Location
- 9
- Land
- 3
- Bedrooms
- 2
- Bathrooms
- 2
- Sqft (est)
- 808.37
The heatmap indicates the level of crime in the area. The color of the heatmap indicates the crime severity and recency.
Metrics Year-on-Year
- Average area value
- 386,667.00 £Decreased by 34.47 %
- Est sale value
- 600,618.91 £Decreased by 8.50 %
- Average area rental value
- 2,374.00 £/moDecreased by 5.42 %
- Est letting value
- 3,233.48 £/moIncreased by 33.33 %
- Est rental Yield
- 7.37 %Increased by 44.51 %
- Crime Rate
- 8.00 %Unchanged by 0.00 %
Agent Activity
Victorstone International created the listing.
Nearby Schools
| Name | Type | Ofsted | Distance |
|---|---|---|---|
| Victory Primary School | Community School | Good | 0.09 KM |
| Victory Primary School And Children'S Centre | Children's Centre | 0.09 KM | |
| Ark Globe Academy | Academy Sponsor Led | Good | 0.39 KM |
| Robert Browning Primary School | Community School | Good | 0.40 KM |
| English Martyrs' Roman Catholic Primary School | Voluntary Aided School | Good | 0.55 KM |
Images
Nearby Streets
| Name | Average Price | Average Sqft | Distance |
|---|---|---|---|
| Content Street | £ 350,000 | 0 | 0.00 KM |
| Eider Way | £ 541,238 | 0 | 0.00 KM |
| Balfour Road | £ 0 | 0 | 0.00 KM |
| O'Callaghan Way | £ 900,000 | 0 | 0.00 KM |
| Townley Street | £ 0 | 0 | 0.00 KM |
Nearby Transport
| Name | NLC | TLC | Distance |
|---|---|---|---|
| Elephant And Castle | 5246 | EPH | 0.74 KM |
| London Bridge | 5148 | LBG | 1.56 KM |
| Cannon Street | 5142 | CST | 2.12 KM |
| Waterloo East | 5158 | WAE | 2.25 KM |
| Blackfriars | 5112 | BFR | 2.48 KM |
Nearby Listings
| Address | Price | Type | Score | Distance |
|---|---|---|---|---|
| Blackwood Apartments, London, SE17 | £ 710,000 | BUY | 7 / 10 | 0.00 KM |
| Victory Place, Elephant and Castle, London, SE17 | £ 700,000 | BUY | 6 / 10 | 0.01 KM |
| Victory Place, Elephant and Castle, London, SE17 | £ 850,000 | BUY | 6 / 10 | 0.02 KM |
| Victory Place, London, SE17 | £ 750,000 | BUY | 6 / 10 | 0.05 KM |
| Victory Place, London, SE17 | £ 600,000 | BUY | 6 / 10 | 0.05 KM |
Nearby Properties
| Address | Price | Distance |
|---|---|---|
| 21 Victory Place | £ 560,175 | 0.02 KM |
| 23 Victory Place | £ 572,300 | 0.02 KM |
| 15 Victory Place | £ 675,000 | 0.03 KM |
| 3 Victory Place | £ 690,000 | 0.03 KM |
| 7 Victory Place | £ 650,000 | 0.03 KM |