Clough Drive, Stretton
Abode logo

Clough Drive, Stretton

By Abode

£ 225,000

Reviews

3 out of 5 stars

Abode says ..

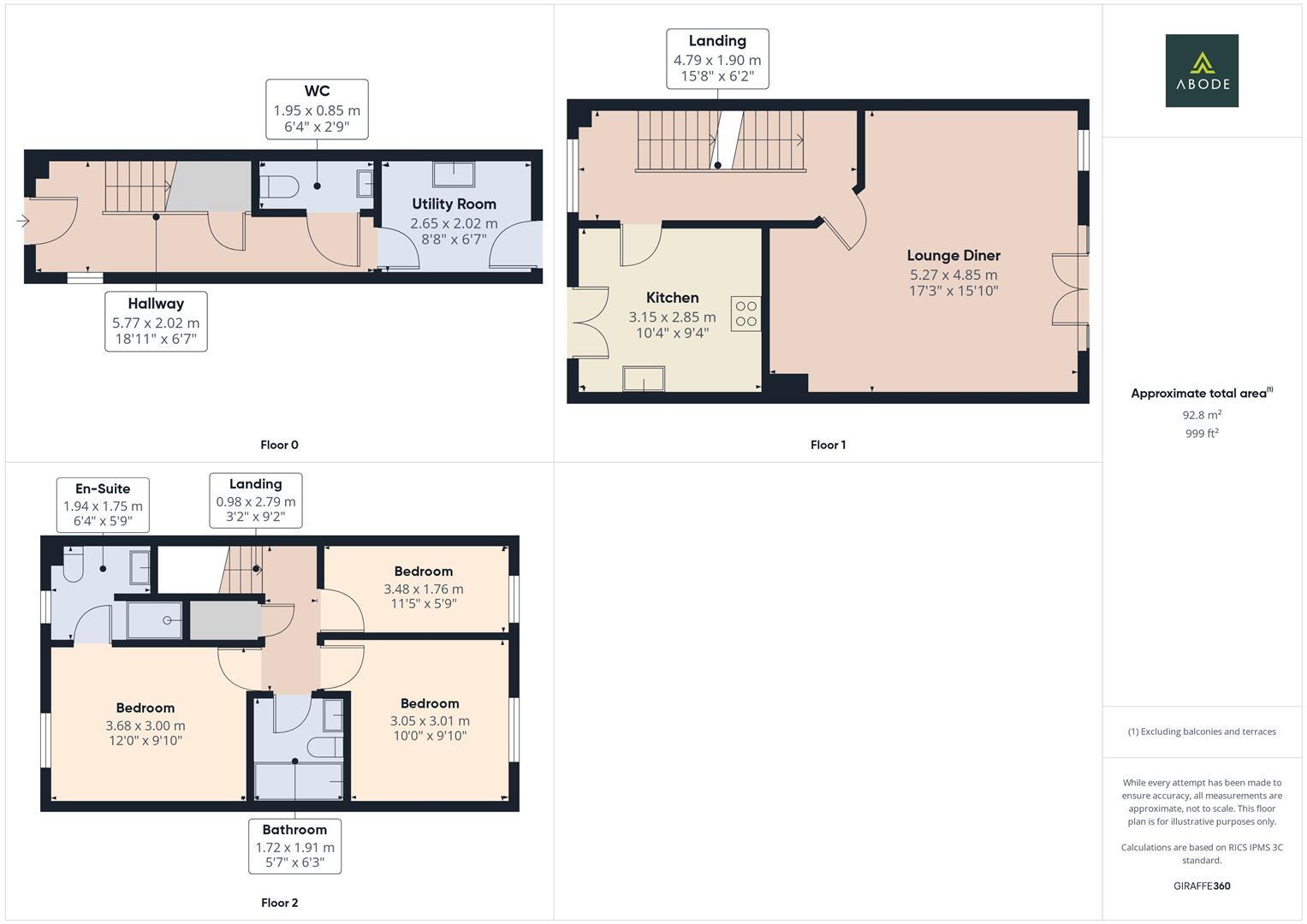
An immaculately presented three-bedroom townhouse situated within a popular development, positioned opposite open space, offering spacious and versatile accommodation across three floors. The property benefits from a stylish open-plan lounge diner, contemporary fitted kitchen with Juliet balcony,...

Property Oracle says ..

This three-bedroom terraced house in Stretton, East Staffordshire is located in a convenient location with nearby schools and transportation links. The property appears to be in excellent condition, well-maintained, and modern in style. The images show a well-presented interior with a modern kitchen and bathrooms. The inclusion of a garden is a positive feature. However, the plot size is not specified, which could impact the overall land score. Compared to the average price per square foot in the area, the list price of £225,000 seems reasonable, especially considering the property’s condition and location. However, further investigation into the exact plot size would be beneficial to fully assess the value.

Therefore, we give this property 7 / 10. *Disclaimer: This is our option and does constitute a recommendation or financial advice. Do your own research. *

Price
7
Condition
9
Location
8
Land
7
Bedrooms
3
Bathrooms
2
Sqft (est)
998.89

The heatmap indicates the level of crime in the area. The color of the heatmap indicates the crime severity and recency.

Metrics Year-on-Year

Average area value
476,875.00 £
Increased by 24.90 %
from 381,806.00 £
Est sale value
404,550.45 £
Increased by 25.39 %
from 322,641.47 £
Average area rental value
1,814.00 £/mo
Increased by 18.80 %
from 1,527.00 £/mo
Est letting value
998.89 £/mo
Unchanged by 0.00 %
from 998.89 £/mo
Est rental Yield
4.56 %
Decreased by 5.00 %
from 4.80 %
Crime Rate
10.00 %
Unchanged by 0.00 %
from 10.00 %

Agent Activity

  • Abode created the listing.

Nearby Schools

NameTypeOfstedDistance
Eton Park Junior: A De Ferrers Trust AcademyAcademy ConverterRequires improvement0.46 KM
Lansdowne: A De Ferrers Trust AcademyAcademy ConverterGood0.58 KM
Horninglow Primary: A De Ferrers Trust AcademyAcademy Sponsor LedGood1.24 KM
Holy Trinity Cofe (C) Primary SchoolVoluntary Controlled SchoolGood1.36 KM
Victoria Community SchoolCommunity SchoolGood1.44 KM

Images

CAM02696G0-PR0588-STILL027.jpg CAM02696G0-PR0588-STILL005.jpg CAM02696G0-PR0588-STILL018.jpg CAM02696G0-PR0588-STILL007.jpg CAM02696G0-PR0588-STILL012.jpg CAM02696G0-PR0588-STILL009.jpg CAM02696G0-PR0588-STILL010.jpg CAM02696G0-PR0588-STILL011.jpg CAM02696G0-PR0588-STILL001.jpg CAM02696G0-PR0588-STILL013.jpg CAM02696G0-PR0588-STILL014.jpg CAM02696G0-PR0588-STILL015.jpg CAM02696G0-PR0588-STILL002.jpg CAM02696G0-PR0588-STILL003.jpg CAM02696G0-PR0588-STILL006.jpg CAM02696G0-PR0588-STILL008.jpg CAM02696G0-PR0588-STILL016.jpg CAM02696G0-PR0588-STILL017.jpg CAM02696G0-PR0588-STILL019.jpg CAM02696G0-PR0588-STILL020.jpg CAM02696G0-PR0588-STILL021.jpg CAM02696G0-PR0588-STILL023.jpg CAM02696G0-PR0588-STILL024.jpg CAM02696G0-PR0588-STILL025.jpg

Nearby Streets

NameAverage PriceAverage SqftDistance
Chesterton Road £ 000.00 KM
Albion Terrace £ 175,00000.00 KM
Shelley Close £ 000.00 KM
Electric Street £ 000.00 KM
Beech Drive £ 339,97500.00 KM

Nearby Transport

NameNLCTLCDistance
Burton-On-Trent1658BUT2.20 KM
Tutbury And Hatton1783TUT7.45 KM
Willington1905WIL8.22 KM

Nearby Listings

AddressPriceTypeScoreDistance
Clough Drive, Stretton £ 225,000BUY7 / 100.00 KM
Clough Drive, Nr Stretton, Burton-On-Trent £ 210,000BUY6 / 100.05 KM
Clough Drive, Burton-On-Trent £ 220,000BUY7 / 100.05 KM
Clough Drive, Burton-on-Trent, DE14 £ 215,000BUY7 / 100.05 KM
Barker Round Way, Burton-On-Trent £ 220,000BUY7 / 100.06 KM

Nearby Properties

AddressPriceDistance
10 Clough Drive £ 86,5000.04 KM
3 Clough Drive £ 160,0000.04 KM
9 Clough Drive £ 159,9490.04 KM
63 Clough Drive £ 149,9500.04 KM
12 Clough Drive £ 156,0000.04 KM