Redwood Close, Gloucester, Gloucestershire
By Springbok Properties
£ 225,000
Reviews
3 out of 5 stars
Springbok Properties says ..
Situated in a convenient and residential setting, this inviting home offers a well-laid-out interior ideal for first-time buyers or those looking to invest.
Property Oracle says ..
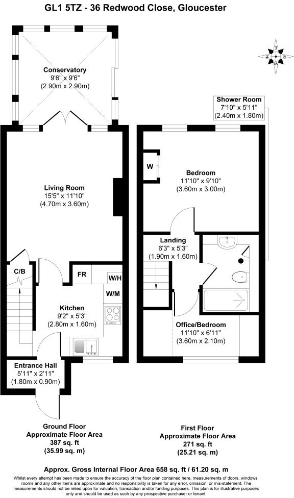
This property is a 2 bedroom semi-detached house located in Gloucester. The property benefits from a conservatory and a garage. It is located within a reasonable distance of local schools and Gloucester train station. While the property appears to be in reasonable condition, some minor cosmetic updates may enhance its overall appeal. The list price is below the average price for the area, which may be attractive to buyers seeking value for money. However, the lack of square footage information prevents a precise assessment of price per square foot.
Therefore, we give this property 7 / 10. *Disclaimer: This is our option and does constitute a recommendation or financial advice. Do your own research. *
- Price
- 8
- Condition
- 7
- Location
- 7
- Land
- 6
- Bedrooms
- 2
- Bathrooms
- 1
The heatmap indicates the level of crime in the area. The color of the heatmap indicates the crime severity and recency.
Metrics Year-on-Year
- Average area value
- 290,495.00 £Decreased by 11.63 %
- Average area rental value
- 1,124.00 £/moIncreased by 4.46 %
- Est rental Yield
- 4.64 %Increased by 18.07 %
- Crime Rate
- 2.00 %Unchanged by 0.00 %
Agent Activity
Springbok Properties created the listing.
Nearby Schools
| Name | Type | Ofsted | Distance |
|---|---|---|---|
| The Crypt School | Academy Converter | Outstanding | 0.34 KM |
| Calton Primary School | Community School | Good | 0.79 KM |
| The Lighthouse | Children's Centre | 0.80 KM | |
| Linden Primary School | Community School | Good | 0.87 KM |
| Ribston Hall High School | Academy Converter | Good | 0.88 KM |
Images
Nearby Streets
| Name | Average Price | Average Sqft | Distance |
|---|---|---|---|
| Winget Close | £ 0 | 0 | 0.00 KM |
| Raikes Road | £ 0 | 0 | 0.00 KM |
| Woodpecker Road | £ 0 | 0 | 0.00 KM |
| Keats Avenue | £ 250,000 | 0 | 0.00 KM |
| Saint Georges Close | £ 0 | 0 | 0.00 KM |
Nearby Transport
| Name | NLC | TLC | Distance |
|---|---|---|---|
| Gloucester | 4760 | GCR | 2.88 KM |
Nearby Listings
| Address | Price | Type | Score | Distance |
|---|---|---|---|---|
| Redwood Close, Gloucester, Gloucestershire | £ 225,000 | BUY | 7 / 10 | 0.00 KM |
| Redwood Close, Podsmead, Gloucester, GL1 | £ 210,000 | BUY | 6 / 10 | 0.01 KM |
| Redwood Close, Gloucester | £ 185,000 | BUY | 5 / 10 | 0.05 KM |
| Redwood Close, Gloucester | £ 229,950 | BUY | 7 / 10 | 0.11 KM |
| Laburnum Road, Gloucester | £ 265,000 | BUY | Unknown | 0.12 KM |
Nearby Properties
| Address | Price | Distance |
|---|---|---|
| 20 Laburnum Road | £ 190,000 | 0.06 KM |
| 34 Laburnum Road | £ 189,000 | 0.06 KM |
| 50 Laburnum Road | £ 235,000 | 0.06 KM |
| 10 Laburnum Road | £ 150,000 | 0.06 KM |
| 16 Laburnum Road | £ 185,000 | 0.06 KM |