Portsmouth Road, Milford, Godalming, GU8
By Burns & Webber
£ 325,000
Reviews
2 out of 5 stars
Burns & Webber says ..
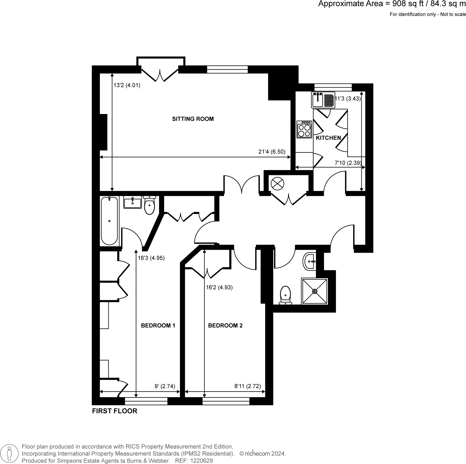
With no onward chain. this 1st floor two double bedroom apartment is ready for you to move into as soon as you can complete the formalities! Just re-carpeted throughout but still providing an opportunity to put your own stamp on your home, whilst at 908 sq ft (84.3 sq m) it offers excellent value...
Property Oracle says ..
This two-bedroom, two-bathroom flat in Milford, Godalming, is listed at £325,000. The property is located near Milford train station and several well-regarded schools, making it convenient for commuters and families. The flat boasts a spacious layout (908 sq ft) which is highlighted in the pictures provided. The interior images showcase a relatively neutral décor, but the overall condition appears somewhat dated, with certain features possibly needing modernisation or updating. The available photos include an image of a communal garden and parking area which would be a benefit to residents but these would not be private. While the list price appears relatively reasonable for the area and size, a more comprehensive comparison with similar recently sold properties would be needed to definitively assess its value. The lack of plot size information could influence this further. Overall this flat offers comfortable living space in a desirable location but potential buyers should factor in the potential for modernisation costs.
Therefore, we give this property 5 / 10. *Disclaimer: This is our option and does constitute a recommendation or financial advice. Do your own research. *
- Price
- 7
- Condition
- 6
- Location
- 7
- Land
- 2
- Bedrooms
- 2
- Bathrooms
- 2
- Sqft (est)
- 908.00
The heatmap indicates the level of crime in the area. The color of the heatmap indicates the crime severity and recency.
Metrics Year-on-Year
- Average area value
- 622,000.00 £Increased by 27.90 %
- Est sale value
- 787,236.00 £Increased by 103.52 %
- Average area rental value
- 1,467.00 £/moDecreased by 11.84 %
- Est letting value
- 1,816.00 £/moIncreased by 100.00 %
- Est rental Yield
- 2.83 %Decreased by 31.14 %
- Crime Rate
- 18.00 %Unchanged by 0.00 %
Agent Activity
Burns & Webber created the listing.
Nearby Schools
| Name | Type | Ofsted | Distance |
|---|---|---|---|
| Milford School | Foundation School | Good | 0.62 KM |
| Rodborough | Academy Converter | Good | 1.42 KM |
| St Mark And All Saints Church Of England Primary | Academy Sponsor Led | 1.45 KM | |
| The Chandler Cofe Aided Junior School | Voluntary Aided School | Good | 2.37 KM |
| St Hilary'S School | Other Independent School | 2.63 KM |
Images
Nearby Streets
| Name | Average Price | Average Sqft | Distance |
|---|---|---|---|
| Station Lane | £ 1,617,500 | 0 | 0.00 KM |
| Chapel Close | £ 0 | 0 | 0.00 KM |
| George Road | £ 595,000 | 0 | 0.00 KM |
| Eashing Lane | £ 1,250,000 | 0 | 0.00 KM |
| Manor Fields | £ 446,667 | 0 | 0.00 KM |
Nearby Transport
| Name | NLC | TLC | Distance |
|---|---|---|---|
| Milford (Surrey) | 5644 | MLF | 1.07 KM |
| Godalming | 5629 | GOD | 2.86 KM |
| Witley | 5640 | WTY | 4.40 KM |
| Farncombe | 5643 | FNC | 4.83 KM |
| Wanborough | 5639 | WAN | 8.58 KM |
Nearby Listings
| Address | Price | Type | Score | Distance |
|---|---|---|---|---|
| Portsmouth Road, Milford, Godalming, GU8 | £ 320,000 | BUY | Unknown | 0.00 KM |
| Portsmouth Road, Milford, Godalming, GU8 | £ 530,000 | BUY | Unknown | 0.00 KM |
| Milford ***No Onward Chain*** | £ 315,000 | BUY | 6 / 10 | 0.03 KM |
| Portsmouth Road, Milford, Godalming, GU8 | £ 299,950 | BUY | Unknown | 0.04 KM |
| Portsmouth Road, Milford, Godalming, Surrey, GU8 | £ 675,000 | BUY | 6 / 10 | 0.04 KM |
Nearby Properties
| Address | Price | Distance |
|---|---|---|
| 25 Meadow Close | £ 150,000 | 0.08 KM |
| 20 Meadow Close | £ 250,000 | 0.08 KM |
| 3 Meadow Close | £ 329,500 | 0.08 KM |
| 2 Meadow Close | £ 325,000 | 0.08 KM |
| 9 Meadow Close | £ 425,000 | 0.08 KM |