Carr Lane, Cleethorpes
AR

Carr Lane, Cleethorpes

By Argyle Estate Agents

£ 179,995

Reviews

3 out of 5 stars

Argyle Estate Agents says ..

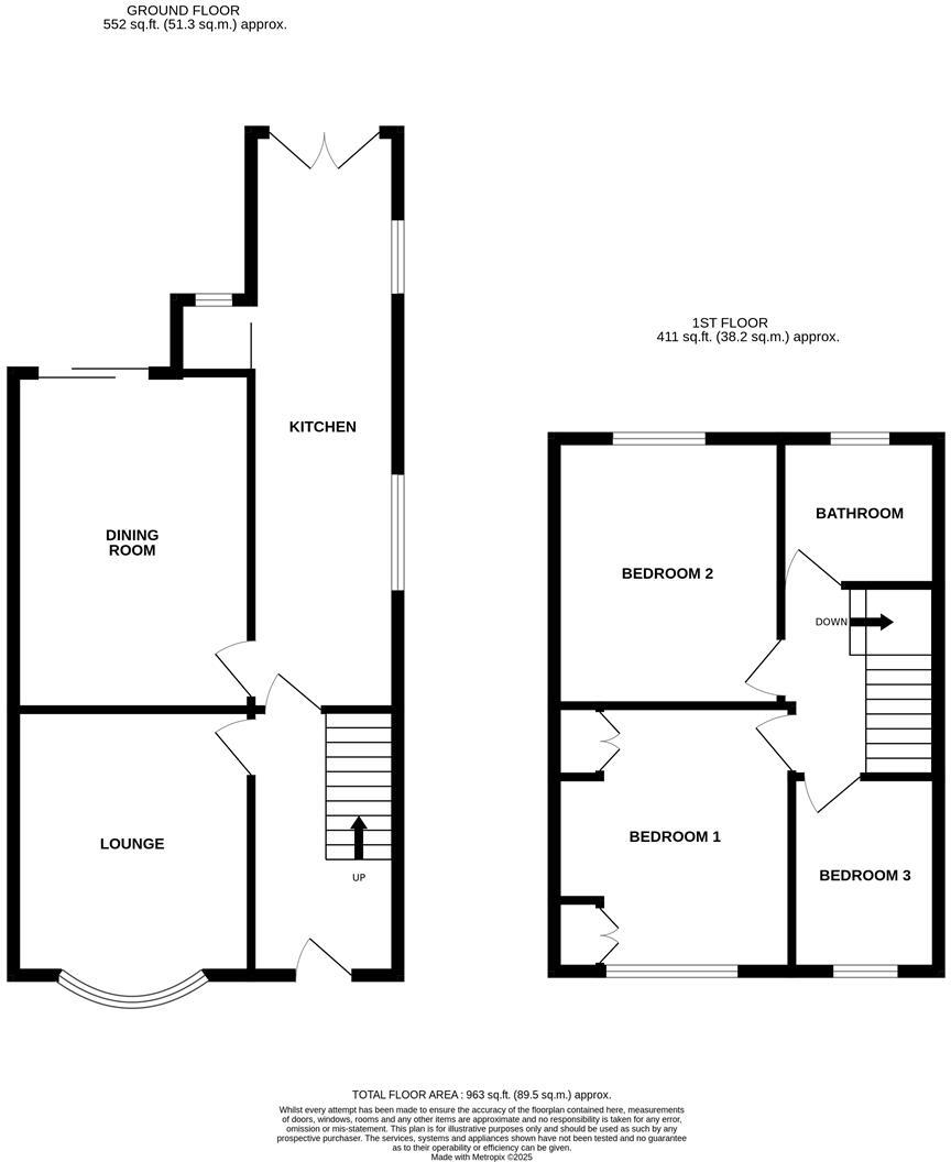
This three bedroom semi detached home is situated in a well-established residential area, close to local amenities, popular schools, and easy access to both central Grimsby and Cleethorpes. Inside, the traditional layout features two reception rooms - including a bay fronted lounge, and a sep...

Property Oracle says ..

Therefore, we give this property 7 / 10. *Disclaimer: This is our option and does constitute a recommendation or financial advice. Do your own research. *

Price
6
Condition
7
Location
7
Land
8
Bedrooms
3
Bathrooms
1
Sqft (est)
963.00

The heatmap indicates the level of crime in the area. The color of the heatmap indicates the crime severity and recency.

Metrics Year-on-Year

Average area value
81,988.00 £
Decreased by 38.90 %
from 134,180.00 £
Est sale value
87,633.00 £
Decreased by 35.46 %
from 135,783.00 £
Average area rental value
621.00 £/mo
Decreased by 2.36 %
from 636.00 £/mo
Est letting value
0.00 £/mo
from 0.00 £/mo
Est rental Yield
9.09 %
Increased by 59.75 %
from 5.69 %
Crime Rate
6.00 %
Unchanged by 0.00 %
from 6.00 %

Agent Activity

  • Argyle Estate Agents created the listing.

Nearby Schools

NameTypeOfstedDistance
Phoenix Park AcademyAcademy Alternative Provision Sponsor LedGood0.34 KM
William Barcroft Junior SchoolAcademy ConverterGood0.62 KM
Queen Mary Avenue Infant SchoolCommunity SchoolGood0.71 KM
Old Clee Primary AcademyAcademy ConverterGood0.73 KM
Old Clee OutreachChildren's Centre Linked Site0.73 KM

Images

resized_IMG_0074.jpg resized_IMG_0080.jpg resized_IMG_0047..jpg resized_IMG_0050..jpg resized_IMG_0053..jpg resized_IMG_0090..jpg resized_IMG_0096..jpg resized_IMG_0094..jpg resized_IMG_0093..jpg resized_IMG_0066..jpg resized_IMG_0068.jpg resized_IMG_0076..jpg resized_IMG_0101..jpg resized_IMG_0067..jpg resized_IMG_0075.jpg resized_IMG_0077..jpg resized_IMG_0079.jpg resized_IMG_0072..jpg resized_IMG_0071..jpg resized_IMG_0081..jpg resized_IMG_0092..jpg resized_IMG_0095..jpg resized_IMG_0097..jpg resized_IMG_0056..jpg resized_IMG_0044..jpg

Nearby Streets

NameAverage PriceAverage SqftDistance
Humberstone Road £ 000.00 KM
Montague Street £ 000.00 KM
Humberston Road £ 000.00 KM
Drake Avenue £ 000.00 KM
Frank Walsham Court £ 000.00 KM

Nearby Transport

NameNLCTLCDistance
New Clee6289NCE1.08 KM
Grimsby Docks6276GMD2.23 KM
Cleethorpes6274CLE3.17 KM
Grimsby Town6280GMB3.25 KM
Great Coates6275GCT8.11 KM

Nearby Listings

AddressPriceTypeScoreDistance
Carr Lane, Cleethorpes £ 179,995BUY7 / 100.00 KM
Queen Mary Avenue, CLEETHORPES, Lincolnshire, DN35 £ 157,000BUYUnknown0.05 KM
QUEEN MARY AVENUE, CLEETHORPES £ 195,000BUY7 / 100.06 KM
Queen Mary Avenue, Cleethorpes, Lincolnshire, DN35 £ 179,950BUY6 / 100.08 KM
Cooper Road, Grimsby, Lincolnshire, DN32 £ 80,000BUY6 / 100.10 KM

Nearby Properties

AddressPriceDistance
29 Carr Lane £ 125,9500.04 KM
39 Carr Lane £ 139,9500.04 KM
17 Carr Lane £ 185,0000.04 KM
37 Carr Lane £ 127,5000.04 KM
25 Carr Lane £ 95,0000.04 KM