CJ Hole says ..
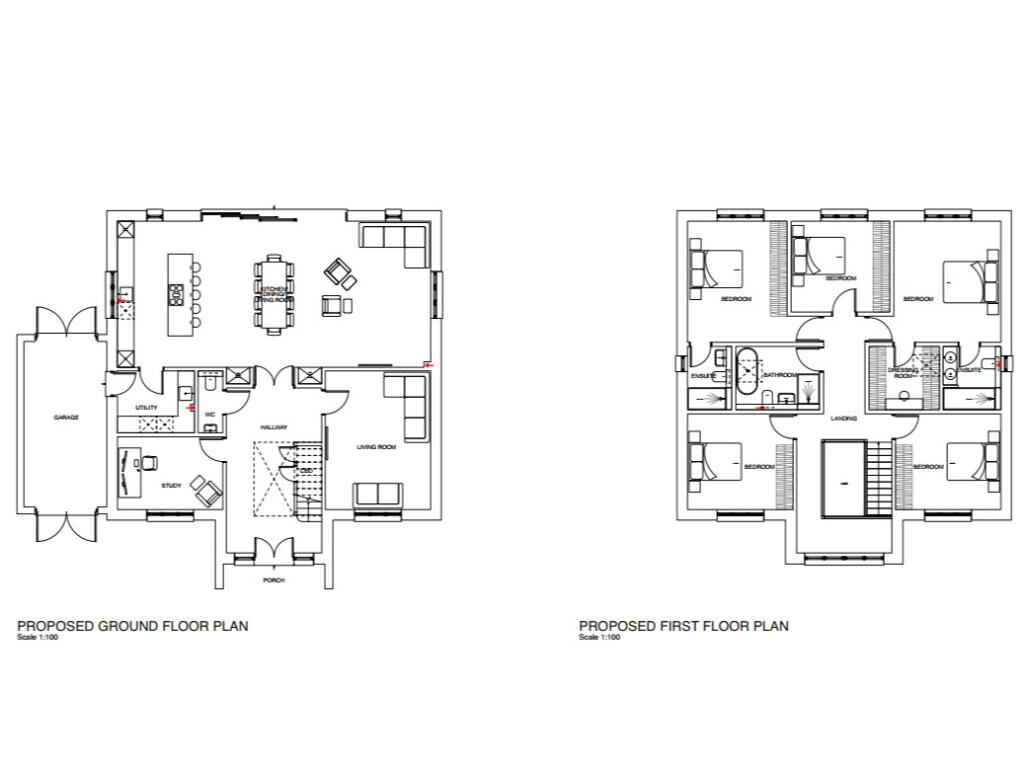
CJ Hole are delighted to offer for sale The Woodlands, presenting a rare opportunity to acquire an individual building plot set within a desirable and well-established residential location, ideal for those seeking to create a bespoke home.
Property Oracle says ..
This is a plot of land in Whitchurch with planning permission for a detached house. The location offers a blend of rural and suburban living, with convenient access to Bristol. The significant plot size allows for a spacious home and garden. The listing price appears competitive, considering the location and development potential. The plot is near schools and transportation, increasing its desirability.
Therefore, we give this property 6 / 10. *Disclaimer: This is our option and does constitute a recommendation or financial advice. Do your own research. *
- Price
- 7
- Condition
- 1
- Location
- 7
- Land
- 9
- Bedrooms
- 0
- Bathrooms
- 0
The heatmap indicates the level of crime in the area. The color of the heatmap indicates the crime severity and recency.
Metrics Year-on-Year
- Average area value
- 481,997.00 £Decreased by 10.19 %
- Average area rental value
- 1,583.00 £/moIncreased by 42.23 %
- Est rental Yield
- 3.94 %Increased by 58.23 %
- Crime Rate
- 12.00 %Unchanged by 0.00 %
Agent Activity
CJ Hole created the listing.
Nearby Schools
| Name | Type | Ofsted | Distance |
|---|---|---|---|
| Lansdown Park Academy | Academy Alternative Provision Converter | 0.66 KM | |
| Southern Links Children'S Centre | Children's Centre | 1.02 KM | |
| Waycroft Academy | Academy Converter | 1.03 KM | |
| Woodlands Academy | Academy Sponsor Led | Requires improvement | 1.04 KM |
| Whitchurch Primary School | Academy Converter | 1.07 KM |
Images
Nearby Streets
| Name | Average Price | Average Sqft | Distance |
|---|---|---|---|
| Stockwood Lane | £ 0 | 0 | 0.00 KM |
| Old Vicarage Court | £ 0 | 0 | 0.00 KM |
| Robin Close | £ 0 | 0 | 0.00 KM |
| Church Road | £ 0 | 0 | 0.00 KM |
| Townsend Close | £ 0 | 0 | 0.00 KM |
Nearby Transport
| Name | NLC | TLC | Distance |
|---|---|---|---|
| Keynsham | 3237 | KYN | 6.09 KM |
| Bristol Temple Meads | 3231 | BRI | 6.10 KM |
| Lawrence Hill | 3225 | LWH | 6.18 KM |
| Bedminster | 3245 | BMT | 6.36 KM |
| Parson Street | 3246 | PSN | 7.23 KM |
Nearby Listings
| Address | Price | Type | Score | Distance |
|---|---|---|---|---|
| The Woodlands, Whitchurch, BS14 | £ 350,000 | BUY | 6 / 10 | 0.00 KM |
| Two Elms, Staunton Lane, Bristol | £ 395,000 | BUY | 7 / 10 | 0.08 KM |
| Maes Knoll Drive, Bristol, BS14 | £ 520,000 | BUY | 7 / 10 | 0.14 KM |
| Horseshoe Close, Whitchurch, Bristol | £ 440,000 | BUY | 7 / 10 | 0.14 KM |
| Farrier Way, Whitchurch Village, Bristol | £ 335,000 | BUY | 7 / 10 | 0.23 KM |
Nearby Properties
| Address | Price | Distance |
|---|---|---|
| Strathmore | £ 287,500 | 0.07 KM |
| Kelston View | £ 430,000 | 0.07 KM |
| Rosemead | £ 589,175 | 0.07 KM |
| Greenacre | £ 481,000 | 0.14 KM |
| Mannings Mead | £ 625,000 | 0.40 KM |