Simon Blyth says ..
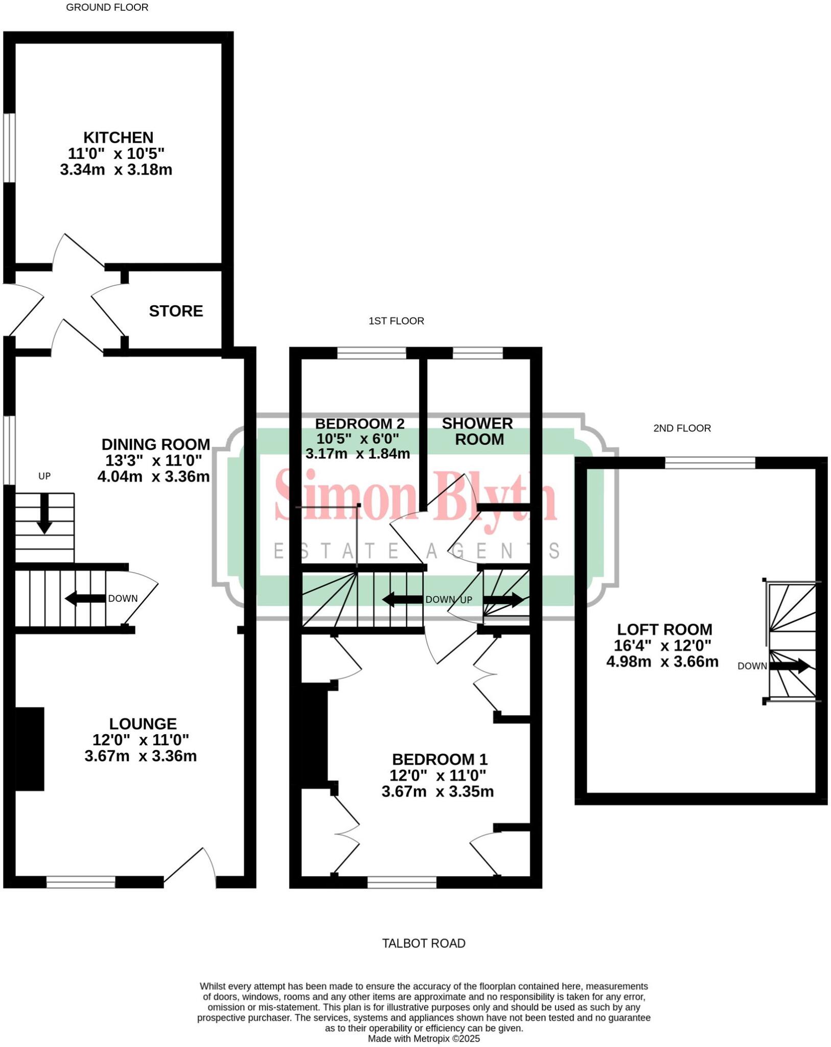
A WELL PROPORTIONED, EXTENDED STONED BUILT SEMI-DETACHED HOME ENJOYING THIS QUIET POSITION AND VIEW OVER FIELDS TO FRONT AND OFFERED TO THE MARKET WITH NO UPPER VENDOR CHAIN. THE HOME IS SITUATED CLOSE TO THE HEART OF PENISTONE AND THEREFORE WITHIN AN EASY REACH OF PENISTONE’S GRAMMAR SCHOOL, TR...
Property Oracle says ..
Therefore, we give this property 5 / 10. *Disclaimer: This is our option and does constitute a recommendation or financial advice. Do your own research. *
- Price
- 5
- Condition
- 4
- Location
- 7
- Land
- 6
- Bedrooms
- 3
- Bathrooms
- 1
- Sqft (est)
- 832.80
The heatmap indicates the level of crime in the area. The color of the heatmap indicates the crime severity and recency.
Metrics Year-on-Year
- Average area value
- 172,500.00 £Decreased by 41.14 %
- Est sale value
- 226,521.60 £Increased by 22.52 %
- Average area rental value
- 825.00 £/moDecreased by 3.73 %
- Est letting value
- 832.80 £/mo
- Est rental Yield
- 5.74 %Increased by 63.53 %
- Crime Rate
- 1.00 %Unchanged by 0.00 %
from 293,060.00 £
from 184,881.60 £
from 857.00 £/mo
from 0.00 £/mo
from 3.51 %
from 1.00 %
Agent Activity
Simon Blyth created the listing.
Nearby Schools
| Name | Type | Ofsted | Distance |
|---|---|---|---|
| Penistone Grammar School | Community School | Good | 0.64 KM |
| Penistone St John'S Voluntary Aided Primary School | Voluntary Aided School | Outstanding | 0.67 KM |
| Thurlstone Primary School | Community School | Outstanding | 1.75 KM |
| Springvale Primary School | Community School | Good | 2.40 KM |
| Hoylandswaine Primary School | Community School | Good | 3.48 KM |
Images
Nearby Streets
| Name | Average Price | Average Sqft | Distance |
|---|---|---|---|
| Garside's Buildings | £ 150,000 | 0 | 0.00 KM |
| Bent Street | £ 0 | 0 | 0.00 KM |
| Park Avenue | £ 235,000 | 0 | 0.00 KM |
| Wordsworth Court | £ 750,000 | 0 | 0.00 KM |
| Weir Field House | £ 162,483 | 0 | 0.00 KM |
Nearby Transport
| Name | NLC | TLC | Distance |
|---|---|---|---|
| Penistone | 6634 | PNS | 1.42 KM |
| Denby Dale | 8432 | DBD | 5.88 KM |
| Silkstone Common | 6782 | SLK | 8.00 KM |
Nearby Listings
| Address | Price | Type | Score | Distance |
|---|---|---|---|---|
| Talbot Road, Penistone, S36 | £ 220,000 | BUY | 5 / 10 | 0.00 KM |
| Northway, Talbot Road, Penistone | £ 360,000 | BUY | 6 / 10 | 0.15 KM |
| Thurlstone Road, Penistone, S36 9EF | £ 275,000 | BUY | 7 / 10 | 0.23 KM |
| Stottercliffe Road, Penistone, S36 | £ 160,000 | BUY | 7 / 10 | 0.32 KM |
| Kings Court, Penistone, Sheffield, S36 7AD | £ 650,000 | BUY | 7 / 10 | 0.32 KM |
Nearby Properties
| Address | Price | Distance |
|---|---|---|
| 21 Talbot Road | £ 385,000 | 0.01 KM |
| 31 Talbot Road | £ 300,000 | 0.01 KM |
| 66 Talbot Road | £ 95,000 | 0.01 KM |
| 11 Talbot Road | £ 370,000 | 0.21 KM |
| 68 Talbot Road | £ 65,000 | 0.21 KM |